Luis María Uriarte Ampliación del Museo Bellas Artes de Bilbao

Date: January 13, 2012

Por Carlos Garmendia Fernández

©Patxi Cobo

Aprovechando la exitosa y muy recomendable exposición de Antonio López que actualmente se puede visitar en el Museo de Bellas Artes de Bilbao, he decidido iniciar mi colaboración en HIC* presentándoos el proyecto de ampliación y rehabilitación de este museo, a cargo del Arquitecto local Luis María Uriarte.

Dentro de la vorágine urbanística en la que se ha visto envuelta la capital vizcaína los últimos 15 años, marcada por la construcción de proyectos más o menos discutibles, con repercusiones más mediáticas que menos y casi siempre con firma de Arquitectos de renombre internacional, todavía ha quedado espacio (menos del que a muchos nos gustaría) para una Arquitectura sensata, sobria y elegante, concebida a partir del conocimiento del lugar.

Un ejemplo de este tipo de Arquitectura es la actuación de Uriarte en el Bellas Artes bilbaíno, finalizada a finales de 2001 tras ganar un concurso convocado en 1997 con un jurado en el que figuraban nombres como Moneo o Foster.

Por aquel entonces el museo estaba conformado por 2 edificios de gran valor arquitectónico, un primer volumen construido en 1945 y una primera ampliación llevada a cabo por Álvaro Líbano en 1970 con una estética racionalista muy poco habitual en la ciudad.

© El Correo Digital. Izq: Ampliación 1945 (Líbano). Dcha: Primer edificio 1970

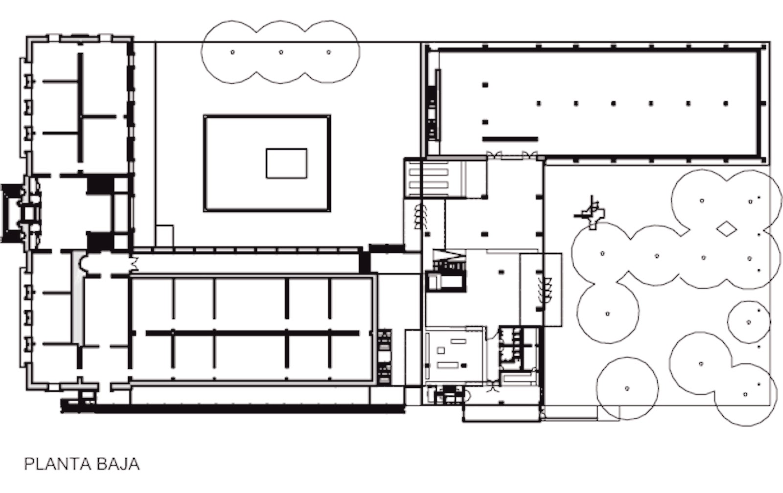
La propuesta de ampliación buscaba mejorar la comunicación horizontal y vertical entre los dos edificios, así como aumentar la superficie expositiva.

Tanto el nexo de unión como los nuevos espacios diseñados por Uriarte buscan siempre respetar los edificios existentes, creando una envolvente permeable adosada al muro ciego del museo que ilumina esa fachada neoclásica a la vez que contiene una gran rampa para asumir la diferencia de cotas entre los dos edificios antiguos.
A su vez, el Arquitecto libera diferentes espacios para optimizar los servicios destinados al visitante y modifica los accesos, hasta entonces enfocados a la actual plaza Euskadi, y enfoca estos hacia la plaza Arriaga y la plaza Chillida, redirigiendo el flujo de visitantes hacia el gran parque verde de Doña Casilda, uno de los pulmones de Bilbao y al cual daba la espalda el primero de los edificios del Museo.
Un proyecto muy acertado, discreto y directo, sin alardes ni pretensiones desmesuradas que actúa de manera ejemplar en uno de los equipamientos culturales más importantes del País Vasco.
 Video explicativo por Luis María Uriarte

Fotografía por Patxi Cobo y LMU

8 Comments

  • jon January 24, 2017

    y pasados unos años desde esta gran ampliación, el museo se ha quedado pequeño y se busca una nueva modificación. qué propuestas créis q serán las más acertadas? una galería subterránea?

    Reply
  • Alberto Zeballos May 17, 2016

    El Museo muy bien pero la plaza de San Nicolás de Algorta la ha desgraciado entera

    Reply
  • Anonymous February 6, 2012

    Genial, un claro ganador de aquel concurso.
    Logicamente hoy nadie se acuerda de las otras propuestas.
    Luce bien por si mismo.

    Reply
  • Anonymous January 16, 2012

    Qué alegría encontrarme este proyecto en el blog!!
    Es una de las mejores obras que se han construido en Bilbao los últimos años y una gran olvidada cuando se habla de la ciudad!!
    Qué gran acierto esta publicación, enhorabuena!!!

    Reply
  • Anonymous January 15, 2012

    Arquitectura elemental de limites claros. Espacios muy pensados, es muy agradable y de gran riqueza material. Pensado para ser vivido, para la persona. Una gran obra.
    A

    Reply
  • Anonymous January 14, 2012

    qué quieres decir con silencioso? que el edificio no hace ruido o bien algo más subjetivo como que se implanta con discreción?

    Reply
  • Anonymous January 13, 2012

    Es un edificio estupendo.Tranquilo, sencillo, silencioso. Un buen trabajo.

    Reply
  • Anonymous January 13, 2012

    ¡Gran arquitecto y gran profesor!
    V.L.

    Reply

This site uses Akismet to reduce spam. Learn how your comment data is processed.

Close
Close
Close