Joan Pascual Conjunto residencial e oficinas en Vic
Fuente: Joan Pascual Arquitectes
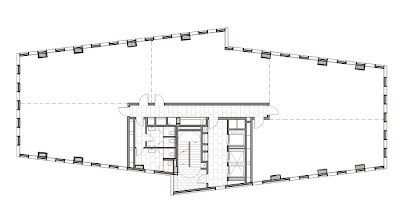
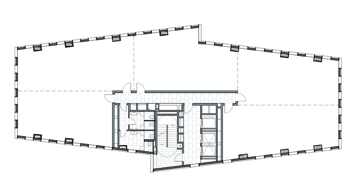
El proyecto es el resultado del análisis de cuerpos a partir de distintos estudios previos para recoger las condiciones particulares del lugar y del planeamiento: frente de fachada al rio Mèder, las restrictivas condiciones volumétricas definidas en el PGMOUT, la elevada densidad y la gran ocupación en planta baja para resolver el techo comercial.
El edificio queda alineado a la Rambla del Mèder y a la calle Pellaire Dulcet, y alineado y retrasado 8m respecto la calle del Hospital d’en Cloquer. En la fachada este se define una inflexión sobre el nuevo espacio de peatones entre los dos edificios.
El edificio alberga un total de cien viviendas repartidas en once escaleras. Estas viviendas resuelven un programa de dos y tres dormintorios según las condiciones dimensionales de la edificación.
Other projects by Joan Pascual












