TAC Arquitectes Viviendas de alquiler en Torelló
Date:
September 21, 2011
Fuente: TAC arquitectos
El edificio construido se situa en una isla del eixample de nuevo crecimiento de Torelló. Esta isla, de forma rectangular dónde el planeamiento prevé 4 edificios de 46x14m en planta y 4 plantas de altura se desarrolla con una volumetria prefijada por el mismo planeamiento. Los nuevos edificios se sitúan también obligatoriamente en una misma posición y distancias a calles y a vecinos.
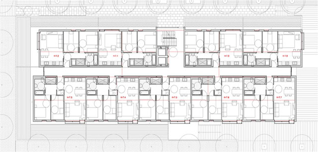
El programa de 36 viviendas de alquiler se desarrolla, recogiendo los requerimientos de la normativa, en un edificio de 4 plantas con un esquema de 9 viviendas por planta. Con unos parámetros tan ajustadamente definidos, aparecen pocas variables tipológicas: corredor de acceso central, una parte de las vivendas dispuestas a sur mirando la calle, el resto de las orientades a este y oeste al patio de manzana. Otros aspectos relevantes para desenvolupar las estrategias de proyecto son resolver el acceso central, la relación con la rasante inclinada de la calle con un zócalo donde apoyar el edificio y aprovechar este basamento para proteger las viviendas de planta baja y dar ventilación natural mediante conductos en el zócalo para favorecer el tiraje de los patios de servicio.
El módulo de la vivienda se organiza en dos ámbitos: zona social y zona de descanso relacionada mediante un espacio de llegada al ingreso. La cocina, baño y armario de lavado se encuentran encima de la pared técnica para acoger el trazado y registro, desde el pasadizo, de las instal·lacions de cada vivienda.
El proceso constructivo, entrelaza la construcción de los cimientos y muros de contención con el hormigón armado ejecutado in-situ y un sistema modular e industrializado utilizado en el resto de las plantas, realizado en taller, para después finalizarlo en obra.
Other projects by TAC Arquitectes


















1 Comment
Es una lástima no poder conseguir el paso a través de una habitación intermedia hacia el living-cocina, tal y como se ve en la imagen de lo que parecen “ideas de proyecto” (izq.)
Tengo una referencia en “Fenêtre sur cour” de Minazzoli y Chauvin, una propuesta de Europan 1989. Creo que todavía está ejecutada, aunque el concurso premie con hacer realidad el proyecto.
Felicidades por el espacio de acceso por planta, que es muy luminoso. También es lugar de encuentro para todos los vecinos de la planta. ¿Sabes si con dos ascensores, tienen problemas de sobre-uso?