Espinet + Ubach Viviendas en Barberà del Vallès

Fuente: Espinet Ubach
El proyecto, realizado por Espinet-Ubach, se ubica enteramente en una manzana vacía fruto de una profunda reestructuración urbana llevada a cabo eficazmente por la acción municipal.
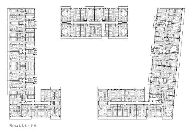
Se buscó una modulación que facilitara, sin cambios estructurales ni de fachada, emplear el módulo de un dormitorio, dos dormitorios, tres dormitorios y hasta cuatro dormitorios, con unas superficies construidas muy ajustadas.
Este objetivo prioritario se consiguió con una distribución de doble crujía y viviendas a dos fachadas, servidas a través de un corredor central y un único núcleo de accesos. La estructura de pilares de hormigón y forjados reticulares alineados permite mover las paredes separadoras a voluntad y articular así la dimensión precisa de cada vivienda.
Para las dos tipologías que se pueden encontrar se ha previsto que los accesos se realicen desde el interior de la manzana, asegurando una fachada al vial sin interrupciones, a la vez que se activa la vida comunitaria en el espacio interior privado.
En el espacio central se reúne toda la vida comunitaria, conviviendo los accesos a las escaleras de cada unidad de viviendas, los espacios de tránsito, las zonas de juegos y áreas arboladas de descanso. Un mundo interior compacto pero confortable y ordenado.
Los volúmenes más altos acompañan correctamente a los más bajos, dándoles cobertura con el uso del mismo lenguaje de la fachada. Sólo los giros producidos por el empleo de diferentes tipologías interiores componen y enriquecen la monocromía exterior.
Other projects by Espinet + Ubach











