Larraz Arquitectos Centro de Acogida en Pamplona
Date:
June 8, 2011
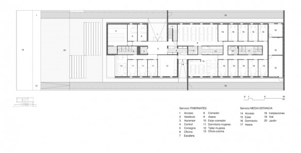
El proyecto realizado por Larraz Arquitectos sobre un centro de acogida en Pamplona define su actuación en un volumen claro. Éste es el que con el programa asignado dá forma al proyecto y le confiere una personalidad propia. Su funcionamiento es sencillo pero organizado y la configuración ya está estudiada para que los usuarios encuentren un espacio comfortable en su interior.
El proyecto se intenta integrar en la escala de su contexto, en un entorno semi urbano donde, en ese juego de volúmenes, emerge el proyecto.
Other projects by Javier Larraz























1 Comment
M'ha semblat atractiu a primer cop d'ull, però un cop me l'he mirat amb més cura veig coses que no m'acaben de fer el pes. El potencial que semblen mostrar les plantes al meu parer en perd amb formalització exterior del volum on sembla que es respon més als capritxos del primers esboços de projecte, que no pas al que el projecte ja madurat hi demana.
I pel que fa a la solució de façana potser demanaria una mica més de risc. Ja està massa mastegat el recurs dels llistons per donar una aparença de puresa potser. En aquest sentit trobo molt més interessant la solució del Mercat de les Ferraries a Tortosa.