João Mendes Ribeiro + Cristina Guedes Casa das Caldeiras
Date:
June 16, 2011
This project involves remodelling the old Thermal Centre of University of Coimbra Hospital and constructing a new building. It was developed at the end of 1990s to house the Photographic Study Centre of the University of Coimbra.
The work was completed about ten years later and the building handed over to the Faculty of Arts to serve as the premises for post-graduate courses in Art Studies. Despite the fact that the use and programme of the building had been altered the core characteristics of the project were maintained in full. The project led to requalification of the existing building, on the one hand enhancing it within its historical context of industrial archaeology and, on the other, clarifying its integration in the town structure.
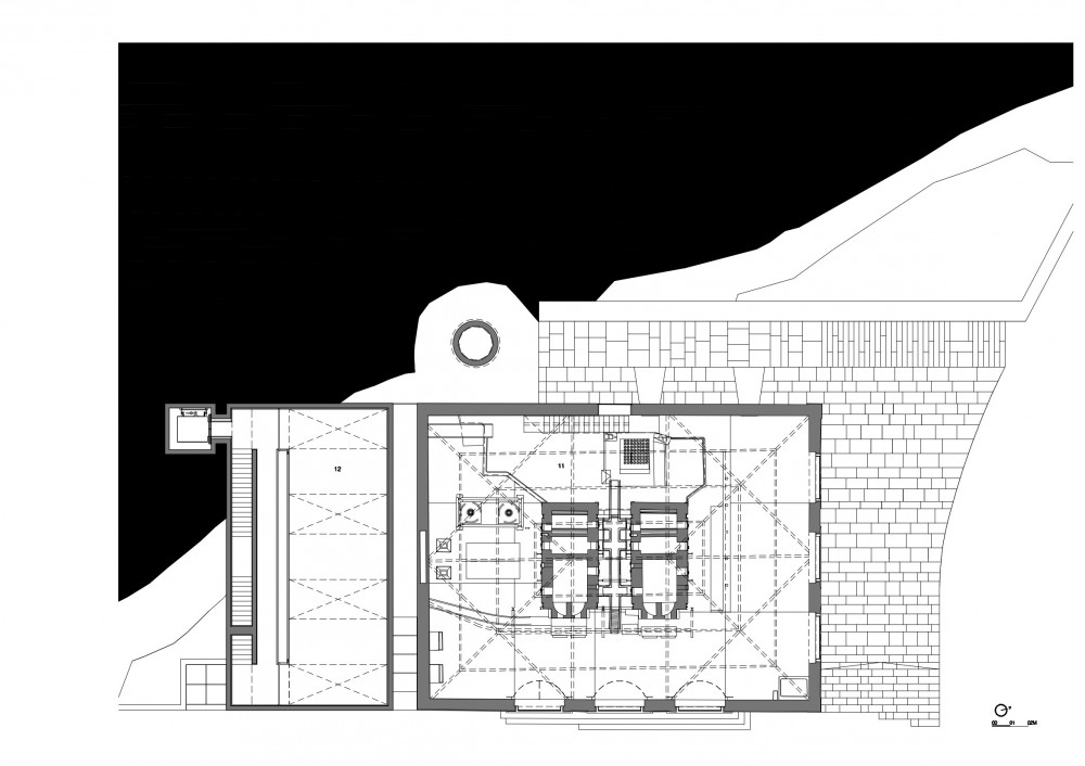
The actual remodelling of the building involved minimal intervention and consisted in restoring the building, maintaining the structural machinery of the boilers and creating suitable air-conditioning and lighting systems for the new programme: cafeteria and art bookshop. The new building was designed in a deliberately neutral language to hightlight the main Casa das Caldeiras building and it was made in apparent concrete. It rises vertically in three square sectioned spaces of varying heights and combinations.
Other projects by Cristina Guedes, João Mendes Ribeiro

























