E2A Apartment Building Escher-Terrassen

Date: January 25, 2011

 

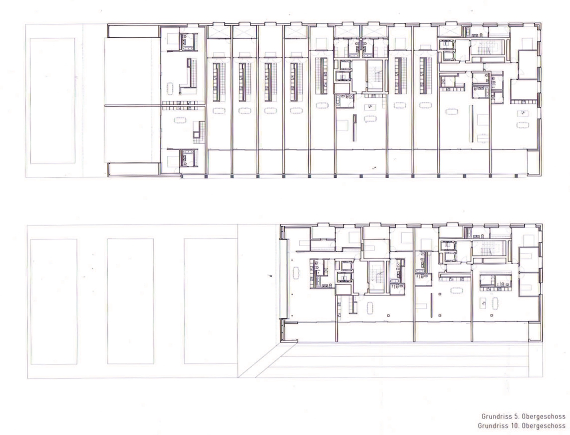
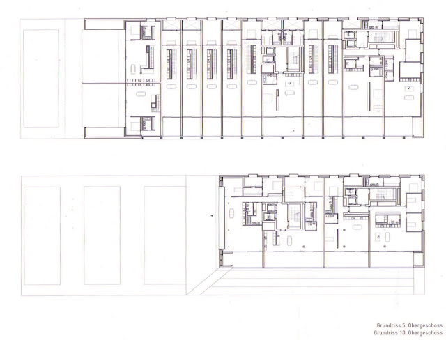
Gran proyecto de viviendas de e2a, un interesantísimo despacho suizo. El proyecto se basa en la reutilización de un antiguo edificio industrial de la zona Oeste de Zurich como base de un complejo sistema de agregación de viviendas. Resulta muy interesante ver como las plantas y secciones van respondiendo de forma distinta a los gestos volumétricos de la totalidad de la propuesta. El proyecto refleja un enorme esfuerzo y trabajo en el sistema de agregación, consiguiendo una gran riqueza de tipologías.

 

 

 

 

 

 

 

 

 

 

 

 

This site uses Akismet to reduce spam. Learn how your comment data is processed.

Close
Close
Close