Hace unos meses os enseñé el proyecto de una guardería en Pamplona y en ella ya mencionaba la pasarela de Labrit construida en la misma ciudad, ambas obras del joven despacho navarro Pereda Pérez Arquitectos, despacho que hace unas pocas semanas finalizaba su último proyecto, una vivienda unifamiliar en Villarcayo (Burgos) y que nos ha brindado la oportunidad de que en HIC> seamos los primeros en sacarlo a la luz.
Un proyecto del cual he podido seguir vagamente el proceso de obra y del que sé, en parte por lo que he podido observar y en parte por lo que después me han contado sus autores, que se trata de una de esas obras en las que disfrutas cada día, y lo haces por su escala, por sus tiempos, por las personas implicadas y por el resultado final.
Por la escala porque, al menos por mi experiencia, un proyecto pequeño como éste te permite una precisión y exactitud a la hora de construir difícilmente alcanzable en obras de mayor envergadura, siendo así posible controlar cada apartado a un mayor nivel.
Por los tiempos, los tiempos de una obra levantada casi de forma artesanal, sin prisas excesivas (al menos no a las que nos han acostumbrado los últimos años) y que permiten parar, repensar, volver atrás y mejorar.
Por las personas implicadas, tanto propietarios como constructores, porque pocas veces o más bien ninguna se habla durante la carrera de la importancia del cliente en la Arquitectura, nos enseñan a discutir con el entorno y pelear con los condicionantes geográficos, alguna extraña vez a controlar el presupuesto y de vez en cuando a ser medianamente realistas en cuanto a la construcción, pero no recuerdo ninguna referencia de profesor alguno hacia el peso específico de aquel que te paga y hacia el cual va destinado nuestro esfuerzo como arquitectos (al menos en obra privada) y el cual la mayoría de ocasiones tiene una influencia enorme en el resultado de la obra.
En el caso que nos ocupa, la visión y opinión de los clientes marcaron unas pautas a seguir y estos tomaron parte activa en la evolución del diseño, consiguiendo que el proyecto final resulte radicalmente distinto al que se habría obtenido de ser otros los promotores. Una familia joven que demandaba una vivienda en planta baja, fuertemente relacionada con el jardín y que al mismo tiempo no se perdiera en lo económico.
Por otro lado, los gremios, de los cuales depende también en grandísima medida el resultado del proyecto, trabajaron para esta obra como si de artesanía se tratara (a la vista están los acabados resultantes), un hormigón ejemplar y unos detalles de madera envidiables como ejemplo de un trabajo realizado con interés y un grandísimo conocimiento.
Cuando estos factores confluyen y a uno le gusta lo que hace, el trabajo pasa a ser algo fantástico y generalmente se aprecia en los resultados.
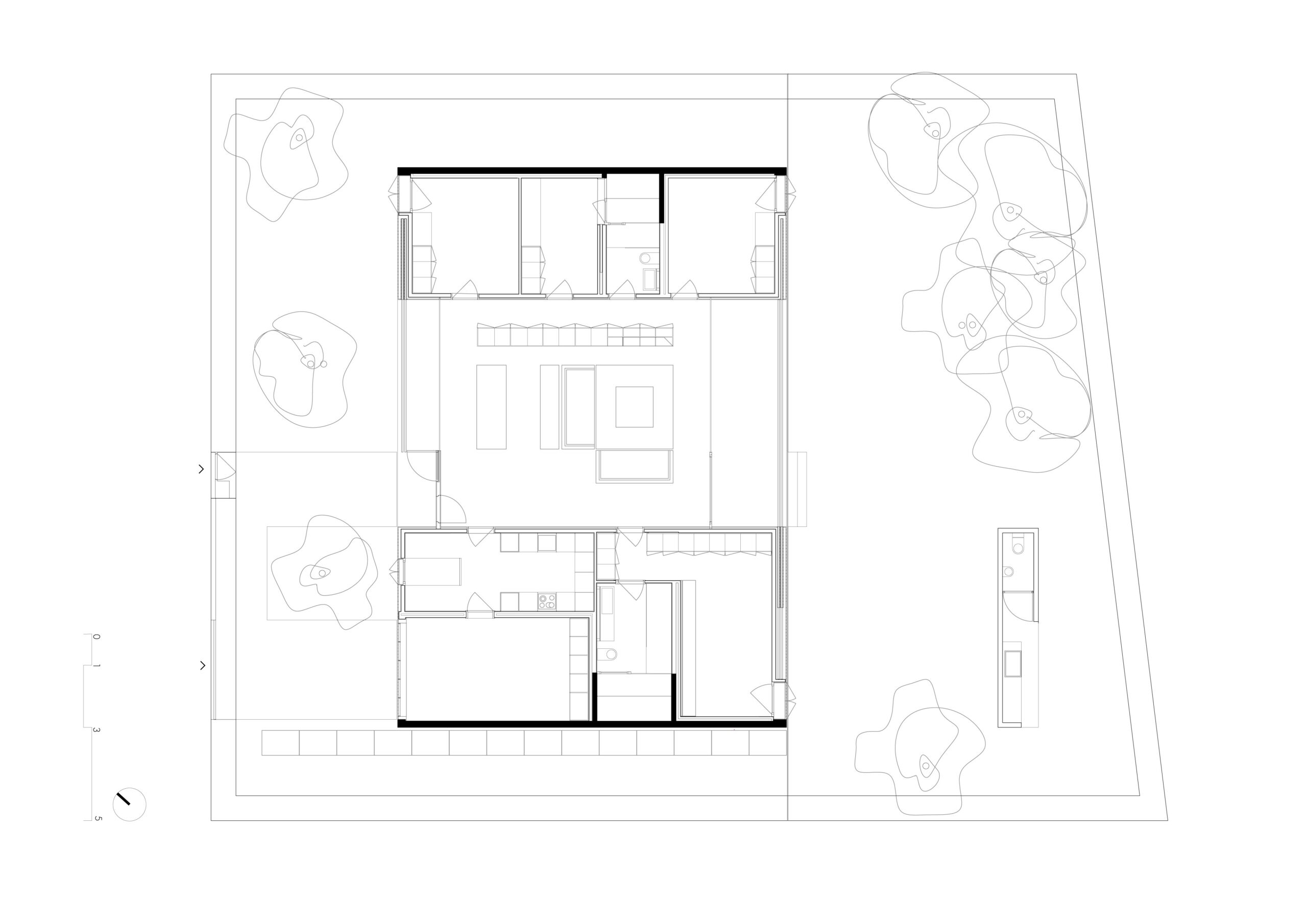
Y más allá de todo este condicionado proceso están los hechos, la construcción que queda en pie, una arquitectura final que queda fijada por un esquema simple y limpio, vivienda en planta baja con un espacio central abierto como lugar de relación de los usuarios apartando a los laterales el programa más íntimo.
Una planta rectangular donde todo gira entorno a ese espacio principal, que actúa de rótula de todo el proyecto, casi como elemento continuación del jardín, como ese lugar intermedio difícil de definir como interior o exterior, como ese porche cubierto bajo el cual se ha colocado la zona de estar.

















22 Comments
La verdad es que me he enamorado de esta casa. Que podria costar hacerla? Teniendo el terreno? Alguien me podria asesorar? Gracias
Que puede costar una casa así?
Un buen trabajo estructural de gabimete Pérez Pereda, la forma de la estrucatu de una sola altura, los materiales empleados reunen un componente académico impecable, noobstante coincido con alguna opiniones de este foro en que para el ususario resultará algo dificil la vida cotidiana, climatización, acústica, zonas de aguas i cocina, elementos contenedores por ejemplo, seguro que el cliente temdrá el mismo criterio en la selección de los diferentes elementos para su equipamineto para la vida cotidiana del espacio y completar un buen trabajo …. felicidades
muy buena en diseño,materiales y una iluminacion muy lograda me gusta se tiende mucho a complicar y esto demuestra q no es necesario y del confort no puedo comentar pero yo creo q estaria muy agusto.
Yo pienso que con que sea “vivible” para el cliente ya es suficiente, no hace falta que sea vivible para el resto. La vivienda unifamiliar difiere de la colectiva en que conocemos con un mayor grado de profundidad al cliente, y podemos dar una solucion mas particular al problema.
Una planta que recuerda, de muy lejos y vagamente, las inteligentes viviendas de de la Sota en Alcudia 1984 (Mallorca), que nunca llegaron a materializarse. La casa confortable del todo no es, pero es una pieza equilibrada.
Preciosa por fuera, invivible por dentro.
Invivible? Que te impediria a ti vivir en una casa asi? Entre estos comentarios soltados a la ligera y las recomendaciones de los lumbreras de turno este post no tiene desperdicio. Cito comentario anterior: hacerlo en hormigon blanco!! (materialidad inconclusa dice el buen hombre!) jeje por dios criatura sabes que hay que parar una planta entera de hormigon para producir hormigon blanco?
Aqui no hay lumbreras, hay opiniones y puntos de vista y de entender la vivienda diferentes. Es una lástima, nunca utilizarás hormigón blanco en tus proyectos si piensas eso. Y es invivible por su falta de confort, xq la division de la vivienda en dos con ese patio de recreo central no me convence..creo que hay soluciones mejores para relacionar la casa con el jardin.
Hola. No entiendo porque tiene que ser hormigón blanco. Desde mi pto de vista no aporta nada y encarece inútilmente la construcción de esta buena vivienda… ¿También La Touret se debía haber hecho con hormigón blanco?
La Touret blanca???? Tal vez así no sería tan horriblemente fea. Aunque eso no se salva simplemente haciéndolo blanco.
pues a mi, tras mirar los planos e imágenes, me parece un proyecto brillante
Opino que la estrategia del proyecto es impecable pero coincido en que este tipo de arquitectura purista y diáfana no da lugar al confort. Alguien se imagina descansando en este comedor? El suelo de madera ayudaría y una luz más controlada también. La casa farnsworth es un ejemplo.Enhorabuena por el post.
Donde puedo encontrar los planos de esta vivienda??
Quiero hacerla en maqueta, gracias!
Me parece que esta casa esta un poco inconclusa, sobre todo la materialidad y calidad espacial es muy pobre. La escala me parece excelente y distribucion espacial muy limpia, pero pone en duda esta formaildad por lo que se puede observar: el desayunador da la sensacion de un salon de juntas tipo ejecutivo, el banio me parece mas acojedor aunque se denota cierta perdida de calidad espacial, el hormigon asi expuesto podria haber sido mejorado con un hormigon blanco creo yo sin ir a mas aspectos tecnicos este proyecto le falto mas calidad y por el coste que habra implicado siento que se le podria haber dado mas al cliente.
Qué es tener calidad espacial? tener doble altura? un espacio muy alto? si fuera así, la casa tugendhat de “Mies” (por poner un ejemplo claro) no la tendría. En mi opinión la calidad se sustenta en muchísimos factores, en la propia tensión del espacio más que en una dimensión concreta, (además un espacio horizontal es seguramente menos dramático y acogedor para el uso de una vivienda), en su relación con el exterior( si es que la hubiere), en la propia materialidad, en la secuencia con la que se encadene con otros, en el tipo de huecos que tenga si es que los tienes, en su posición con respecto al espacio con el exterior…y tantos y tantos factores…en este caso, en mi opinión, un espacio ( el principal y que define la vivienda) tensionado horizontalmente vinculado con los exteriores en dos lados y con una posición dominante a nivel topográfico sobre los jardines tiene una sutil pero efectiva calidad espacial y ejecutada para que la construcción reafirme de forma limpia este esquema
tengo una duda, que tipo de calefacción se ha realizado? suelo radiante? A mi parecer, el hormigón tanto en techos como en suelos resulta especialmente frío para una vivienda, espero que en las habitaciones cambie por lo menos el material del pavimento, y se haya decidido colocar una tarima, sino resultará una vivienda extremadamente fría o extremadamente ineficiente energéticamente.
Por otra parte, espero que los propietarios tengan un exquisito gusto para la decoración interior de la vivienda, ya que la vivienda es una cucada en sí, pero que a mi entender, se pierde en la búsqueda del confort diario que un hogar tiene que ofrecer como mayor valor. No me veo viviendo en ella.