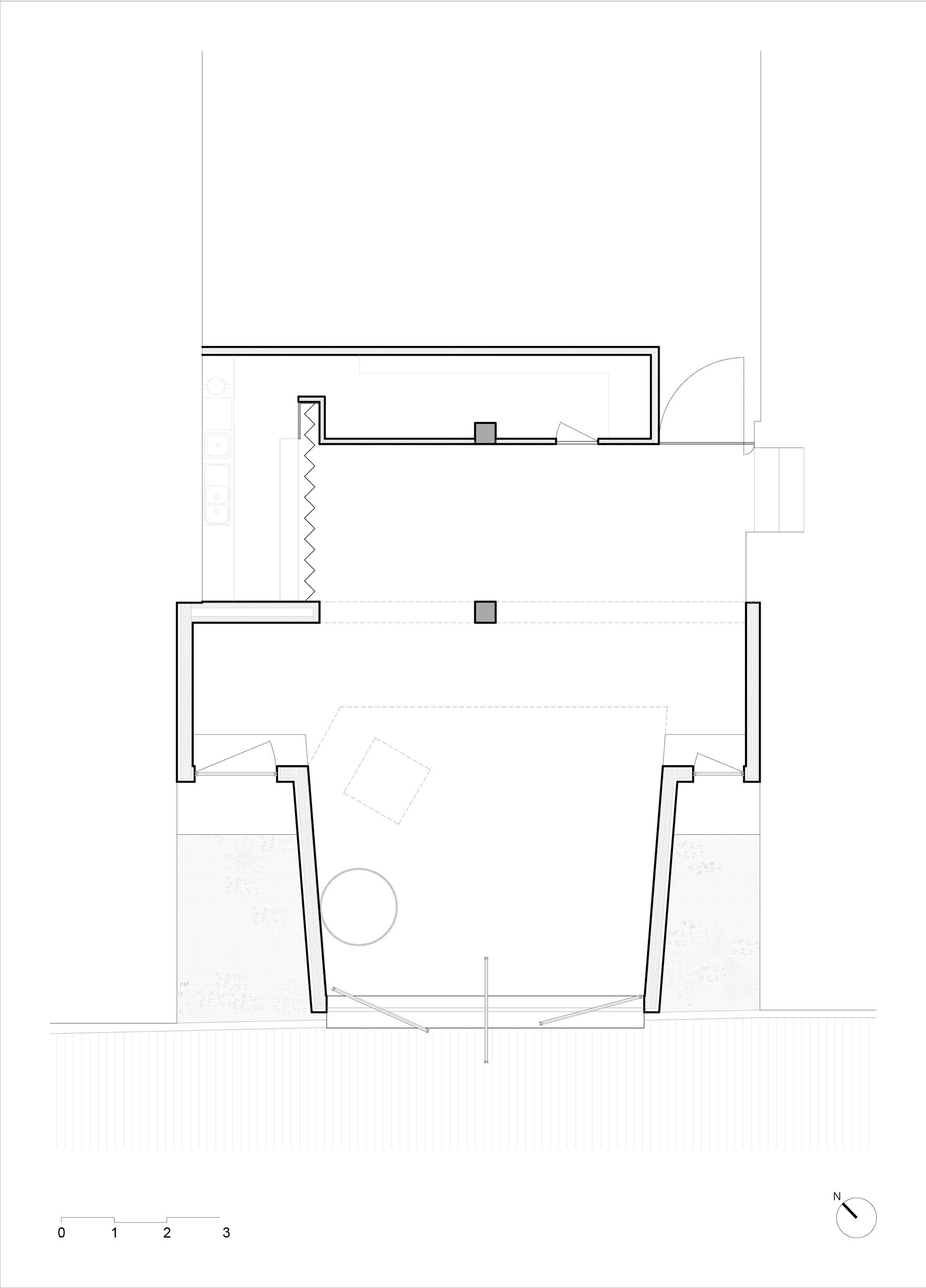
The pavilion was designed for the architecture school at the Autónoma University of Lisbon. It is located on the roof of one of the buildings, where there was another pavilion, which was demolished. It is located on a terrace of generous proportions that serves as the school’s outdoor space.
The pavilion consists of a space without specific use, which can be used as an extension of the school cafeteria, as well as hosting various events. The outdoor spaces generated by the pavilion are imagined as places to take a break between classes. Inside, the slope of the roof dominates, punctuated by a skylight. The structure is made of light steel frame and the roof is made of corrugated sheet metal. Its lightness affirms its flexibility.
O pavilhão foi desenhado para a escola de arquitectura da Universidade Autónoma de Lisboa. Localiza-se na cobertura de um dos edifícios, ao nível do primeiro piso, no lugar onde existiu um outro pavilhão, que foi demolido. Implanta-se num terraço de proporções generosas que funciona como o espaço exterior da escola.
O pavilhão consiste num espaço sem uso determinado, que pode ser utilizado como extensão da cafeteria, bem como albergar eventos variados. Os espaços exteriores gerados pelo pavilhão imaginam-se como lugares para uma pausa entre aulas. No interior domina a inclinação da cobertura, pontuada por uma clarabóia. A estrutura é em aço leve revestido e a cobertura em chapa ondulada. A sua leveza afirma a sua flexibilidade.



















