Parma’s new Crematorium is located north of the ancient Valera Cemetery, between it and the recently built ring road, about a kilometer west of the city.
On one side, the city and the Via Emilia, on the other, the countryside and the village of Valera, mark the landmarks of a landscape historically characterized by the centurial order of Roman
colonization and the fundamental road system of the early Middle Ages: a civilization still visible in filigree or on the surface in the finds of the Roman Domus, in the layout of the roads and farms,
in the Romanesque architecture of the churches of Vicofertile, San Pancrazio, and Santa Croce.
The Temple emerges within the enclosure, visible from afar and to those traveling along the ring road, as a large base element, preceded by two covered spaces at the ends, similar to the south and north,
towards Valera and Parma.
Like a cut fragment, it hosts and suspends the rite of passage in time, making it a single, large urban symbol, almost an altar, in which the city ceaselessly celebrates its memory
through the memory of its dead.
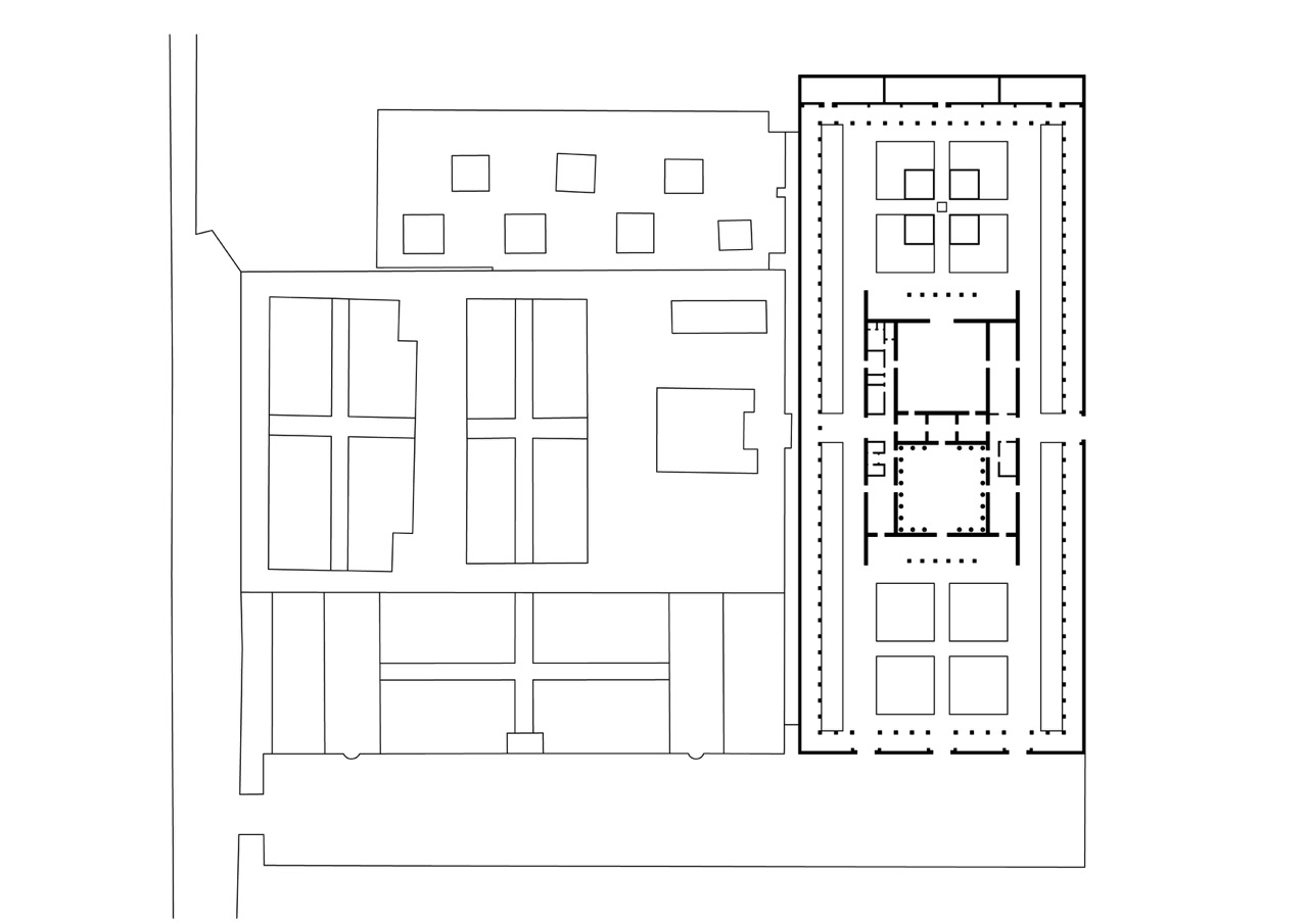
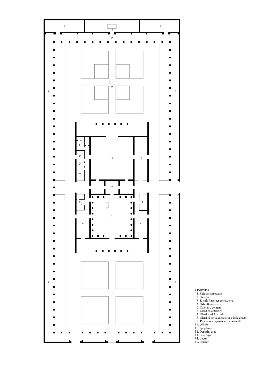
The relationship between the two enclosures, ancient and planned, and that between them, the countryside and the town of Valera, is the first theme addressed by the project.
The new enclosure, an enclosure made of architectural space because it was conceived as a porticoed wall andinhabited by the cellars that house the dust, contains, in an uninterrupted path, the relationship between life anddeath, establishing its interpretation in the sense of an ideal continuity of life.
In the form of a large rectangle, positioned next to the existing cemetery, the portico, accessed from the parking area on the narrower side, according to the current use of the existing
cemetery, embraces the moments of the journey, establishing a precise hierarchy, whose architectural medium is the Temple itself, located at the center of the two dimensions. The latter also spatially marks the timing of the rite, between the exterior and interior, dividing, in a processional path, the area for welcoming the deceased and their family, located near the
entrance, from the Garden for Sprinkling Ashes, located after the farewell and cremation areas. It is characterized by two similar facades to the north and south, almost two sections that
allow for the creation of two open and covered spaces.
The building’s plan is marked by two large squares, connected by a smaller
square.
The first square consists of the large Farewell Hall, illuminated by a central light source and occupied only by the columns on the walls and the ambo reserved for prayer.
A tall door on the back wall marks the transition of the body to the second, smaller square, a lighted chamber illuminated from above, completely
empty.
The body thus disappears into the light.
The third square consists of the crematorium itself, where the body is burned.
All the service areas are located on the sides.
The passageway, with its internal ritual, marks the spatial hierarchy of the different moments, which is continually recomposed by the enclosure’s portico, which will be completed over the years with the additions to the Cemetery and will wrap around it in an infinite path.


























