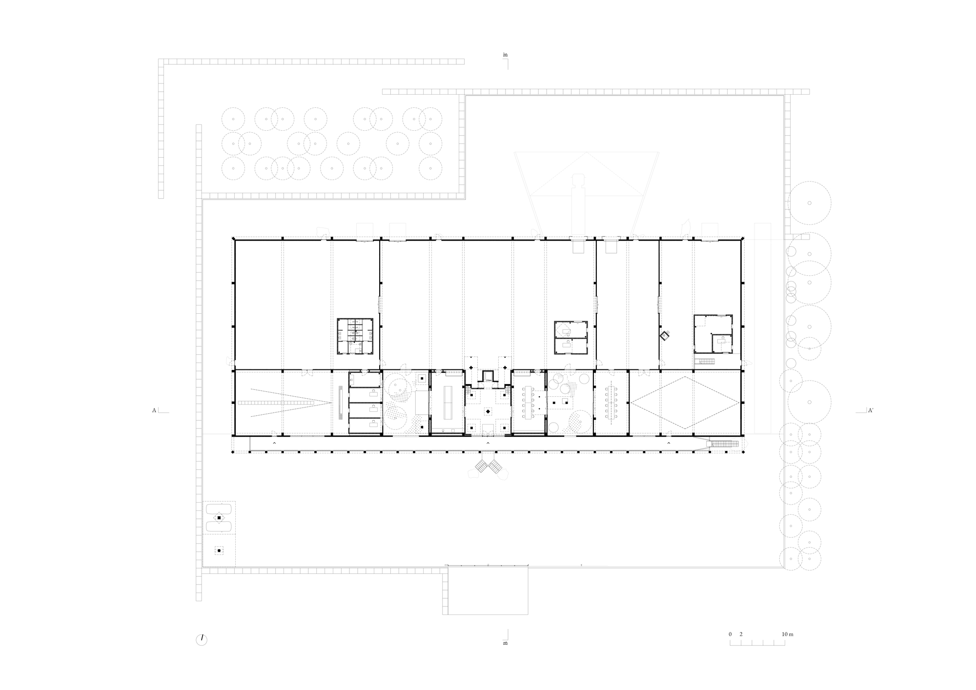
The site is a small acropolis. The program was suitable for this “top of the hill” situation – a headquarters building for a local family business. A complex set of different programs is to be adjusted and articulated. A shop for motorcycle sports, navigation hardware and software development. Office space, cafeteria and living area. A showroom for heavy machinery and equipment. A technical assistance area with loading docks. Three storage rooms. It all starts with an exterior gallery to connect the three cores, implying cadence and rhythm through the pillar repetition: perhaps evoking a certain monumentality before entering the void. Two patios bring light and green to the industrial gray, opposing the expected. An axial entrance to a lobby with two long stairs and four columns that reach a higher ceiling. A cross circulation on the second level. Interior boxes for offices, toilets and locker-room. Granite pavement and walls, made of local rocks, sustain the topography and create a continuous floor to visually detach the concrete mammoth.
Nuno Melo Sousa | Corcet Headquarters
Architect: Nuno Melo SousaLocation: Penafiel, PortugalYear: 2024Collaborators: Ana Dias (office), Diogo Veiga (office)Landscape: Paulo PalmaEngineering: Martins da Cruz - Engenheiros ConsultoresArea: 3650 m2Cost: 900 Photography: Federico Farinatti
Date:
November 6, 2025



















































