JAAS Sallarés Deu

Architects: JAAS Josep M. Julià, Albert Clèries, Jordi Gorgues, Manuel JuliàTeam: Gil Roca, Tiaré Gàlvez, Rut Cabrero, Meritxell Padrós, Oriol CortassaQuantity Surveyor: Mor Arquitectura Tècnica SLPFacilities Design Engineer: Joan A. Gonzàlez GouStructure Consultant: Jordi Oliveras RederClient: Ajuntament de SabadellYear: 2025Location: Jacint Verdaguer 49, Sabadell
Date: November 17, 2025

El recinte industrial de Sallarès Deu, situat a la ciutat de Sabadell, constitueix un exemple paradigmàtic d’un model històric d’implantació econòmica al territori del Vallès, vinculat al desenvolupament dels vapors tèxtils. De manera anàloga a altres grans conjunts fabrils del municipi, la progressiva terciarització de l’economia ha interpel·lat aquest recinte, que es troba avui immers en un canvi de paradigma orientat a la reprogramació dels antics espais productius com a nous equipaments estratègics per al territori.

Com és habitual en edificis industrials d’aquesta naturalesa, les necessitats operatives, els canvis de titularitat i la incorporació de noves solucions tecnològiques han condicionat l’evolució i transformació de la seva configuració original.
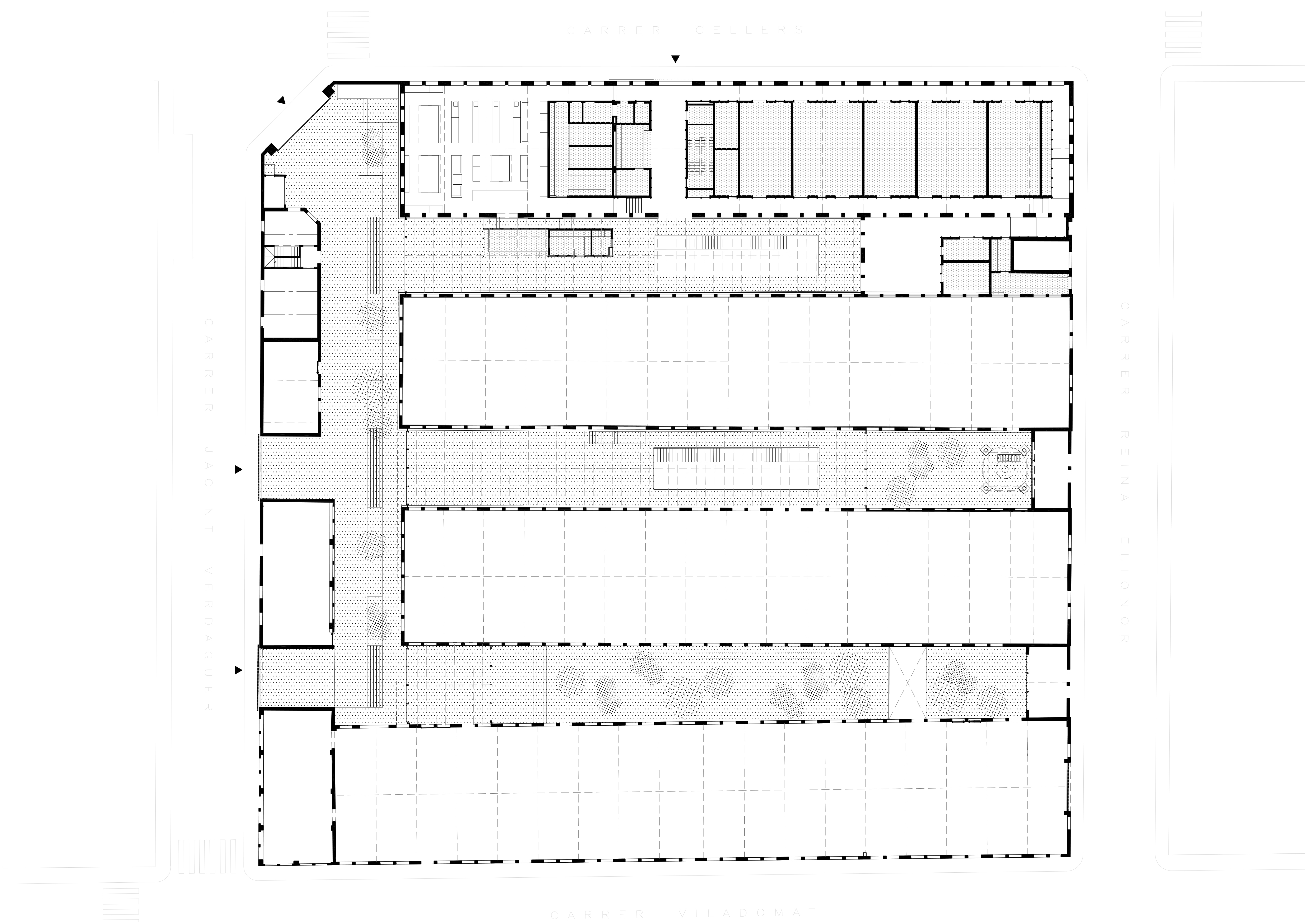
La proposta per a la rehabilitació del recinte té com a objectiu principal la incorporació de nous usos de caràcter ciutadà, com ara una escola de restauració, un centre de formació en forneria, una incubadora de start-ups i un espai de suport social conegut com el Racó Solidari. Aquest programa es resol mitjançant una triple estratègia d’intervenció que posa en valor els atributs patrimonials essencials del conjunt de Sallarès Deu, entre els quals destaquen la claredat en l’ordenació espacial i la coherència tipològica de la seva estructura original.
D’una banda, es proposa la restitució de la configuració original dels espais oberts i tancats del recinte industrial. Aquesta operació permet recuperar les façanes ocultes per les transformacions successives produïdes al llarg del temps i reivindica el paper dels patis com a elements articuladors de la relació entre les diferents naus. Aquests intersticis recuperats, es cobreixen amb estructures lleugeres i poroses, tipus hivernacle, retornant a aquests espais la seva centralitat com a espais de referència i atribuint-los un rol actiu en la regulació climàtica del conjunt edificat.
D’altra banda, la proposta incideix en la preservació de la idea de recinte com a unitat estructurant. L’obertura del complex a la ciutat es manté a través del xamfrà situat al carrer de Jacint Verdaguer, on la portalada històrica esdevé accés principal i permet la recuperació del passatge interior com a element vertebrador del conjunt, alhora que garanteix la funcionalitat logística dels edificis. Per facilitar la gestió del recinte i assegurar la independència horària en l’ús dels espais, es preveu que cada nau pugui disposar d’un accés autònom des dels carrers perimetrals.

Una intervenció pedagògica
El conjunt adopta una imatge exterior clara i tranquila, que fa explícita la seva naturalesa híbrida i el diàleg respectuós entre l’arquitectura existent i les noves addicions. El projecte aposta per una configuració honesta i didàctica, que celebra la coexistència entre el “vell” i el “nou”, afavorint la comprensió de l’activitat que acull i facilitant l’orientació dels usuaris.
Entre les quatre naus originals es disposen estructures lleugeres i permeables en forma d’hivernacles, que configuren els nous atris. Aquests volums contrasten deliberadament amb el caràcter tectònic i massiu de les construccions de maó, tot establint una relació equilibrada i complementària entre els diferents llenguatges arquitectònics.
La intervenció posa en relleu els valors patrimonials del conjunt industrial recuperant la morfologia original de l’antic vapor i reforçant l’estructura tipològica pròpia de l’illa fabril dels anys seixanta, organitzada a partir de naus paral·leles al voltant de patis centrals.
Implantació del programa, permanència i temporalitat. Un ordre “natural”La proposta per a la nova Escola de Restauració parteix de la preservació de la tipologia estructural original de la nau, tot posant en valor el seu caràcter de gran contenidor, flexible i altament adaptable. La implantació del programa es resol mitjançant un únic element de mobiliari arquitectònic de grans dimensions que configura els nous aularis i organitza funcionalment l’espai interior sense alterar l’estructura original de l’edifici.
El vestíbul, de recorregut transversal, canalitza els fluxos de circulació en paral·lel a les façanes i condueix els usuaris cap a l’atri central, vertebrador de l’activitat general. El programa funcional se separa dels tancaments perimetrals, fet que permet una futura modificació o retirada parcial de les seves implantacions, i dota el conjunt d’una notable capacitat d’adaptació a llarg termini. En coherència amb aquesta lògica d’evolució oberta, els antics patis es cobreixen per acollir grans atris bioclimàtics, que concentren els usos més públics i oberts del recinte. Aquests espais intersticials recuperen la seva accessibilitat i permeabilitat original, esdevenint llocs de trobada i d’intercanvi, alhora que contribueixen activament a la regulació climàtica de les naus adjacents.
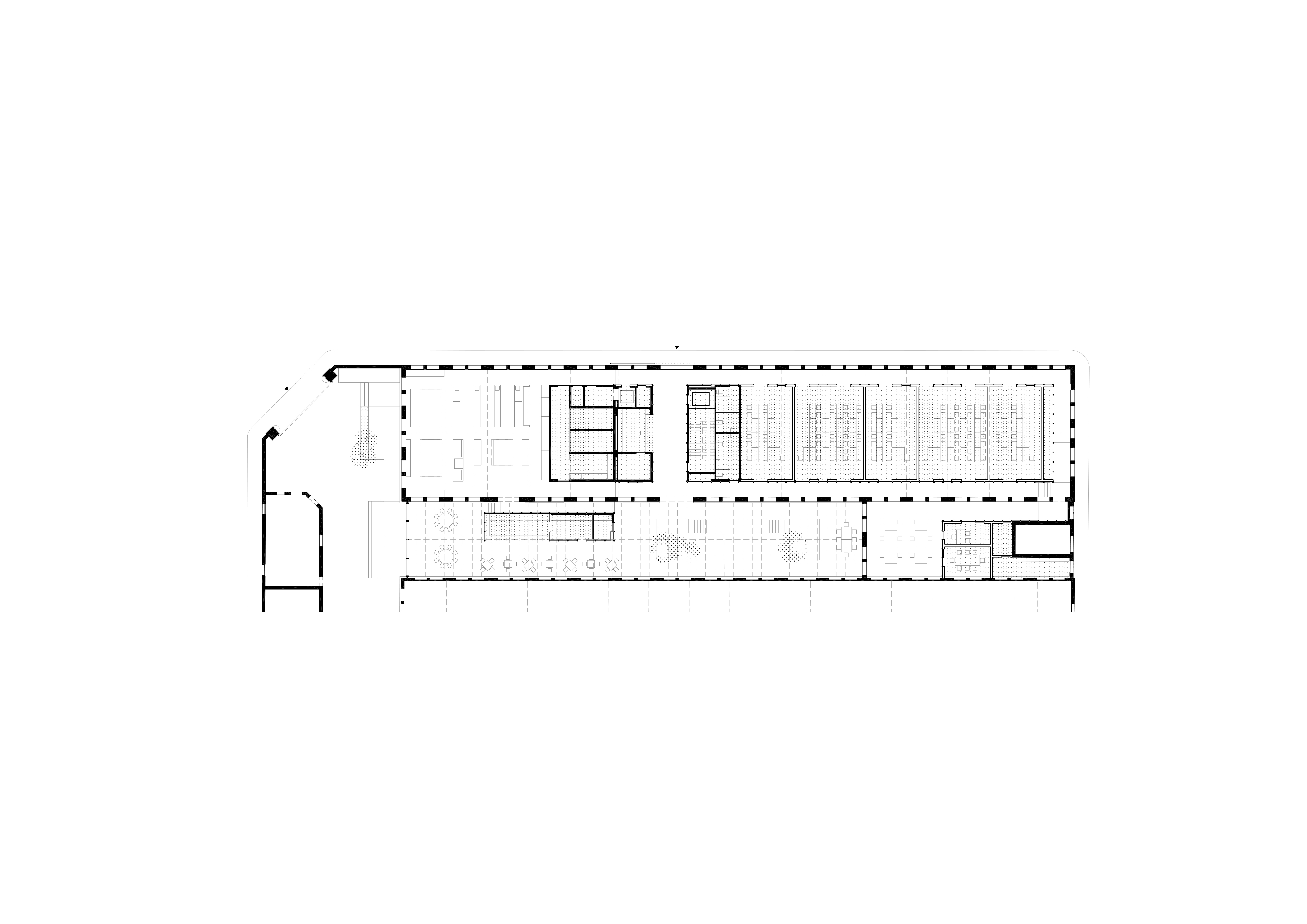
L’accés principal se situa al centre de la nau orientada al carrer Cellers, on un gran taulell de recepció domina visualment els punts d’ingrés i les circulacions principals. Aquest vestíbul generós distribueix, a un costat, els accessos a la zona de formació —amb tallers de cuina — i, a l’altre, els accessos als espais administratius i àmbits destinats al professorat. A través d’aquest espai d’ingrés a doble alçada, s’accedeix a l’atri principal: un àmbit diàfan i bioclimàtic que es configura amb pavellons de fusta, capaços de modular el grau d’estanquitat i la protecció solar en funció de les condicions estacionals i horàries.
A la planta inferior, el pati actua com a pou de llum que il·lumina generosament els espais soterranis i estructura les circulacions cap a la sala d’actes, els vestidors de l’alumnat i el taller de tast i càtering, ubicat en una sala singular amb voltes de mocador de grans llums. Aquest claustre allargassat es concep com un foyer enjardinat amb ús d’hort, destinat al cultiu de productes per a la pròpia escola, i estableix una connexió directa entre espai pedagògic, pràctica alimentària i sostenibilitat.

Reversibilitat i Sostenibilitat
La proposta neix de la presa de consciència de la temporalitat dels usos interiors, per aquest motiu el projecte aposta per un sistema constructiu 100% industrialitzat basat en panells de fusta contra-laminada tipus CLT, d’origen renovable. Aquest sistema, a més de garantir un muntatge àgil i precís, permet el seu desmuntatge total i, alhora, un reaprofitament dels seus components, assegurant així la reversibilitat de la intervenció i la preservació del patrimoni original davant futurs canvis d’ús.

Els grans atris del conjunt actuen com a dispositius termodinàmics passius que contribueixen a l’eficiència energètica de l’edifici. Durant els mesos freds, aquests espais actuen com a captadors solars que preescalfen l’aire exterior abans de ser recirculat cap als sistemes de producció, reduint així el diferencial tèrmic necessari per a la calefacció del recinte. En els períodes càlids, contràriament, els atris es mantenen completament oberts i ventilats, afavorint la dissipació de la calor i aprofitant la inèrcia tèrmica proporcionada per l’estructura massiva i les plantes subterrànies del recinte. Aquesta estratègia permet una reducció substancial dels espais que requereixen climatització activa, i, en conseqüència, una disminució significativa de les demandes energètiques de l’edifici.

This site uses Akismet to reduce spam. Learn how your comment data is processed.

Close
Close
Close