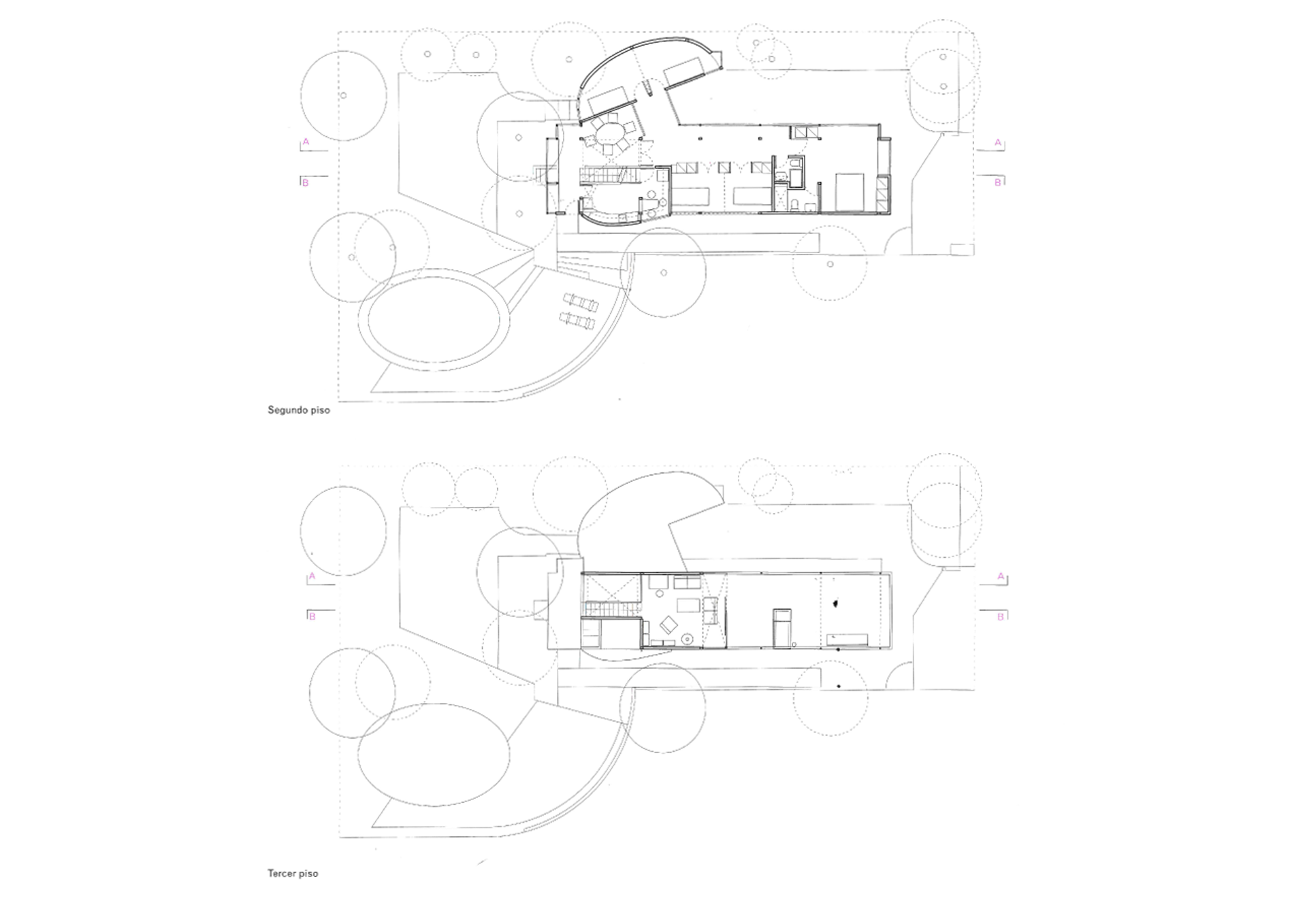
Emplazada en un barrio con grandes árboles junto a antiguos caminos rurales v en medio de un interior de manzana arbolado, esta casa fue pensada para la propia familia como parte integrante de un conjunto, colindante con la casa de Alberto Valdés. Al igual que en ese primer proyecto, la casa se piensa a partir del estudio abordado en el proyecto de título y en la observación sobre el paisaje como marco de referencia para la vida de la casa, Al elevarse sobre el nivel de los cierros divisorios se vela un paisaje lejano referido a unos muros verdes de árboles, que determinaban espacios intermedios entre lo próximo y lo lejano. Esto daba una medida para mirar la cordillera, los cerros, las casas del barrio: un paisaje ordenado por árboles. Se trataba de traer por medio de una longitud de suelo lo lejano al interior. Para ganar esta situación se propone un volumen longitudinal de 16m en tres niveles, como un cuerpo único elevado del suelo sobre pilares que libera a su vez todo el primer piso para un dormitorio de servicio, estacionamientos y jardín.
La segunda observación se asociaba también a lo establecido por el proyecto de título en relación a una casa de superficie limitada a 140 m2, donde la pequeña dimensión se hacía grande en la medida que los espacios fueran continuos en torno al recorrido y orientados al sol. Todos los lugares que se recogían en el recorrido se usaban y en función de su uso, el espacio crecía en dimensión. Se propone así una galería norte a la cual convergen todos los recintos en el segundo nivel, que en su doble función de pasillo y sala recoge gran parte de la vida de la casa. A este nivel se accede a través de una rampa de 12 m desde la calle. En el tercer nivel hay una sala de estar junto a la terraza superior que se abre a la extensión de los árboles.
La ley de la casa se planteó como una obra gruesa habitable. Se pensó como una estructura elemental en base a una grilla metálica regular con un módulo de 3,2 x 4 m y losas de hormigón en los entrepisos para ser montada rápidamente, facilitando el manejo y control de la construcción y disminuyendo los costos. Los cerramientos exteriores estan conformados por muros de relleno en albañilería a la vista y al igual que todos los muros interiores, funcionan como membranas, permitiendo cambiar todo menos la estructura.
La presencia de la estructura dibuja y mide el total de la casa, dejándose presente tanto al interior como al exterior. Los pilares se separan 80 cm del borde al interior de la galería y se dejan rehundidos cuando están en el eje de los cerramientos exteriores de albañileria.
Un conjunto de ampliaciones terminan de completar esta estructura principal. Un primer recinto semicircular en el frente norte con dos dormitorios de niños y luego tres operaciones sobre el perímetro: la ampliación de una ventana en el sector del acceso para albergar un asiento, el desplazamiento de una ventana en el estar del tercer nivel y el ensanche de un nuevo cerramiento curvo con una saliente máxima de 50 cm en la cocina.
Todo el proceso de construcción de la casa se pensó como una faena ajustada y planificada al máximo. Se instaló toda la estructura metálica junto con la totalidad de las ventanas y vanos del perímetro y se construyeron las losas de entrepisos en un período de dos meses con 3 maestros. Luego se colocaron todos los cerramientos exteriores de ladrillo en 15 días, con un rendimiento de un módulo al día entre un maestro y un ayudante. El hormigonado de las losas se hizo cada 50 m2 de moldaje, equivalente a un viaje de camión hormigonera cada uno con cuadrillas de 12 personas en un máximo de tres horas para evitar el fragüe. Este proceso se repetía tres veces cada 20 días ocupando como ayudantes personas de la calle a las cuales se les pagaba el trato diario. Los moldajes en módulos de 80 cm se usaron tres veces y luego se terminaban colocando en el techo de la casa y en la techumbre saliente de la galería.
























