Bailar con el tiempo, el espacio, la estructura y la indiferencia.
Como si siempre hubiera estado ahí.
Mirando donde nadie miraba,
bailando con la peor pareja,
jugando con y en el tiempo.
…
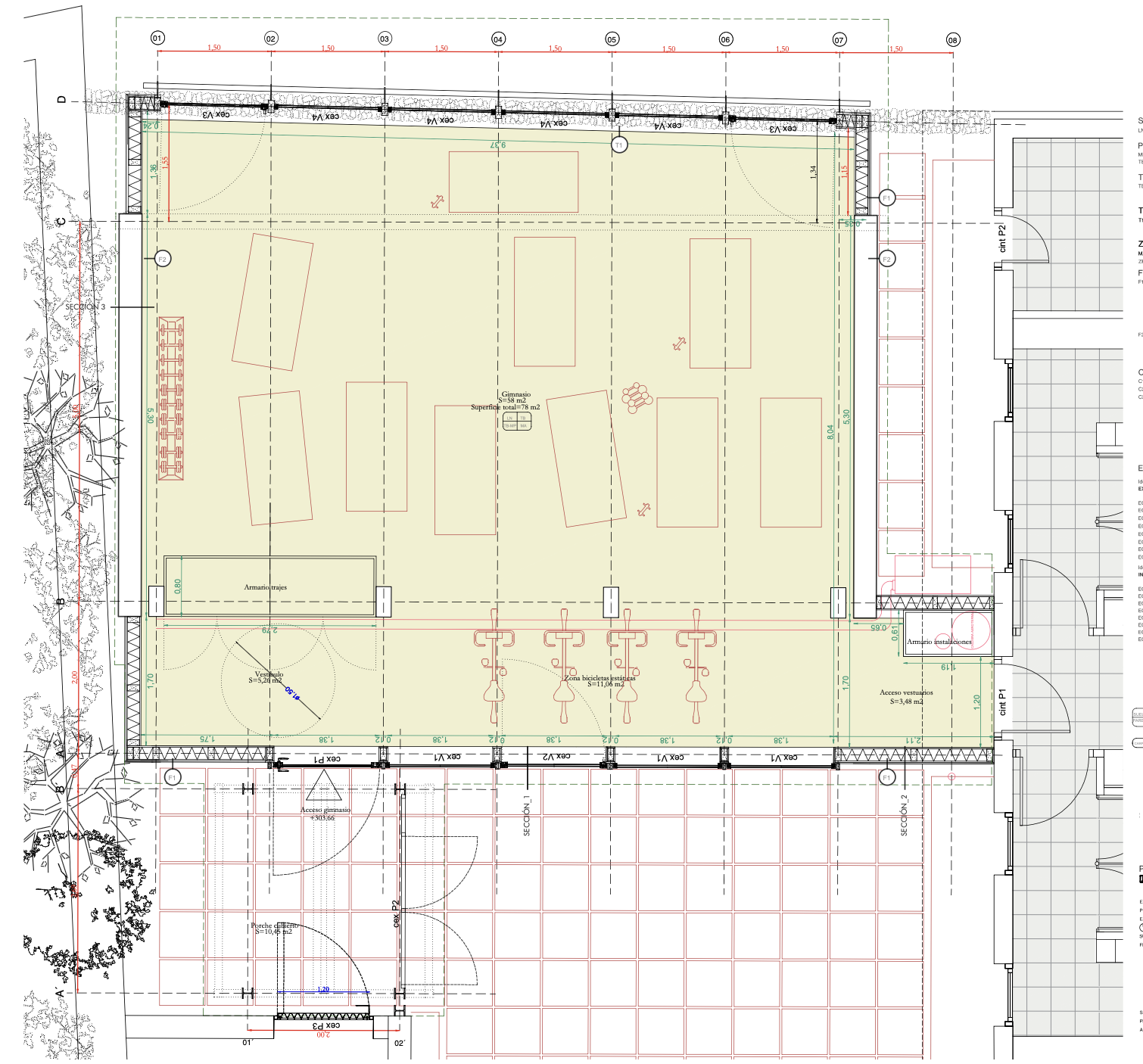
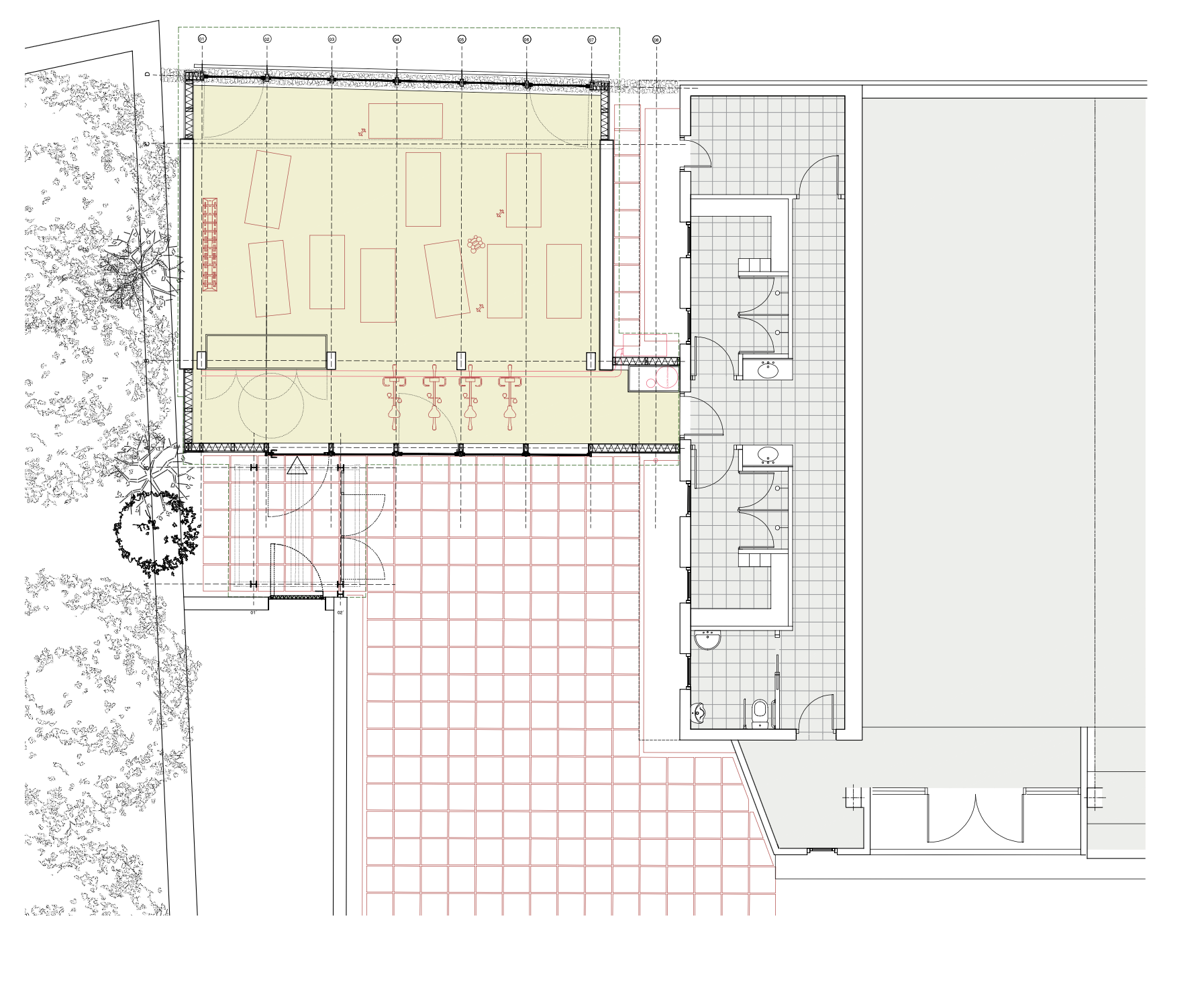
La construcción de un pequeño pabellón para gimnasia y danza en el municipio de Garai, una pequeña obra de menos de 150 metros cuadrados.
Lo primero, colocarse.
Sin tirar nada.
Entre el culo del frontón y el bolatoki.
Limpiando, cosiendo y construyendo un entre.
Un entre que se hace plaza, que conquista un detrás —el bosque— y lo convierte en interior.
Sobre un muro existente y vegetado, apoyándose sin romper, regalando su mejor fachada a la vegetación.
Un lugar donde respirar y bailar entre los árboles.
Superado ese gesto inicial de colocarse para construir espacio público, el edificio, que son dos y uno a la vez, actúa como conector.
Uno es un gran cofre de trajes de danza, que enlaza lo existente.
El otro, un juego con el tiempo: una sección, la de Távora y el tenis, trasladada literalmente para ser un nuevo edificio que, desde esa memoria, cambia y se transforma.
Incluso la estructura baila,
cargando el peso del tiempo,
haciendo de la fuerza ornamento.
En el interior, las capas se mezclan: los acabados son dentro y fuera a la vez, y solo el suelo, una secuencia de paneles de color, mantiene la continuidad, reproduciendo ese bailar a saltos de las danzas vascas, donde cada movimiento deja huella en el espacio.
Bailar otra vez con el tiempo, con las capas, con lo construido,
donde nadie pensaba que algo pudiera caber,
respirar, o bailar.


































