The 30+8 social housing project on Josep Togores Street in Palma de Mallorca, designed by Vivas Arquitectos, responds to the need for affordable housing from a sustainable perspective rooted in the territory.
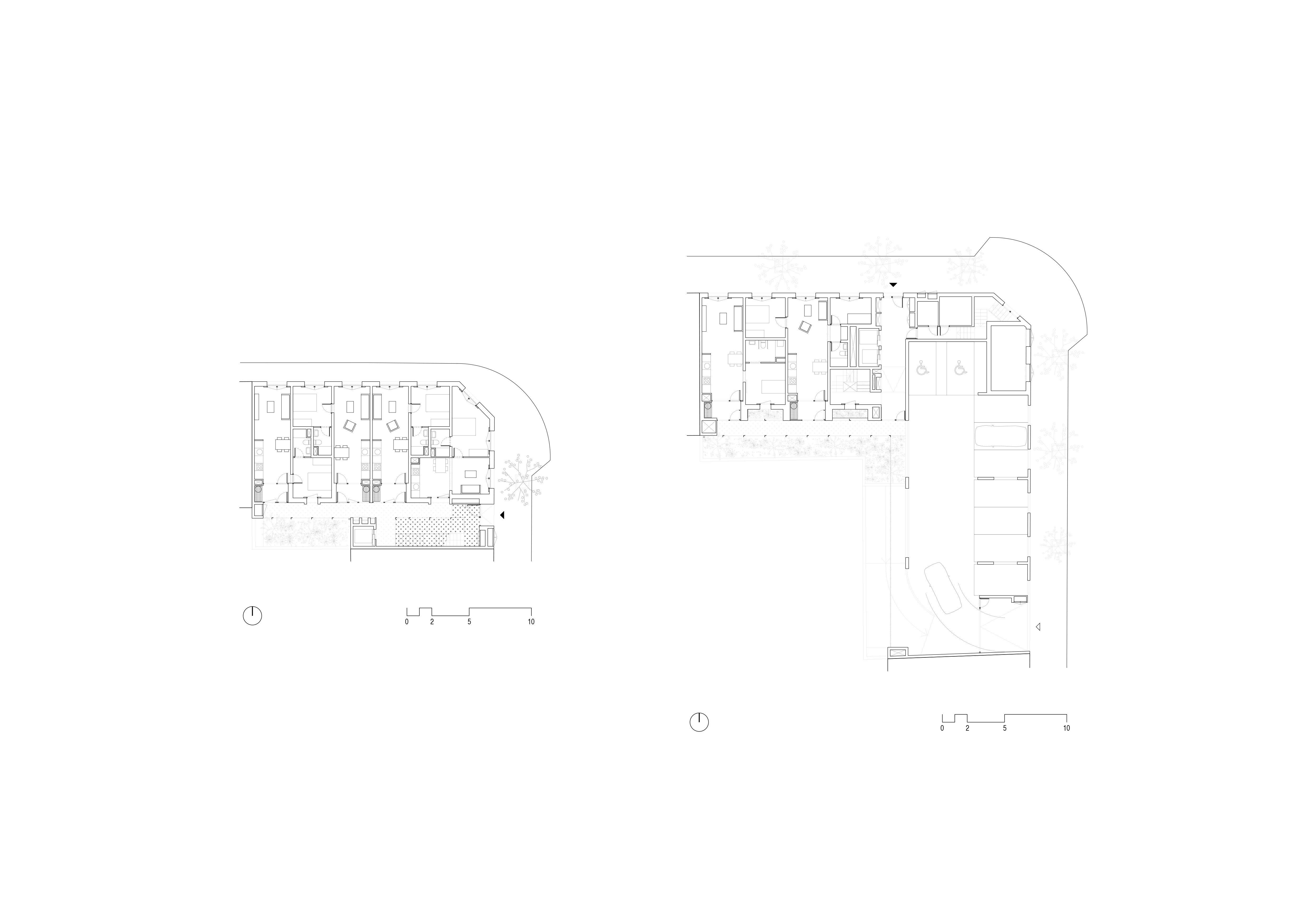
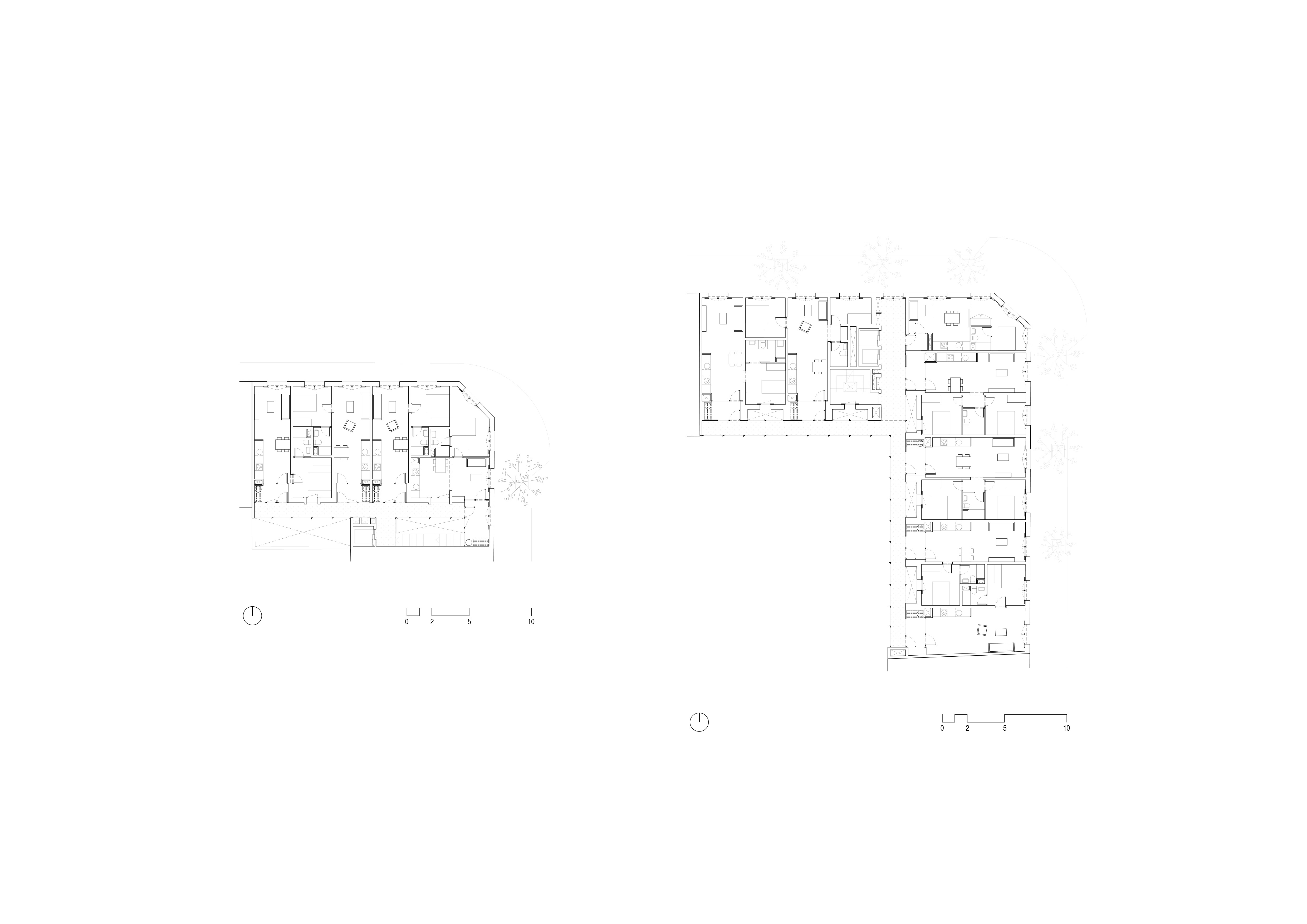
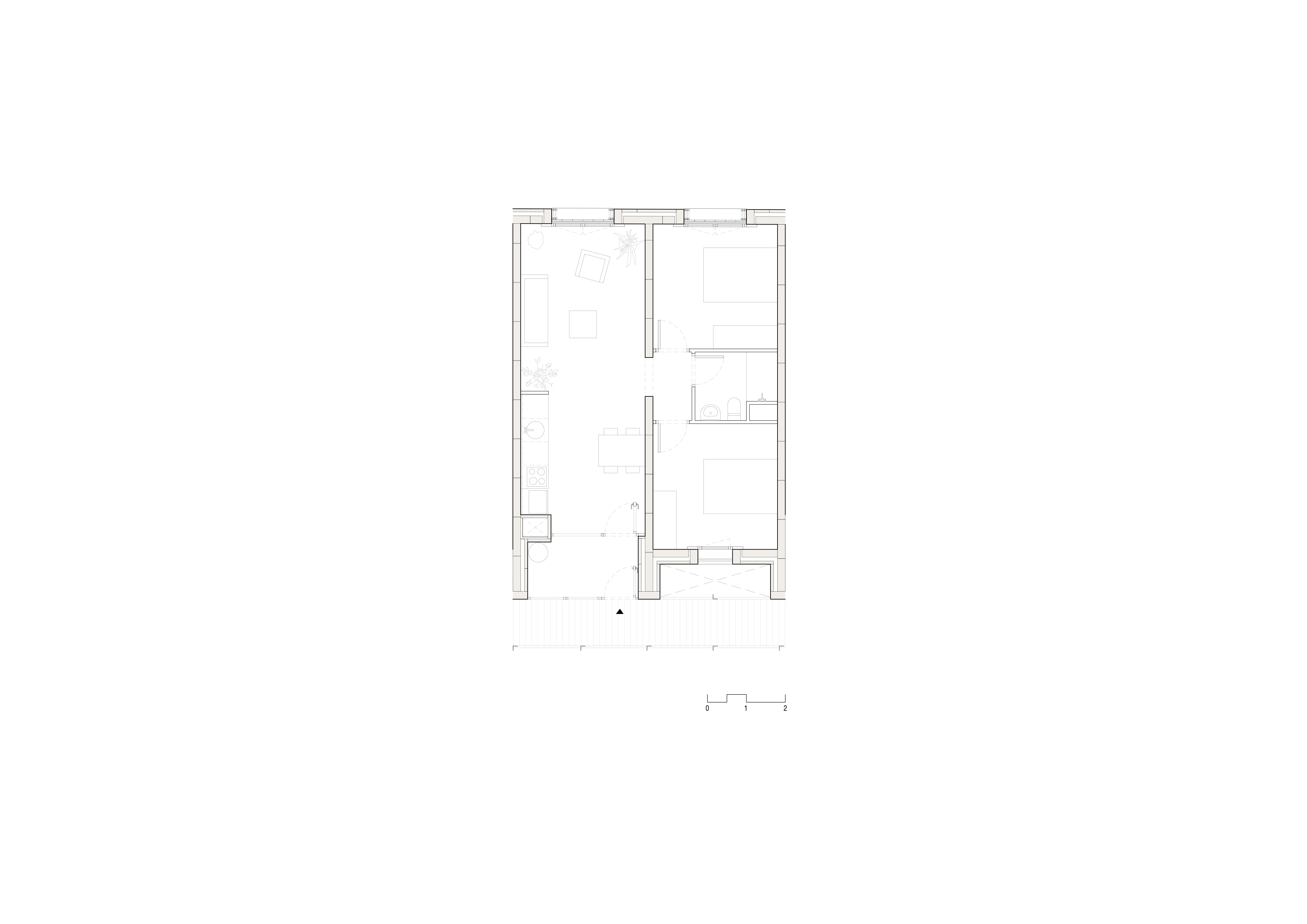
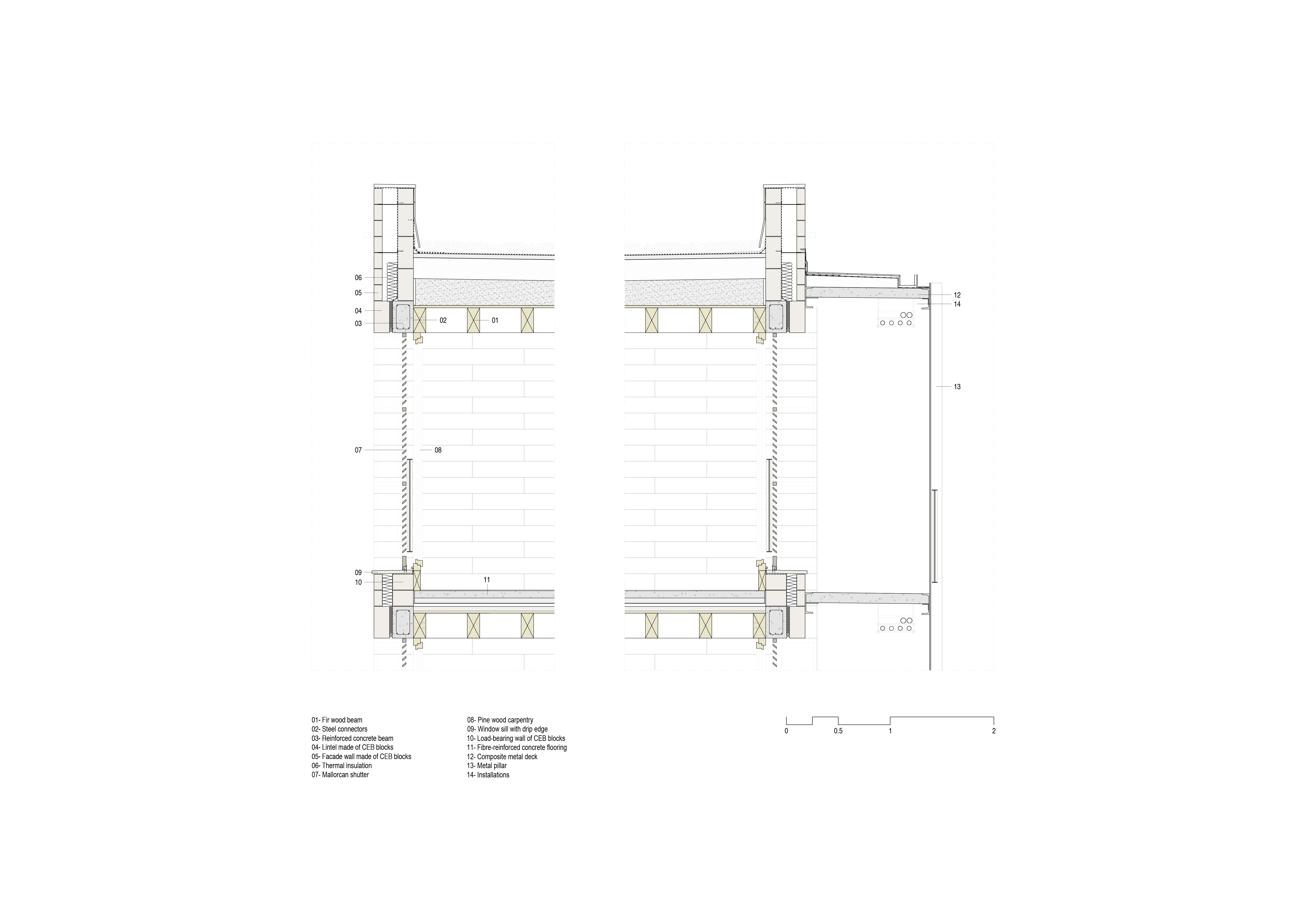
With a total of 38 units distributed across two buildings, the complex combines innovation and tradition through the use of locally produced compressed earth blocks (CEB) and wooden slabs, reducing the carbon footprint and reinforcing the island’s architectural identity.
Organised around interior courtyards and exterior walkways, the dwellings encourage community interaction, cross ventilation and climatic comfort. Their compact and bioclimatic design optimises the use of space and enhances everyday life, reconciling energy efficiency, sustainability and social cohesion in a single model of living.
























