The Arklow Wastewater Treatment Plant marks the first time in Ireland that an architect has been directly involved in designing such infrastructure. Clancy Moore architects won an invited competition and collaborated closely with engineers and the community to create a sustainable, site-specific solution. Historically lacking any wastewater treatment, Arklow faced severe pollution in its river and coastal waters, limiting both ecological health and urban growth.
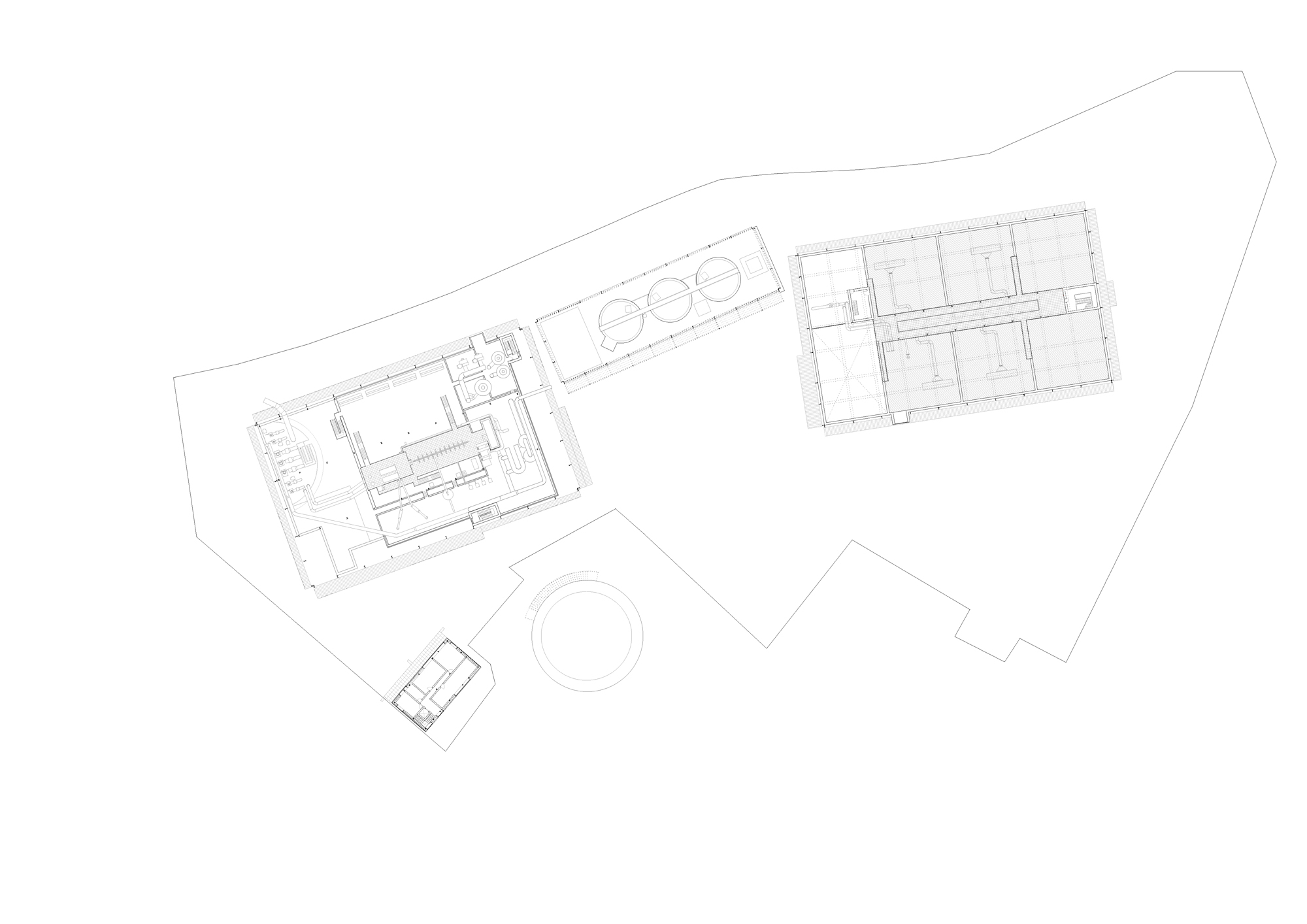
The chosen site, centrally located, offered the lowest carbon and energy footprint but was also highly visible and environmentally sensitive. The architects embraced an open, collaborative design process involving town residents, engineers, and planners. Instead of traditional excavation, the plant’s components were built above ground to avoid disturbing contaminated soil and to reduce site impact. The processes were vertically stacked to minimize land use, and gravity was used to assist water flow, reducing energy needs. A single pump is used, and a solar farm on the roof offsets operational energy. The main structures are clad in louvred skins that ventilate, mask operations, control odours, and serve as habitats for birds and bats. The design enables the plant to grow with the town (up to 36,000 people) and allows much of the site to be rewilded.
The architecture responds to light and weather, acting as both landmark and civic infrastructure, connecting with the town’s industrial past and projecting a future of sustainability and care. This innovative facility is more than a utility, it is a public asset that enhances ecology, improves public health, and sets a precedent for how infrastructure in Ireland can embody design excellence, environmental responsibility, and community engagement.











































