En 2007, el Consejo de Estado de la región de Vaud (Suiza) organizó un concurso de arquitectura para la construcción de su nuevo parlamento, cuya sede ubicada en el centro histórico medieval de la ciudad de Lausana, en 2002, fue devastada por un incendio. El jurado del certamen internacional, presidido por Norman Foster, de entre las 33 propuestas seleccionadas en una primera fase y frente a otras cinco finalistas, en 2009 otorgó el premio al proyecto del estudio barcelonés Bonell i Gil y el Atelier Cube de Lausana.
El nuevo edificio por su condición de representante de la institución democrática y por su situación estratégica entre la catedral —construida en el siglo XII y reconstruida en el XIX por Viollet Le Duc— y un castillo del siglo XIV, se erige como la última pieza del puzzle que equilibra visualmente el simbolismo de las instituciones religiosa y militar.
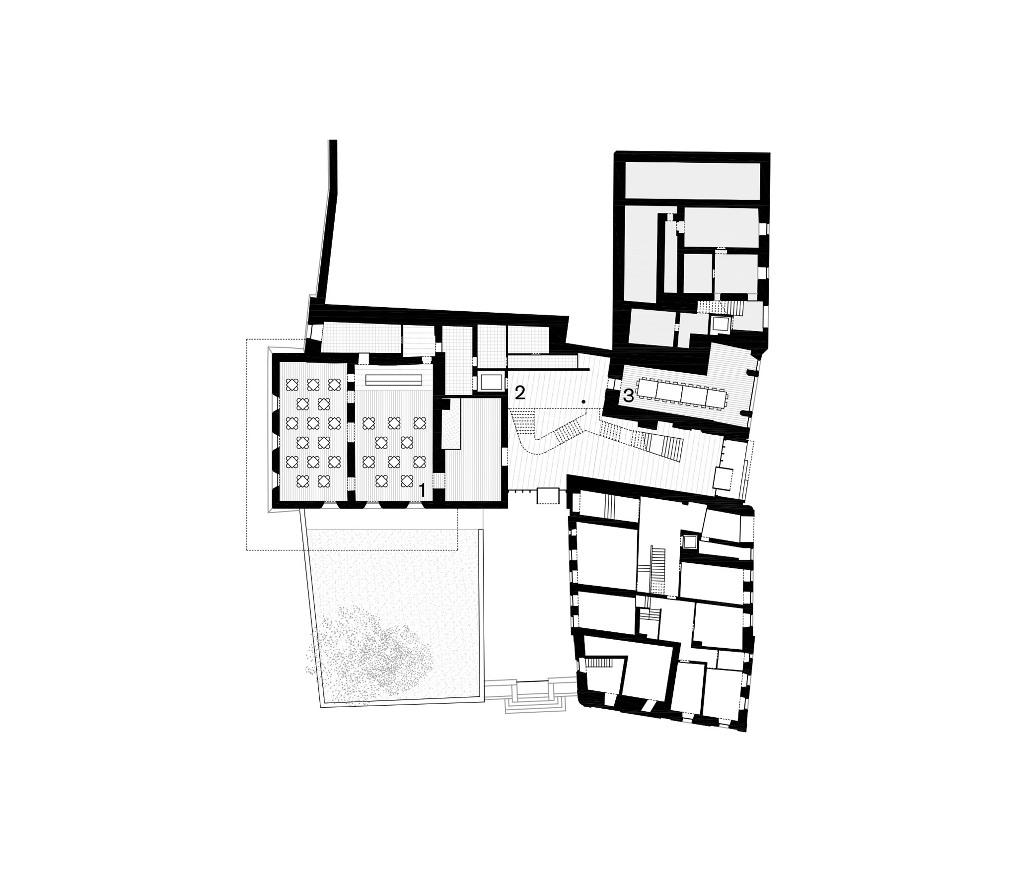
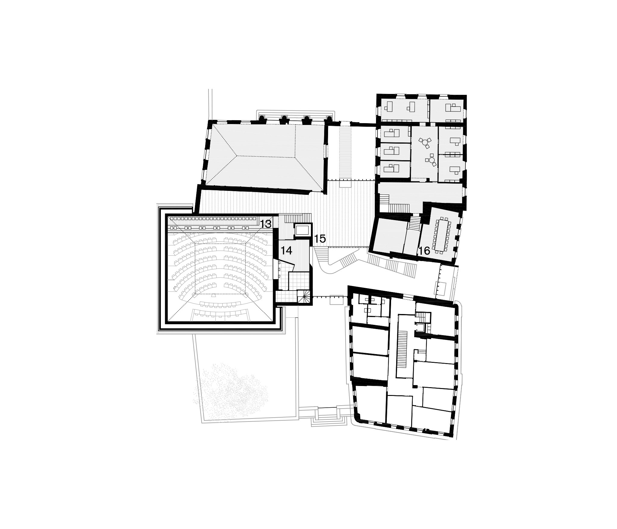
Como aspectos relevantes del proyecto citar 3 actuaciones: la sala de plenos y su cubierta, el acceso y la sala des pas-perdus.
Para resolver uno de los desafíos arquitectónicos del encargo: aumentar la volumetría de la sala del Grand Conseil para adecuarla a las nuevas necesidades parlamentarias, se han utilizado innovadores conceptos constructivos y tecnológicos. En concreto, la planta de la sala gana en superficie al desbordar en voladizo los muros de cimentación históricos y se abre en dos de sus fachadas a las vistas sobre la ciudad, el lago Leman y los Alpes. Además, se ha pretendido que la cubierta, más allá de un carácter funcional, adquiriese la suficiente representatividad para encajar el edificio en el espacio urbano de la Cité, entre el viejo castillo y la catedral. Para ello, ésta se ha diseñado con una forma piramidal que permite el confort ambiental a través de su lucernario cenital y su climatización se basa en el principio de ventilación de los termiteros.
Por su parte, el descubrimiento de unas ruinas históricas en uno de los muros que delimitan el hall de acceso, ha conllevado la reubicación y el rediseño de la escalera que comunica con las diferentes plantas. Ésta, realizada en acero y madera, recorre el espacio de triple altura, y se pliega para formar un mirador. Su contundencia visual disminuye al colgar su estructura de un solo tirante. Y por último, la sala des pas-perdus, nombre que reciben los vestíbulos con carácter de espacio de reunión y tránsito en los edificios públicos, donde se ha reconstruido el antiguo pavimento de piedra y a partir de moldes de hormigón se ha reinterpretado su cubierta.
La intervención rehuye imitar la arquitectura del pasado pero sin ignorar la historia. Un edificio eficaz, cómodo, moderno y sostenible, creando una atmósfera particular que combina el pasado con el mundo contemporáneo, que regenera el tejido urbano y que, construido con las técnicas más innovadoras, establece una imagen intemporal en la silueta del conjunto histórico medieval.



































