The transformation of the erstwhile GDR tricot factory “Ernst Lück,” situated by Krampnitzsee, just southwest of Berlin, transcends a simple cosmetic refurbishment. It challenges prevailing building norms, offering a fresh perspective on the interplay between architecture and the environment.
In a significant structural change, the original gabled roof, constructed from asbestos plates, was dismantled in favor of a flat roof design. This new roof serves dual purposes: aesthetically refreshing the building’s silhouette and functionally acting as a beam. This innovation permits openings up to five meters wide in the existing walls, enhancing the structure’s tangible presence.
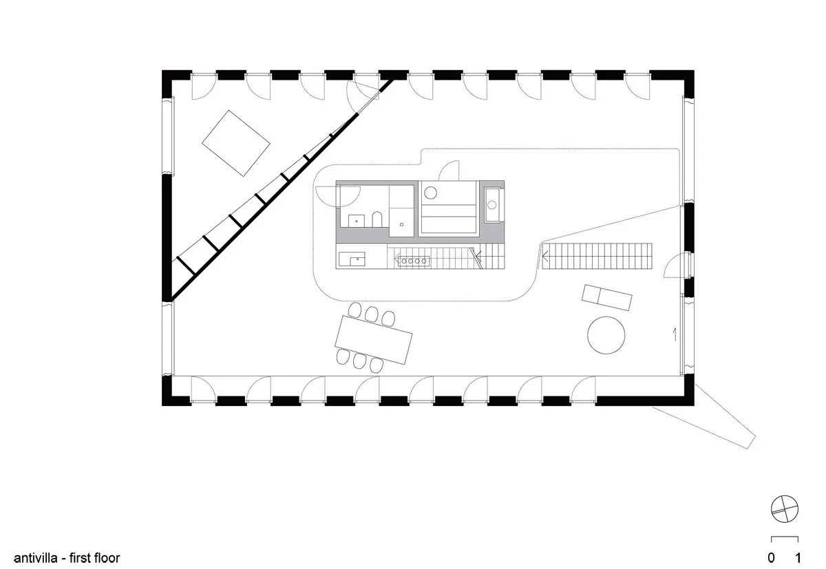
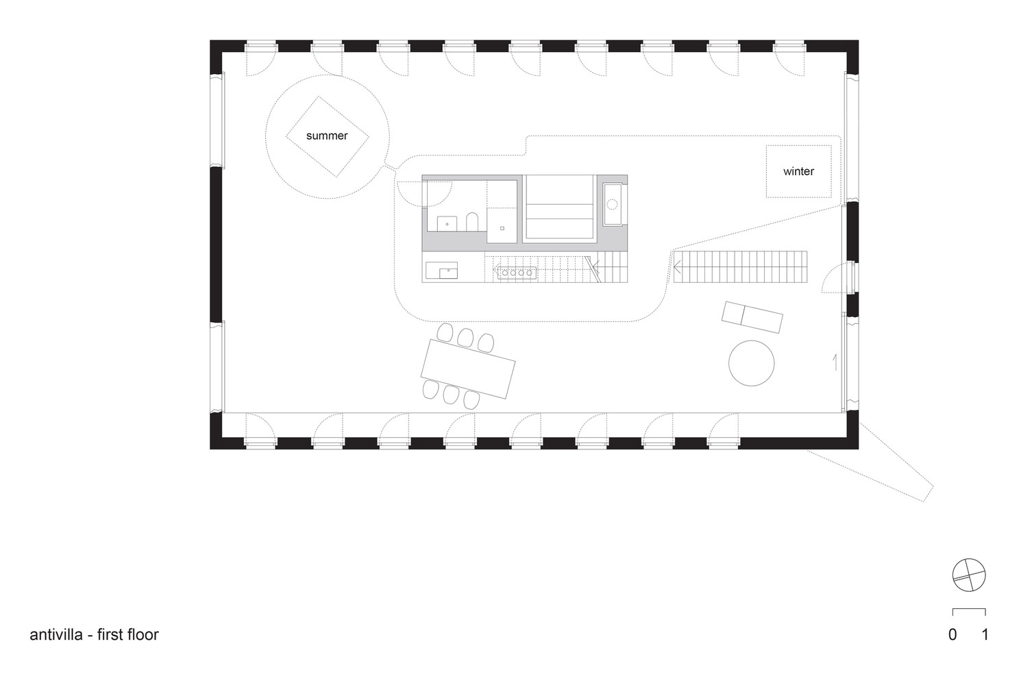
Internally, the building underwent extensive modifications – non-essential walls were eliminated to create an open, fluid space. The redesign introduced a functional core on the upper level, encompassing a bathroom, kitchen, and sauna. The sauna’s stove emerges as a pivotal feature, orchestrating a gradient of climate zones that seamlessly transition from warm interiors to the cooler exteriors, all while being modulated by translucent curtains to preserve the expansive feel of the space.
This adaptive approach to space is particularly evident during the winter months when the habitable area consolidates to roughly 70 square meters, only to extend with the seasons’ shift. This spatial flexibility contrasts with the nuanced adaptation of lighting to meet specific functional requirements.
Antivilla thus revisits and innovates upon Reyner Banham’s 1969 “Architecture of the Well-Tempered Environment,” melding its foundational concepts into a coherent whole. The project honors the building’s existing framework as a “constructional aspect” while introducing “energetic aspect” through strategic climatic modulation, embodying a holistic approach to architectural renovation.


























