We explored a number of possibilities and variations for generating more space to house the additional facilities required for the Musiksaal. We focused on the area between the Musiksaal and the Barfüsserkirche, where the cloisters had been built in the Middle Ages. The area had consequently been cleared for architectural modifications by the Department of Historic Preservation. Initially we proposed extensions to the building between the Barfüsserkirche and the Musiksaal in analogy to the former cloisters but soon jettisoned the idea on urban, architectural, and operational grounds. The Stehlin Musiksaal was brilliantly conceived as a palazzo and all attempts to add on to the building looked like ridiculous patchwork. Similar to the annex of 1939, the extension facing the church would have been perceived as being behind the building and thus inferior to the façade facing Steinenberg.
The only viable solution was to treat the Musiksaal as an autonomous building, uncoupled from the 1939 Casino.
A Palazzo
As an independent building, the Musiksaal obviously had to be bigger than the existing core building of 1876. It would have to grow out of the old building as if it had always been there. That is why it was so important to design the addition, accommodating foyers, service facilities, rehearsal rooms and dressing rooms, so that it appears, at least at first sight, to be in the same neo-Baroque architectural tradition. Our design is based on the rear façade of Stehlin’s building, which had long been largely hidden behind the old extensions. With digital technologies we scanned the façade and we reconstructed it to original scale.
The solid masonry of the historical façade has given way to a façade of insulated, reinforced concrete with rear-ventilated cladding in keeping with contemporary building technology and climate control. We decided that wood would be the most suitable cladding and modified the geometry of the original façade just slightly to meet the structural requirements of that material.
When the Musiksaal was built in the 19th century, certain elements were made out of wood and then painted to match the design of the whole, like the seemingly massive cornice, which had been painted to look like the stone of the façade. The same applies to the columns inside, which had been constructed in wood or plaster because of the acoustics. They, too, were painted to look like stone.
he Lane
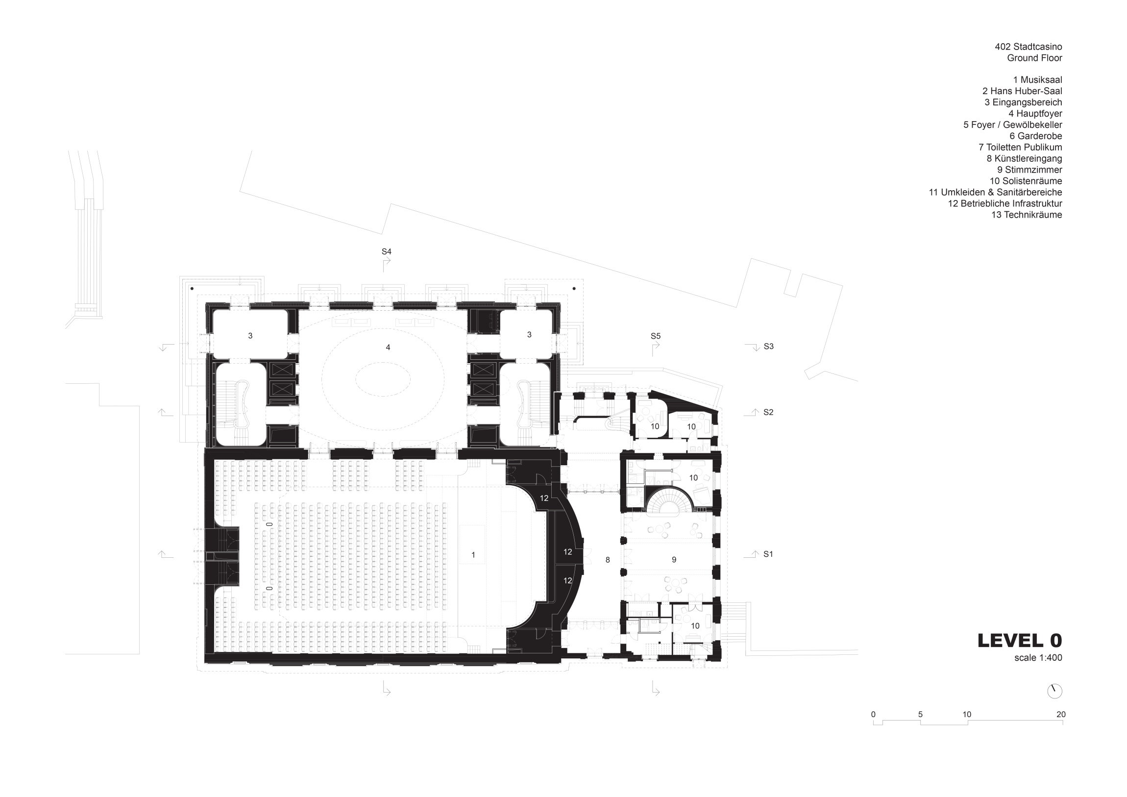
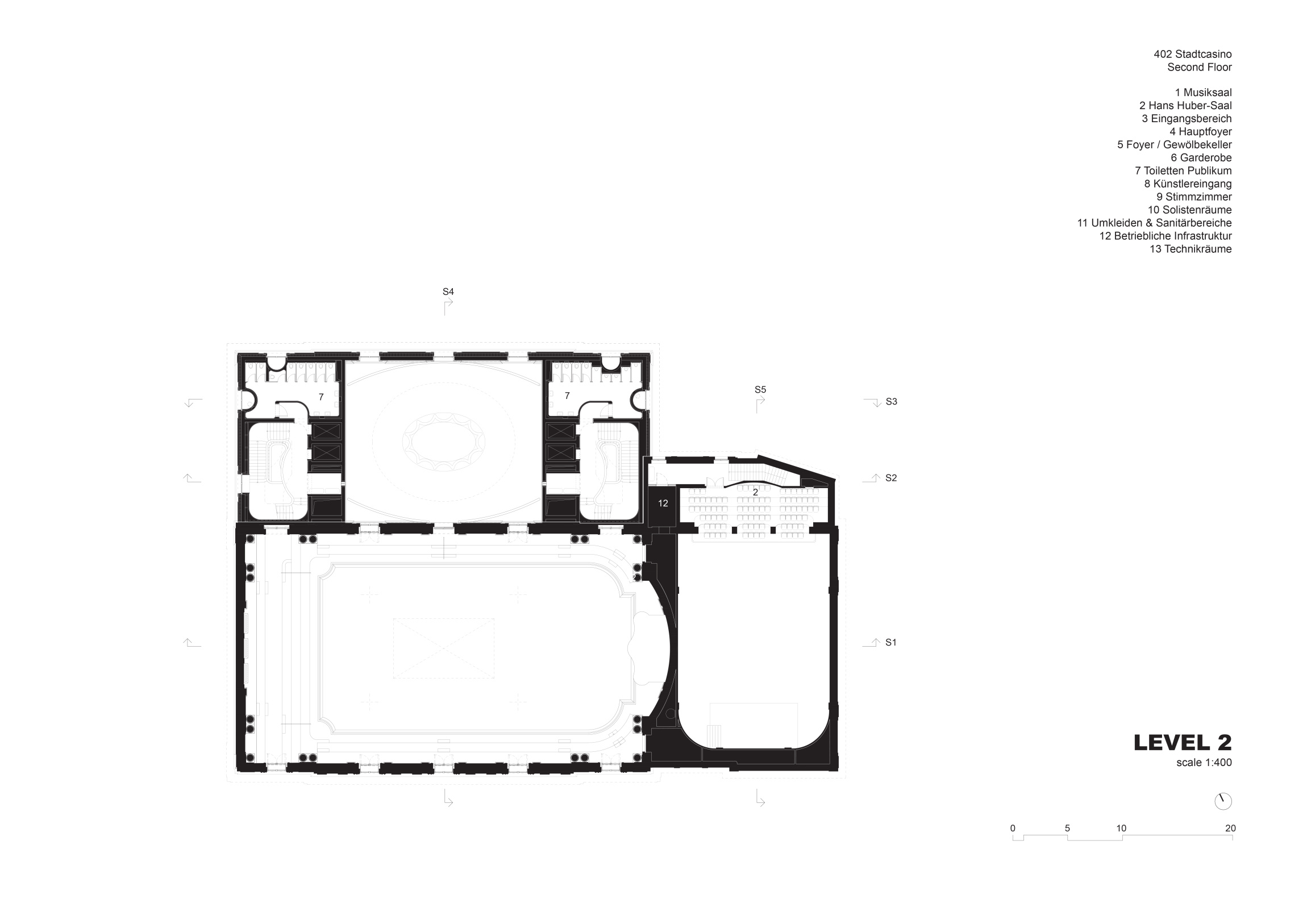
Separating the operations of the concert hall and the Stadtcasino also meant demolishing the former entrance area with its staircase. This allowed for a direct connection between Steinenberg and Barfüsserplatz, where carriages used to pull up, prior to the demolition of the Berri building in 1938 and the construction of the new Stadtcasino in 1939. Thus, the Musiksaal is now oriented both toward the former Steinenberg Cultural Mile and Barfüsserplatz; it is a clear-cut presence on Barfüsserplatz, sharing the space on equal footing with the imposing Barfüsserkirche. The area between the Church and the Musiksaal, once merely perceived as kind of rear courtyard, has become a new public space.
This volumetric recovery of urban space draws attention to other weaknesses. The 1939 Casino has always turned its back to the square, with a rear façade that looks like an apartment building. Furthermore, the 1980s design of Barfüsserplatz includes a tram stop that obstructs the square. The situation undoubtedly needs further consideration, especially as Barfüsserplatz is one of Basel’s most important public spaces.
The Foyers
The enlargement of the overall volume directly adjoining the concert hall generates space on several levels to accommodate foyers and bars as well as rehearsal rooms, dressing rooms and service facilities. The Hans Huber Saal will continue to host chamber music and is now accessed directly from the new foyers.
The new foyers flanking the concert hall are arranged on two levels, accessing the parquet and the balcony. We have exposed the façade facing the concert hall, mirroring it as a new outside wall. For the end walls, however, we use mirrors, a popular element of the 19th-century, making the hall more spacious in combination with the mirrored ceiling. The corners of the upper foyer are detached from the side walls, so that it seems to be a floating, elliptical panel. The two levels of the foyer, with a central hole, are thus perceived as a single space.
Outside, we focused on simulation in designing the extension of the Stadtcasino, while inside we celebrated the stylistic elements of the 19th-century by heightening the artificiality of form, material, and color.
The Staircases
Despite the urban constraints on the extension of the Stadtcasino, we wanted to provide as much space as possible for audiences. Therefore, in addition to the foyers, we added loggia-like recesses to the expansive staircases, where people can linger during intermissions.
We had the original brocade wallpaper reproduced by the Manufacture Prelle in Lyon. Founded in 1752, the company had already woven these wallpapers for the Opéra Garnier the year before the concert hall opened in 1876.
We worked out a custom-made design for the new parquet of the Casino. The lens-shaped geometry of the pattern echoes the wallpaper, while the parquetry is laid out left and right, following the grain of the wood in reference to the historical herringbone parquet of the concert hall.
Taking inspiration from the historical crystal chandeliers, we designed the “Parrucca” luminaire—modern LED lighting to line the staircases in the casino. The play of the light is multiplied by the silver of the hammered metal on the ceilings, which artificially heightens the room.










































