En un tejido tan consolidado como el Eixample barcelonés, se plantea un proyecto radical en su simplicidad: no construir por añadir, sino construir para liberar. La propuesta, situada en Consell de Cent, parte de la transformación reciente de esta calle en un eje verde, y formula una arquitectura que no responde con fachada sino con continuidad urbana.
El gesto fundamental del proyecto es dejar libre la planta baja. El edificio se concibe como un sistema estructural que flota sobre la calle, dejando el espacio de contacto con el ámbito público completamente abierto. Una rampa urbana se adentra hasta el interior de manzana, transformando el límite parcelario en lugar de estancia y paso. El pavimento —continúo, sin escaleras— y la ausencia de cierres refuerzan la voluntad de desdibujar fronteras entre edificio y ciudad.
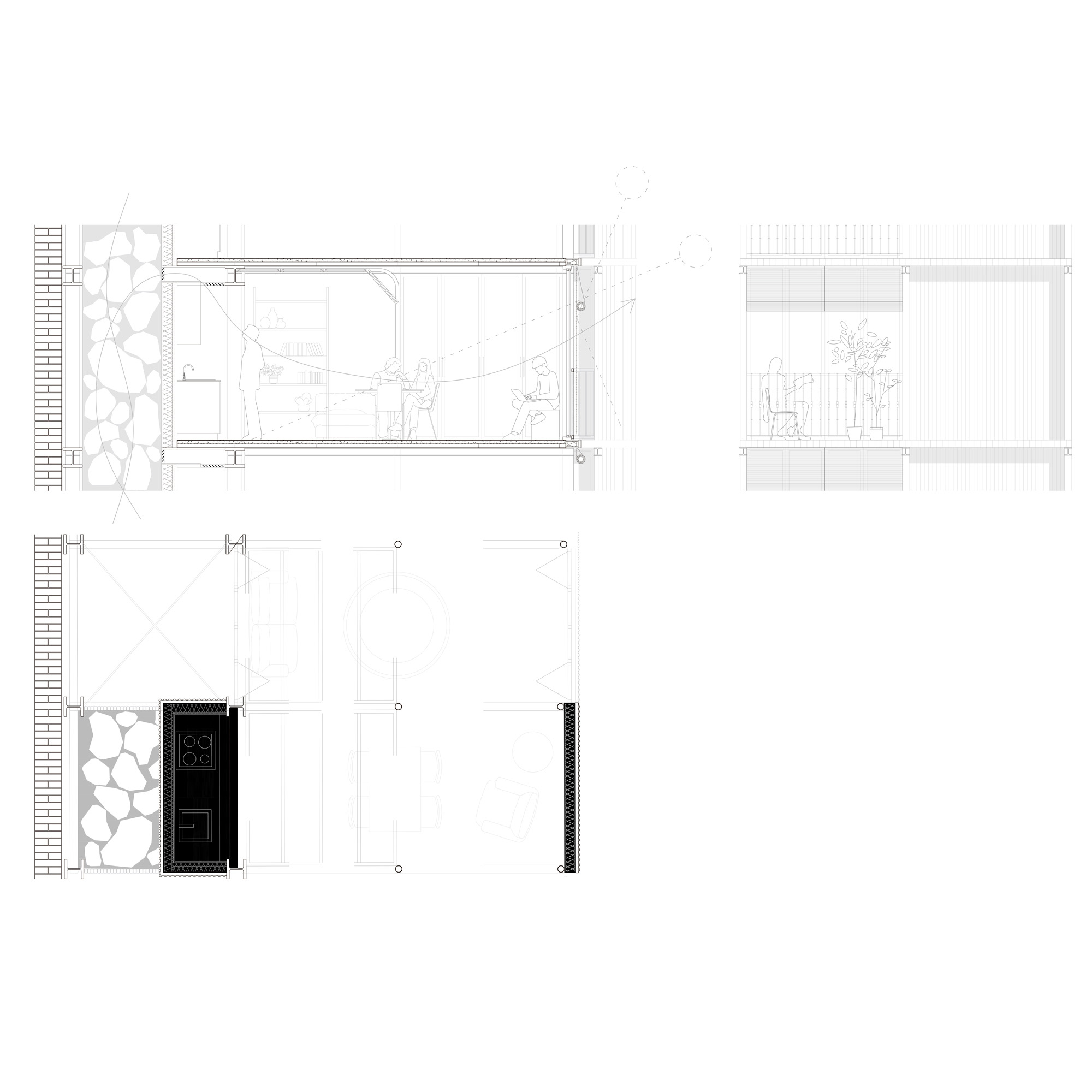
La estructura, ligera y perimetral, se resuelve mediante un sistema de pilares y vigas de acero HEB, con arriostramiento de diagonales y tirantes metálicos. Esta configuración permite liberar completamente el centro de la parcela, creando una planta baja porosa, accesible y activa. Los bloques de viviendas cuelgan de esta estructura en tres brazos, formando clusters de seis plantas que dejan entre ellos espacios de relación comunitaria: rótulas que actúan como conectores visuales y físicos entre el interior de manzana y la calle.
Las viviendas se disponen en una crujía central, flanqueadas por una crujía estructural exterior y una crujía comunitaria polivalente. Esta última se concibe como espacio de relación directa entre los vecinos: una galería abierta, adaptable, pensada para acoger usos cambiantes —del silencio en la conversación. Las unidades residenciales no están encerradas en ellas mismas; se abren completamente, con sistemas de sombras y cortinas que gestionan la privacidad como variable diaria y no como imposición constructiva.
El proyecto explora una nueva relación entre espacio privado y espacio compartido, reivindicando el valor social de la arquitectura doméstica. No se proponen unidades cerradas, sino espacios
vivos, abiertos a la interacción. La idea de cluster se extiende también a la cubierta, donde se dispone una gran terraza comunitaria vegetalizada, colonizada por plantas trepadoras, sombras y usos colectivos: tender la ropa, tomar el sol, comer.
El diseño climático desempeña un papel central. El edificio incorpora un sistema pasivo de regulación térmica mediante la inercia de piedras apiladas en una de las crujías, que actúa como pulmón térmico vertical. Este sistema se activa de forma natural gracias a la ventilación cruzada, el efecto chimenea y la regulación automática de la apertura de lucernarios.
En verano, el frío acumulado se distribuye por ventilación; en invierno, la masa térmica almacena calor durante el día y lo libera por la noche. El resultado es un edificio altamente
eficiente sin necesidad de climatización activa.
Esta propuesta no es objeto arquitectónico, sino un fragmento de ciudad. No busca destacar por su forma, sino desaparecer en favor de una nueva forma de habitar: más flexible, más colectiva, más climáticamente consciente. Un proyecto que cuestiona los límites entre interior y exterior, entre vivienda y calle, entre arquitectura y urbanismo.



































