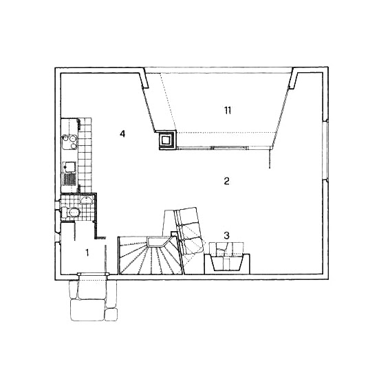
Rudolf Olgiati Haus Dr. Allemann

Source: Rudolf Olgiati Location: Wildhaus, St. Gallen, Switzerland Year: 1968
Date: May 24, 2025 Category: Classic

The second and last exposed concrete structure by Rudolf Olgiati. The west side of the house was disguised with Eternit slate tiles in spring 1977, without the architect’s knowledge, depriving it of its original expressiveness.

 

This site uses Akismet to reduce spam. Learn how your comment data is processed.

Close
Close
Close