Nothing is what it seems..
The Kazemat Koningsweg is a hideout on the Veluwe in the Netherlands. The competition brief called for a folly that would blend seamlessly into the natural landscape, hiding and camouflaging itself. The small holiday house is a place to slow down and get a special connection with nature.
The Kazemat is situated within a former military compound that has been transformed into an area featuring housing, workplaces and eleven small holiday homes. The area is part of the Veluwe park, where deer, foxes, birds, insects and other animals roam freely without boundaries and often come close to the hideout.
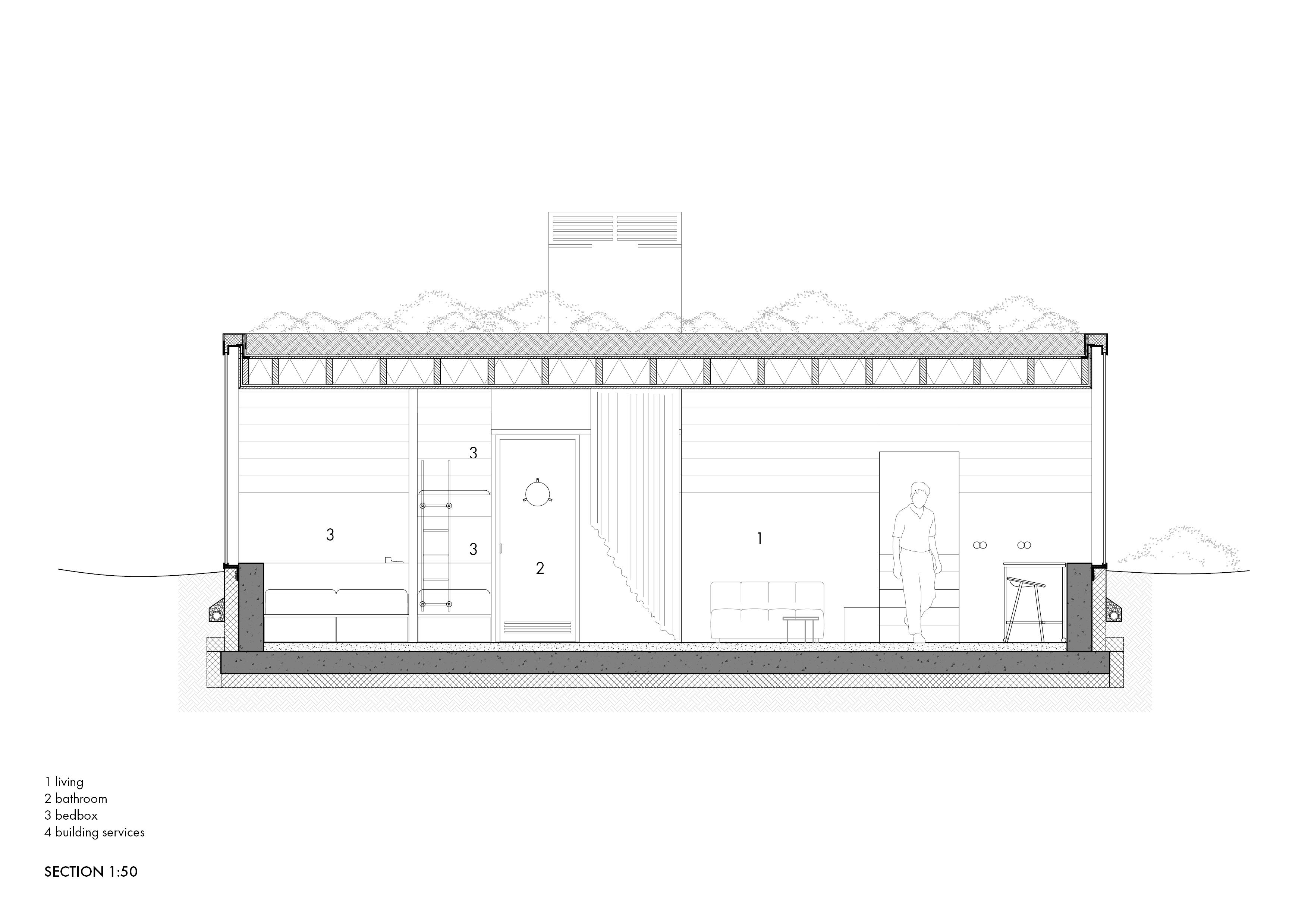
Kazemat Koningsweg is sunken into the ground, covered with the natural flora of the area and overlooks the surrounding terrain. This house blends into the landscape, digging itself in and presenting as a natural element. As you approach, its bunker like features become apparent-angular and brutal.
It takes a concealed position and camouflages itself, but it also wants to reveal itself. The landscape folds up and is sharply defined by a mirrored window that camouflages the hidden volume in a completely different way.
Through the metal door, you descend into the earth until you reach waist height, entering an open and transparent space. The sloping hood directs your view outward, over the ground level and toward the treetops.
The unfolded space is supported by heavy columns and constructed with robust materials such as cast-in-place concrete, sturdy wood and a refined curtain wall. This combination gives the folly a spartan yet delicate quality.
The building’s surface is elevated, allowing nature to be, as it were, freed and unfolded. The landscape and its native animals are given a prominent place on the roof. A sloping column extend through the green roof, creating a habitat for birds and bats.


















