An apartment is purged of alterations made at different times.
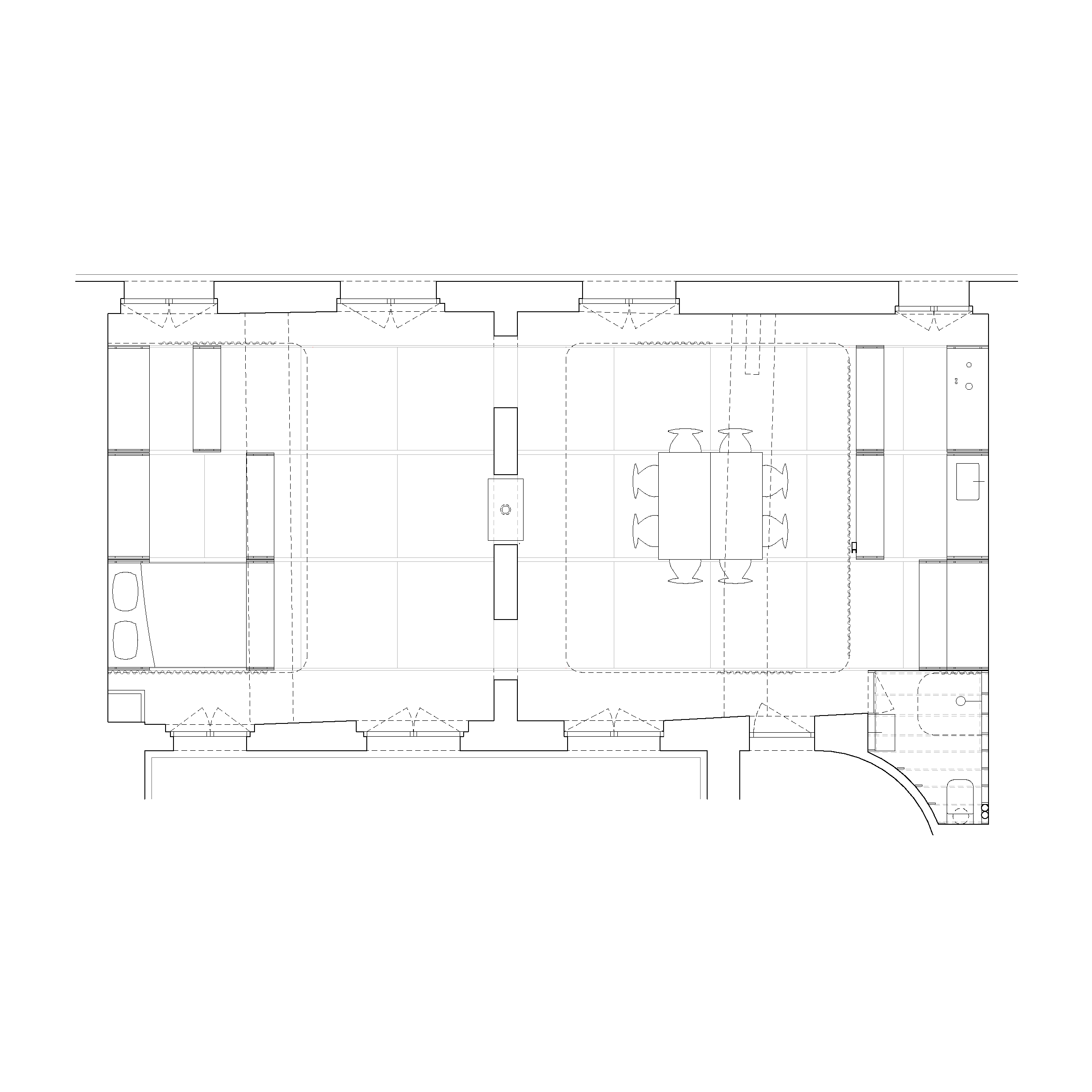
The load-bearing walls divide the apartment into two rooms.
They are stitched and sanded to return to the original material.
Furniture made using a mason’s rule in aluminum furnishes the new space.
Some are fixed to accommodate the kitchen and Murphy beds.
Other mobiles slide on rails to change the layout of the apartment.
An aluminum heated floor allows thermal regulation of the new apartment.




















