Las Puccias son unos bocadillos originarios de Puglia (Italia). Se hacen con un Pan artesanal muy crujiente, hecho con levadura de masa madre, al momento y con diferentes rellenos.
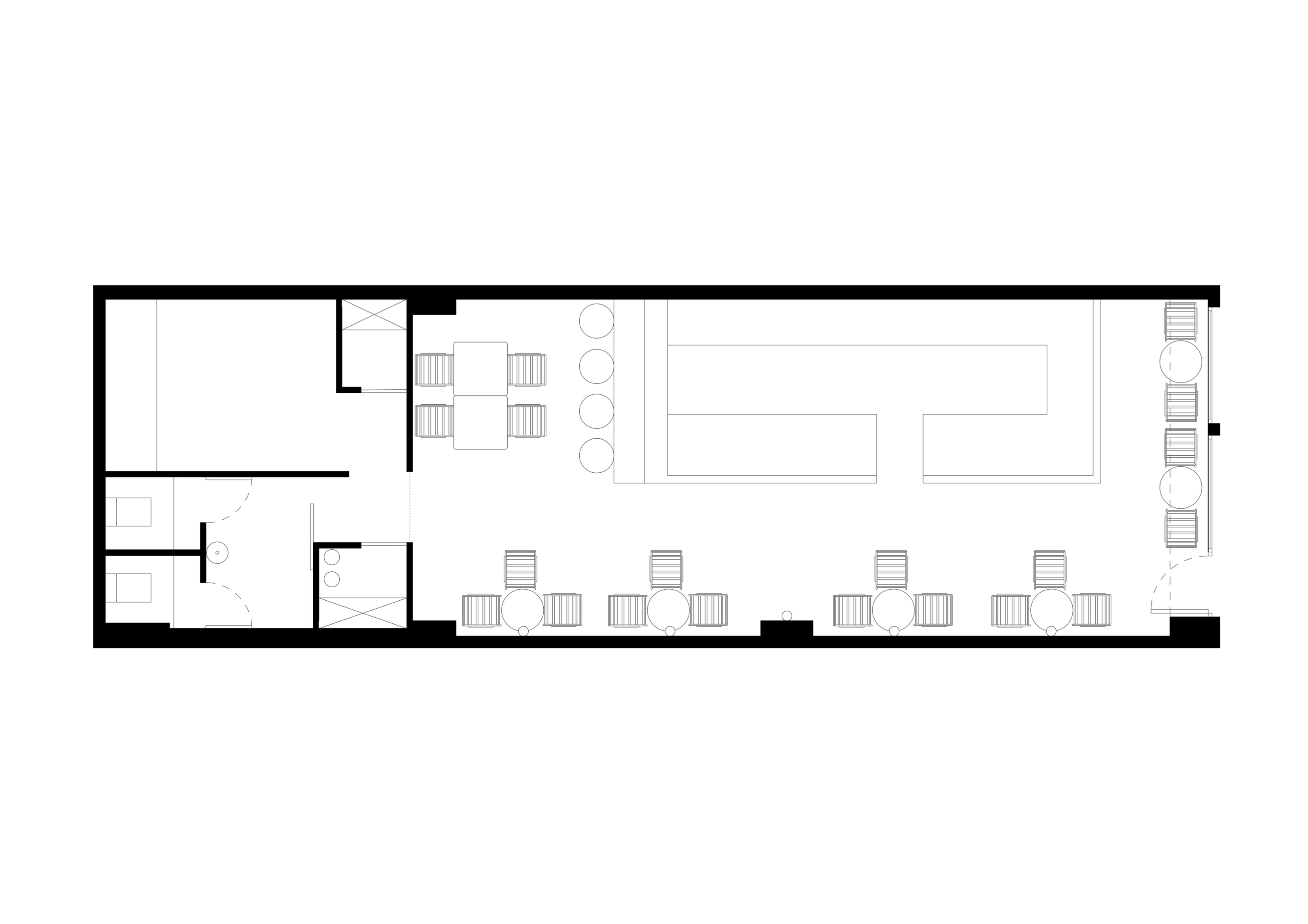
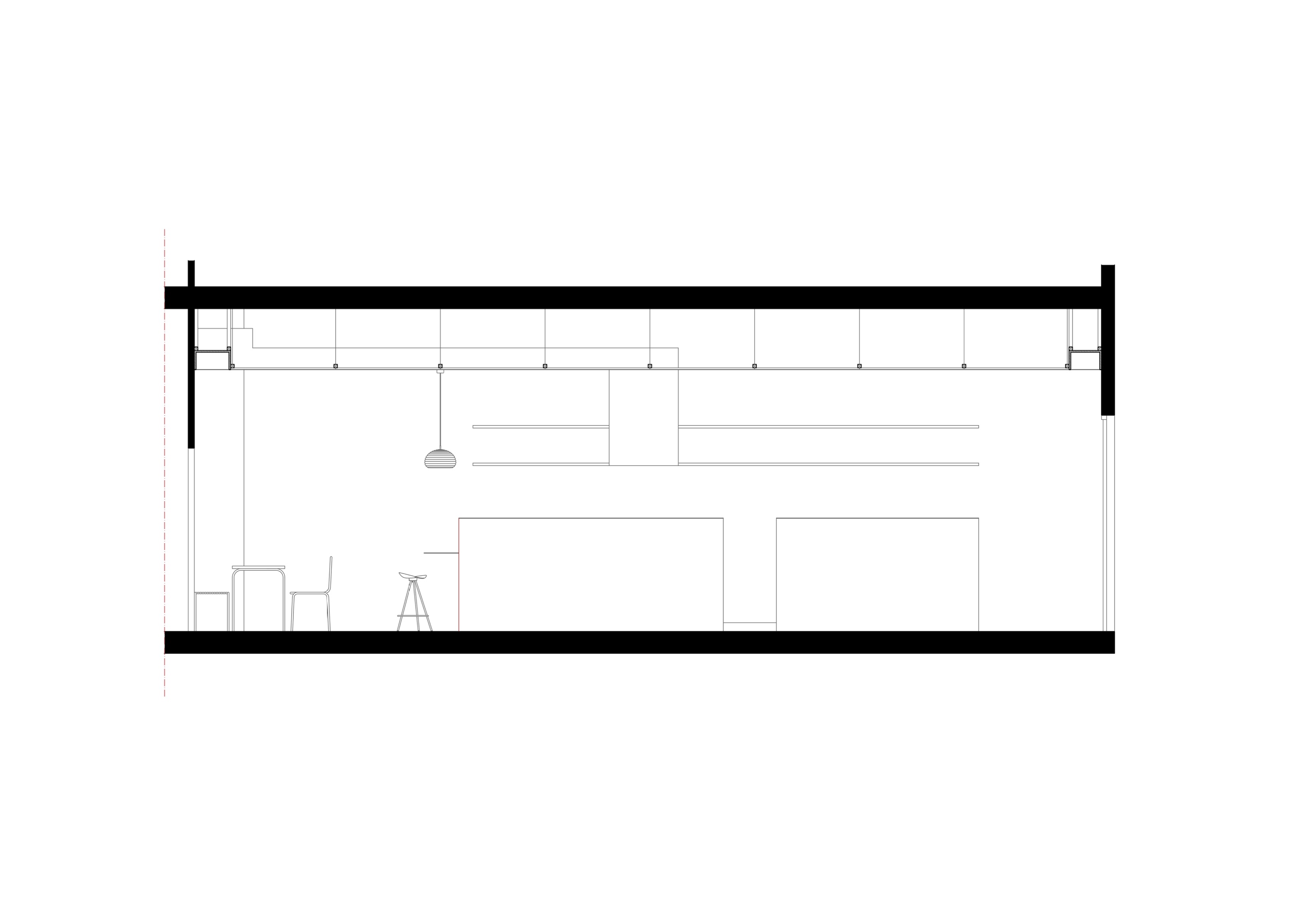
Un material y un color perteneciente a la identidad de la marca (el naranja) predominan y caracterizan este espacio de claras connotaciones pop, que se ha pensado desde un comienzo como un proyecto potente, contundente, muy claro y decidido, donde la luz es abundante y proveniente del falso techo “como en un estudio fotográfico”.
Junto a la goma naranja que sirve como revestimiento vertical en las paredes y para los suelos, se usaron algunos elementos auxiliares en acabado metalizado para enfatizar el valor eminentemente aséptico del espacio gastronómico. Las barras (en acero inoxidable) y el mobiliario destinado a usuarios y clientes (de aluminio en crudo) se resuelve con elementos anónimos, muy conocidos, típicos para decorar las terrazas de los bares.
Algunos elementos históricos del diseño destacan y ayudan a reforzar la imagen y la identidad del local. La lampara Nessino di Giancarlo Mattioli y los apliques Teti de Vico Magistretti ambos de Artemide y que se colocan en la pared izquierda junto a los percheros Mirac de m114, marcan el ritmo de las mesas dedicadas a la degustación de los clientes. Al fondo una barra, con varios taburetes Jamaica en acabado aluminio, otro clásico local de Pepe Cortes para BD y las lámparas de suspensión Splugüen de Achille Castiglioni para Flos, permite ver la preparación de los bocadillos.
Un espacio dedicado a los clientes que deciden disfrutar de una vista privilegiada de la cocina y de la preparación de la especialidad de la casa. Al fondo una zona de servicio se delimita con una cortina metálica de cadenitas, otro elemento anónimo del imaginario común pertenecientes a todos. En todo caso se trata de dar valor a cosas comunes, sencillas y muy importantes para dar carácter al espacio.
La integración del diseño gráfico con el entorno físico permite articular y ordenar los elementos de mobiliario y las funcionalidades del espacio. Este enfoque no solo organiza cada componente según su propósito —sillas, mesas, menús, luminarias, aseos— sino que también establece una narrativa visual que conecta la estética del lugar con su función.

















