Gehrdt Bornebusch was a Danish architect whose work has been influenced by both modernism and tradition.
Gehrdt Bornebusch was trained as a bricklayer in 1947 and then studied at the Danish Academy of Fine Arts until 1950; from 1949 to 1954 he was employed by Arne Jacobsen.
Bornebusch made his mark in the Danish architectural world early on, where from 1956, in partnership with Max Brüel and Jørgen Selchau (who resigned in 1970 and 1985 respectively), he won several competitions, e.g. Vangeboskolen (now part of Ravnholm Skole) in Søllerød (1956, together with Henning Larsen, built 1961) and Toftevangskolen (now part of Søholmskolen) in Birkerød (1959, built 1962); Holbæk Seminarium (1965) was listed in 2010. The seminary closed in 2014, and the buildings now house CSU Holbæk.
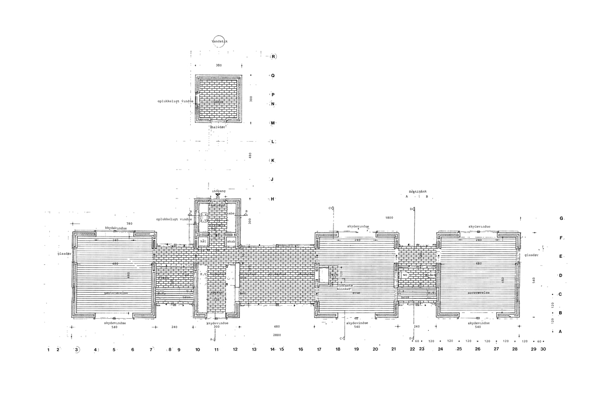
Gehrdt Bornebusch’s work has been characterized by equal parts modernist spirit and traditional Danish building culture. The buildings are functionally and aesthetically clear, both on a large scale such as the Amtssygehuset in Herlev (Herlev Hospital) (1966-1974) and on a smaller scale, e.g. a summer house in Odsherred (1967) and a villa in Søllerød (1970, both listed), the Danish embassy in Beijing (1974) and Hellerup Parish House (1988).
As Royal Building Inspector from 1982, Bornebusch was responsible for several restoration projects, including the reconstruction of the National Museum (1992) and the renovation of Brumleby (1992-1996). He received the Eckersberg Medal in 1973 and the C.F. Hansen Medal in 1999.




















