Philip Johnson + Howard Barnstone + Eugene Aubry Rothko Chapel

Architects: Philip Johnson, Howard Barnstone, Eugene AubryYear: 1971Photographs: Chad Kleitsch, Adelaide de Menil Carpenter, Romano CagnoniLocation: Houston, USA
Date: February 28, 2025 Category: Classic

In 1964 Mark Rothko was commissioned by John and Dominique de Menil (who are also founders of the nearby Menil Collection that is housed in the Renzo Piano-designed Menil Museum and Cy Twombly Gallery) to create a meditative space filled with his site-specific paintings.

The original architect assigned to work alongside Rothko was Philip Johnson, with whom Rothko clashed over their distinct ideas for the building. Rothko would object to the monumentality of Johnson’s plan as distracting from the artwork it was to house. For this reason the Chapel would go through several revisions and architects working on the meditative space. Rothko continued first with Howard Barnstone and then Eugene Aubry, but ultimately did not live to see the chapel’s completion in 1971. It was after a long struggle with depression that Rothko committed suicide in his New York Studio on February 25th, 1970.

KEM145

It was John and Dominique de Menil, Houston philanthropists who promoted modern art that commissioned Rothko to create a series of transcendental and meditative forms of art that were to be housed in a non-denominational place of worship also designed by Rothko with the help of architect Philip Johnson.

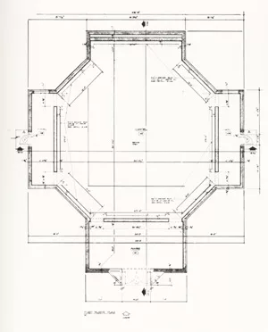
The new Rothko Chapel would be located adjacent to the Menil Collection and the University of St. Thomas with a 1920s bungalow style neighborhood in Houston Texas.

After the confliction between Rothko and Johnson, the duties of architect were turned over to Howard Barnstone, the supervising architect on this and other Johnson buildings in Texas. Barnstone and his partner Eugene Aubry developed the design in accordance with Rothko’s wishes. After Rothko’s death in 1970, Barnstone left the project because of illness, and Aubry asked Johnson to act as a consultant in completing the design.

“I have long believed that a piece of art must be wholly viable within the bounds of its own medium. For example, a piece of music must satisfy and stimulate by means of its own musical structure and not produce its effects simply in relation to whatever words it may set or whatever extra musical program it may reference. Similarly, a work of visual art must speak to the mind and indeed the soul of the viewer not through suggestive titles or embedded texts, but by engaging the eye and the imagination through its own imagery. A work of art must ultimately be a thing in and of itself and not simply a representation of something from the world around it”.

Through the work of Rothko he wanted to combine perceptual immediacy with spiritual import. As Rothko said upon completing the Chapel paintings, “I wanted to paint both the finite and the infinite.”

For Rothko, the Chapel was to be a destination, a pilgrimage far from the center of art, New York, where seekers of Rothko’s newly spiritual artwork could journey. The Chapel would consume six years of Rothko’s life, gradually transforming him and his art into an exploration and devotion for the possibility of transcendence.

This site uses Akismet to reduce spam. Learn how your comment data is processed.

Close
Close
Close