La casa se sitúa en el centro histórico de Vila-real, con la unión de dos parcelas edificadas para lograr una de mayor amplitud. Las dos parcelas contaban con construcciones muy deficientes, por lo que inicialmente se estudió su rehabilitación, pero se desestimó debido al altísimo grado de deterioro de las mismas.
Se plantea un programa para una vivienda unifamiliar amplia y cómoda que permita la fluctuación en el número de habitantes, desde un único núcleo familiar hasta la convivencia de varios núcleos durante largas temporadas. Además, el programa debe incluir una oficina independiente que no interfiera en la cotidianidad del hogar y un espacio de usos múltiples vinculado al patio interior.
Las estrategias que marcan el proyecto se definen en cuatro acciones:
1. Conservación de la fachada de las edificaciones existentes para mantener el carácter tradicional y la baja altura del entorno.
2. Espacios desjerarquizados, bien conectados y polivalentes, permitiendo la adaptación a cambios de uso.
3. Construcción de bajo impacto ambiental, con muros de carga de bloques de tierra compactada, forjados de madera con vigas y paneles de CLT, y aislamiento exterior con una capa proyectada de cal y corcho.
4. Reducción de la demanda energética, con altos estándares pasivos, especialmente diseñados para los meses cálidos mediante inercia térmica, control de humedad y ventilación.
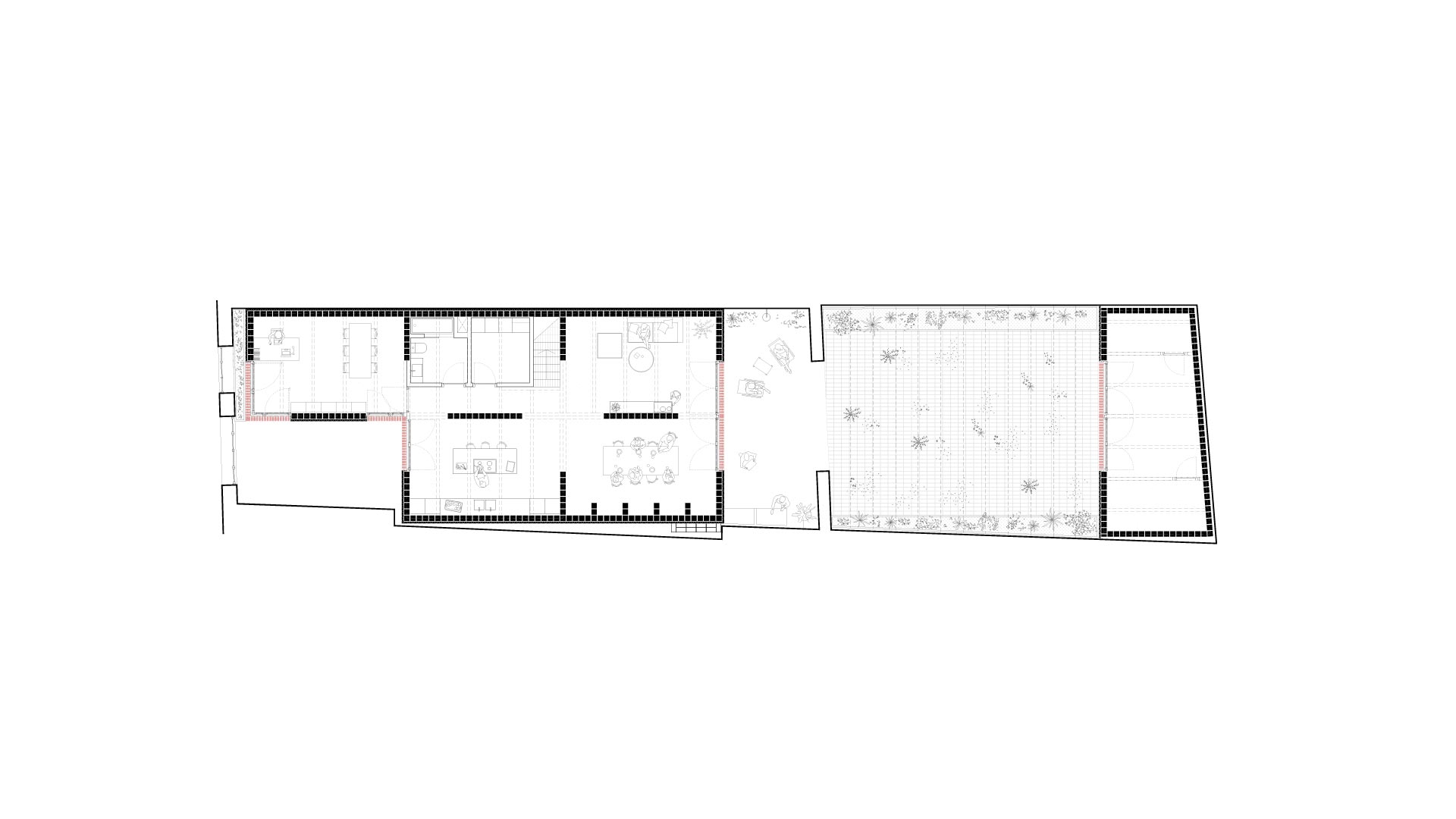
El barrio donde se ubica la casa presenta una trama urbana estrecha, históricamente conformada por casas de cuerpo con planta baja y un piso superior. La oportunidad de ocupar dos parcelas permite diseñar una vivienda con mayor superficie en planta sin necesidad de superar las dos alturas. Se decide conservar la fachada de las edificaciones existentes para mantener el carácter histórico del barrio tanto en materialidad como en altura, preservando además las medianeras de tapia y los muros de las fachadas interiores de la manzana. De esta manera, se evita comprometer la estabilidad de las edificaciones vecinas con demoliciones y se aprovecha la preexistencia para delimitar la nueva construcción sin entrar en contacto directo con ella.
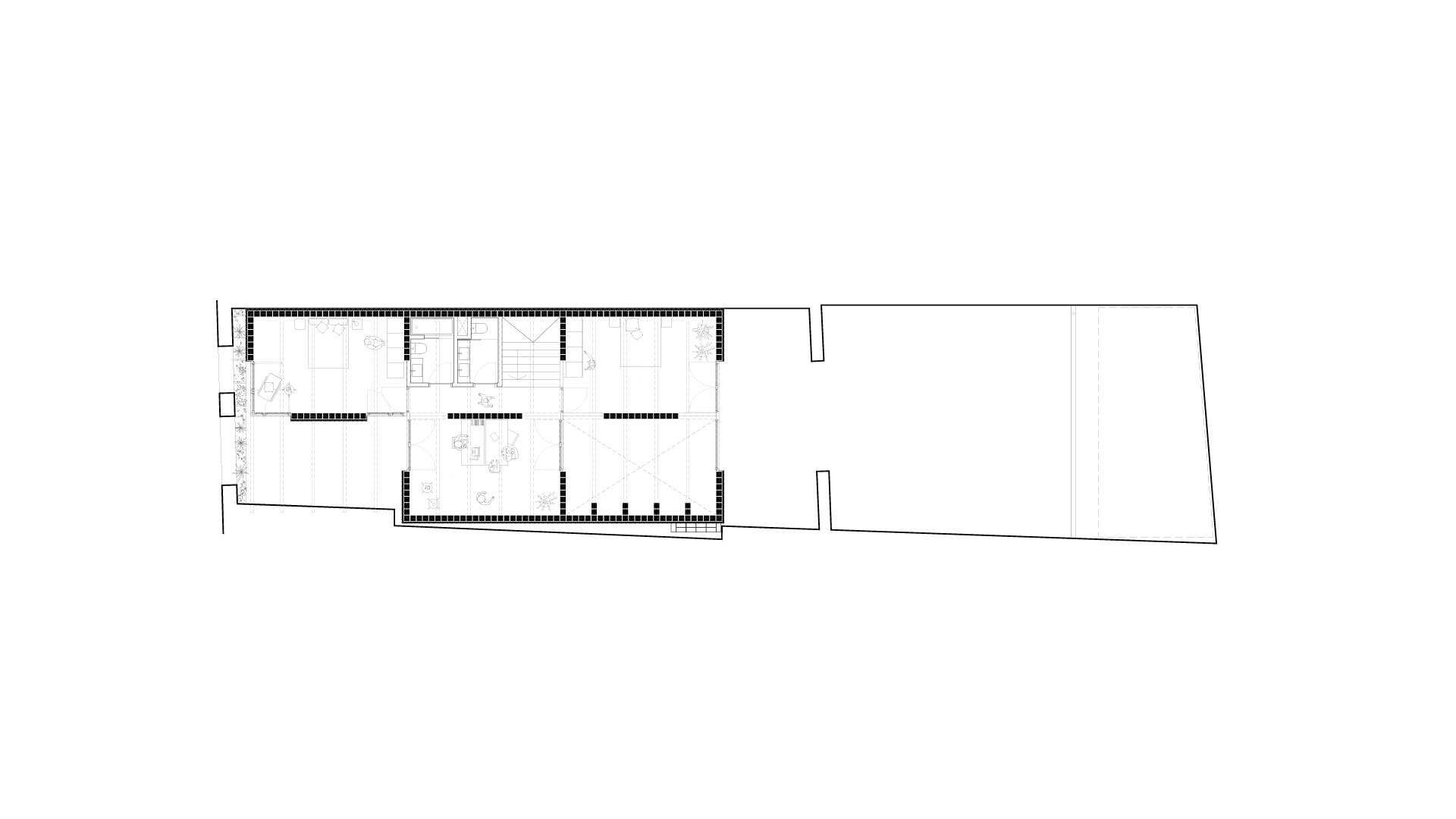
La distribución de la casa parte de una matriz clara de muros de carga y espacios de tamaño uniforme, de aproximadamente 20 m², incluyendo el patio de acceso. Esta matriz se altera en los cruces de muros, generando conexiones entre cuatro espacios en estos puntos, lo que permite vistas diagonales y una sensación de amplitud por la ausencia de rincones cerrados. La cocina ocupa una posición central, desde donde se puede controlar toda la planta baja y el acceso a la vivienda.



























