This project renovated the wine cellar of an old bourgeois weekend house, built in the countryside in the early 20th century.
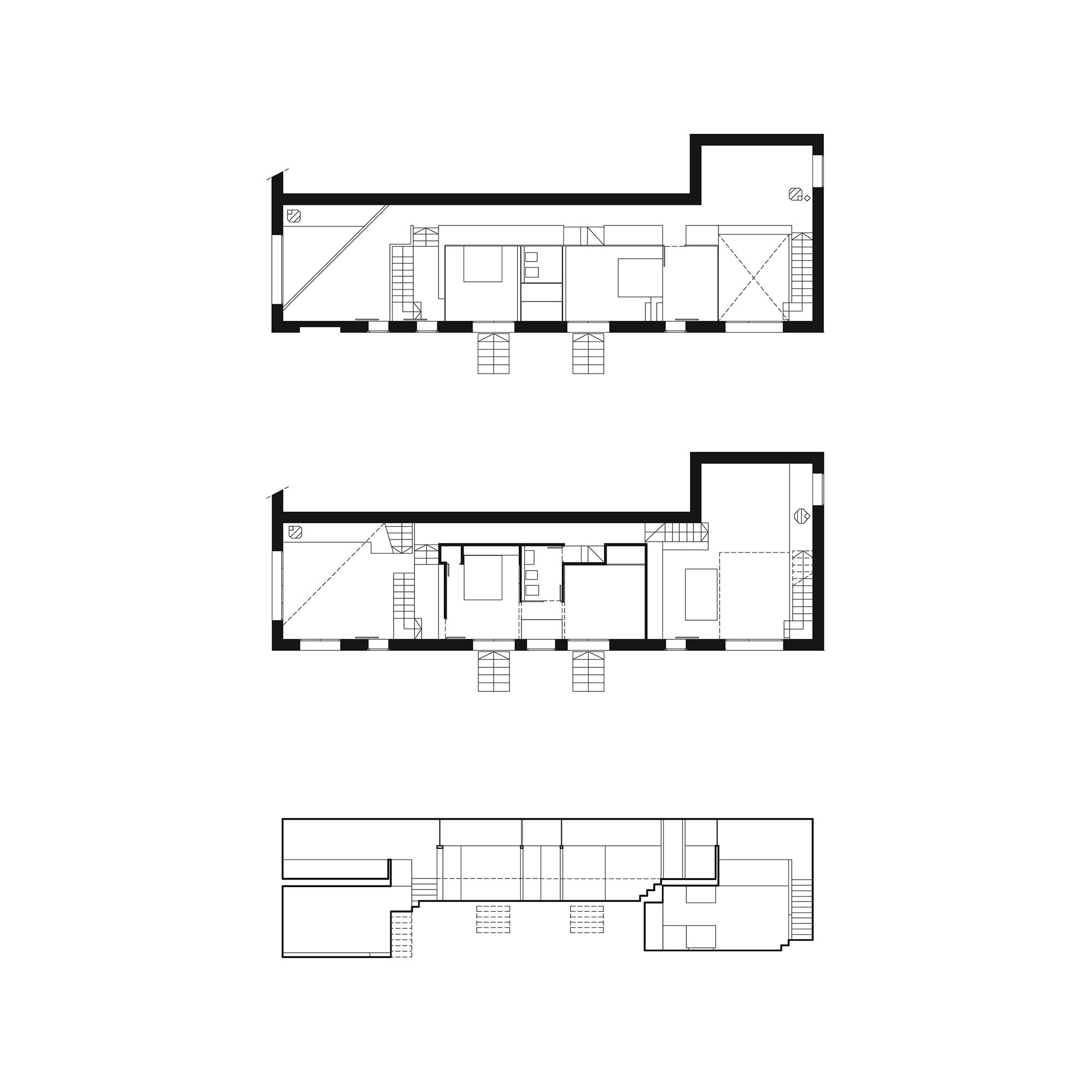
The space in question, a unique storeroom that was being used as a container, had varying topography: its two ends were adapted to deal with the uneven terrain, while its central part was raised above the ground due to the wine barrels kept there. All of this was under one roof, a Catalan-style flat rooftop terrace on one level (unlike the different floors inside).
The house’s two differing approaches had been resolved by means of a pair of small stair-cases, linking the flat roof space with the varying levels within the annex.
The unusual layout of the house, in terms of form and composition, offered certain freedom when it came to renovating the interior and the façade: the large window on the main façade was thus removed, and a new window setup was installed, through which the garden could be accessed directly.
The interior offers a view of the whole space, although the staggered section preserves the privacy of the bedrooms, which are connected by a shared bathroom.






















