Skeppsholmen Island used to be the headquarters of the Swedish navy, and, as such, it was a parallel city, autonomous, with all the resources necessary to carry out its mission: shipyards, barracks, munitions dumps, hospitals, churches, workshops, gymnasiums…
Towards the end of the 19th century, the navy abandoned Skeppsholmen and its buildings became theaters, museums, schools, and so on.
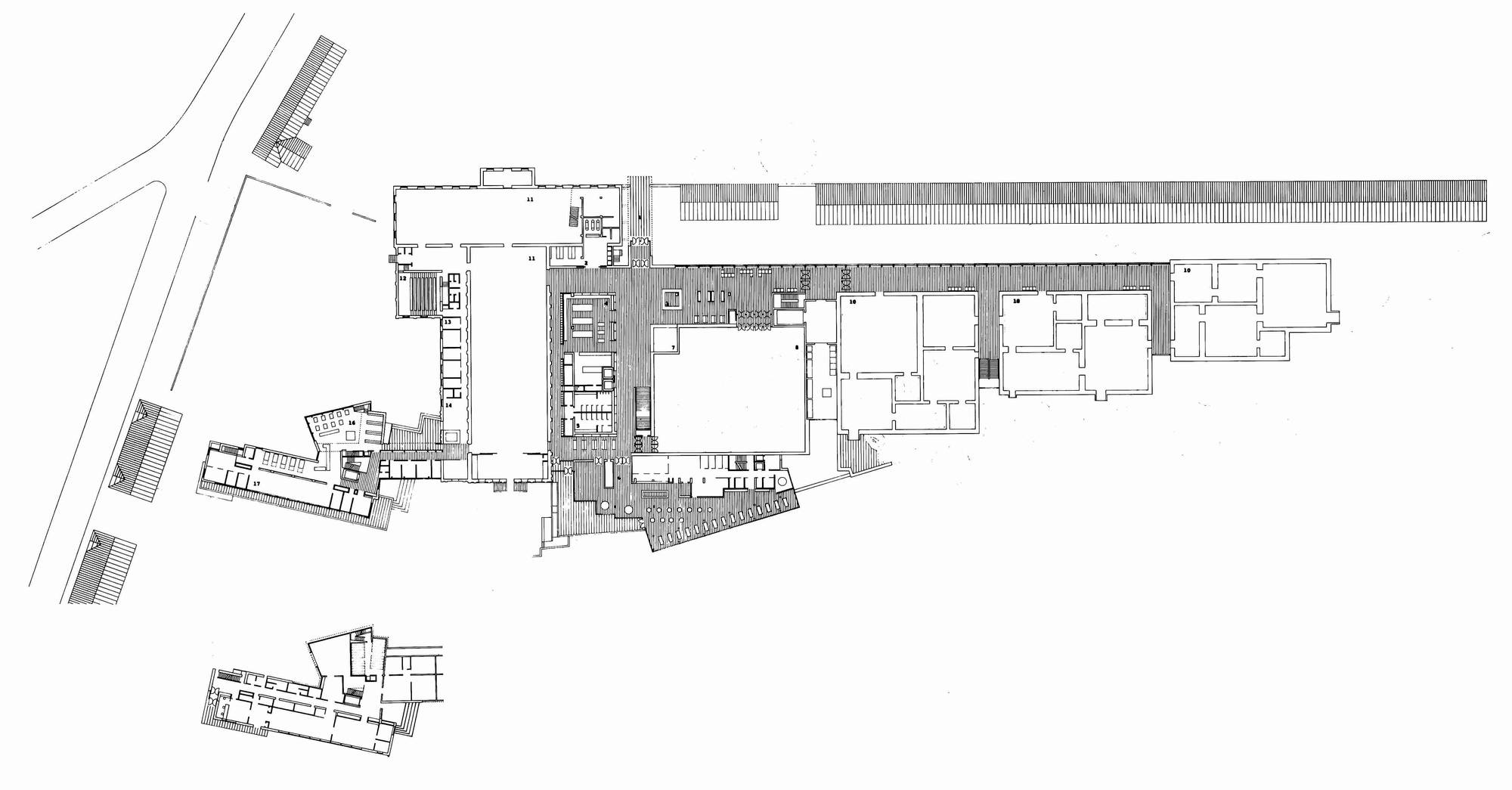
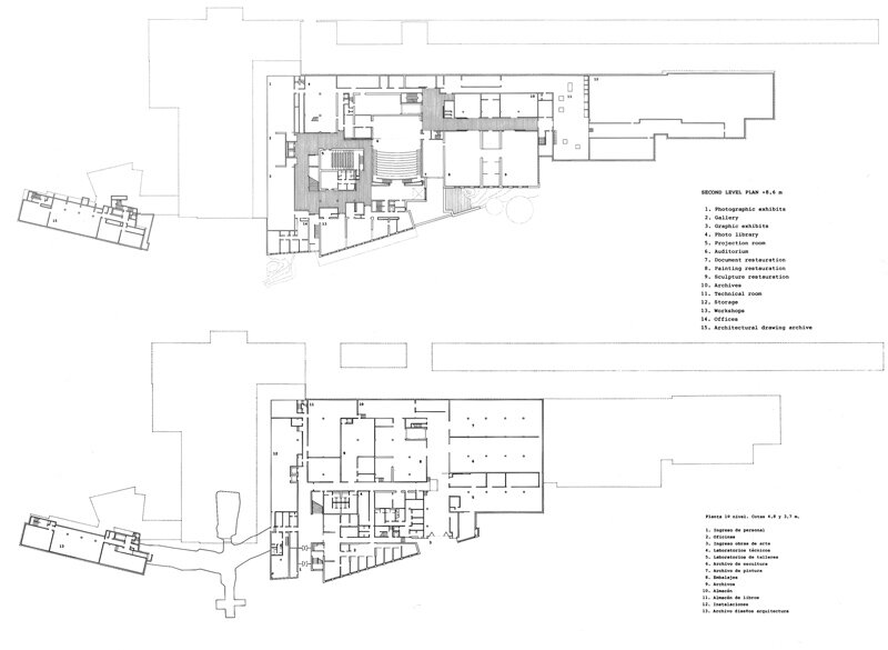
One such institution was the Moderna Museet. In 1990, in a quandary over whether or not to enlarge it, it was decided that a new museum including the Arkitekturmuseet, too, should be built. The strange thing about the ensuing competition was that the architects were allowed to choose the project’s location. This is where the notion of strategy came in: rather than giving in to the temptation of designing a conspicuous building on the waterfront (Jørn Utzon’s Sydney design was still in recent memory), Moneo opted for a building not based on contact with the sea but on familiarity and rapport with the other buildings on the island. This is what led to the halls whose shape is determined by the skylights above. The free-standing nature of most buildings on Skeppsholmen is respected because the museum halls are gathered close to the Tyghuset, an exception on the island because of its 250-meter length, thus reducing its presence on the island. Hence, the museum does not transform the appearance of Skeppsholmen. Instead, the new buildings blend into the island and adapt to its topography until they finally reach sea level, where staff and works of art come and go.
Though built at the same time as the Guggenheim Museum of Bilbao, Moneo’s work is its antithesis: the Moderna Museet and Arkitekturmuseet are a place from which Stockholm’s beauty can be appreciated, not a place vying to be the center of attention.




























