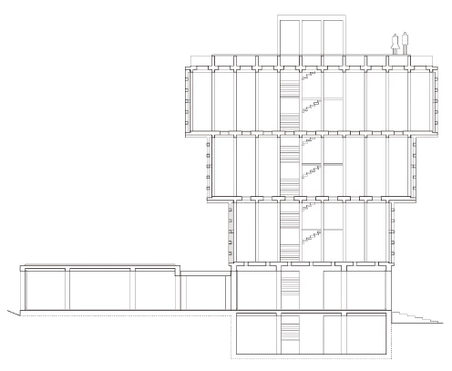
This is a generic spatial structure for a specific condition. It is a homogeneous and monotonous grid of columns in a square plan format that increases its size in height. Around a central open lift, there is a spiral staircase with a balcony half way overlooking every floor. There are no walls in the entire system, only a single type of slender column without direction that is repeated three hundred times throughout the three levels. The distance between the columns is determined by the size of the art collection that will populate the building.
Every room has the same character, a dense and labyrinth-like landscape almost without any mass. Despite the sameness of elements there is a strong variation from room to room: the amount and size of openings in the ceilings and the distance from the core to the perimeter are unique in every level. Since there are no walls, the paintings will be informally floating in the air, somehow cancelling any gravitational expression, analogous to the fragile assemblage of concrete columns that supports them: a system that becomes seismically stable by means of the concrete mesh of its façades.
It is precisely that inexpressive texture of the exterior surfaces, a dark grey concrete and hand painted glass, what enhances the scale of the building in relation to the surrounding park. Its presence is the simple manifestation of a symmetrical scheme, an inverted entasis, which is diagonally anchored to the natural ground with an L shaped floor, with two lateral galleries and the access at the very corner of the hill.
The complementary program of the exhibition space occupies this open ground floor. While the more intimate areas (a small library, storage and office spaces) are in a basement, the upper level is an urban terrace aligned with the top of the trees.





















