Transformation d’une maison de village en maison des associations
L’ancienne maison Garipuy est actualisée en maison des associations.
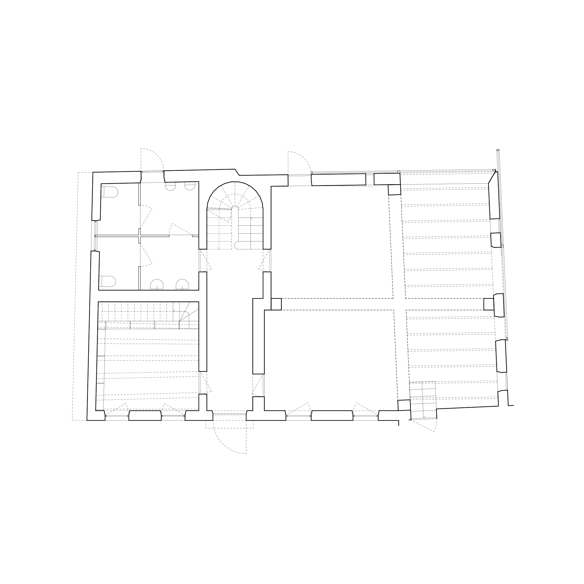
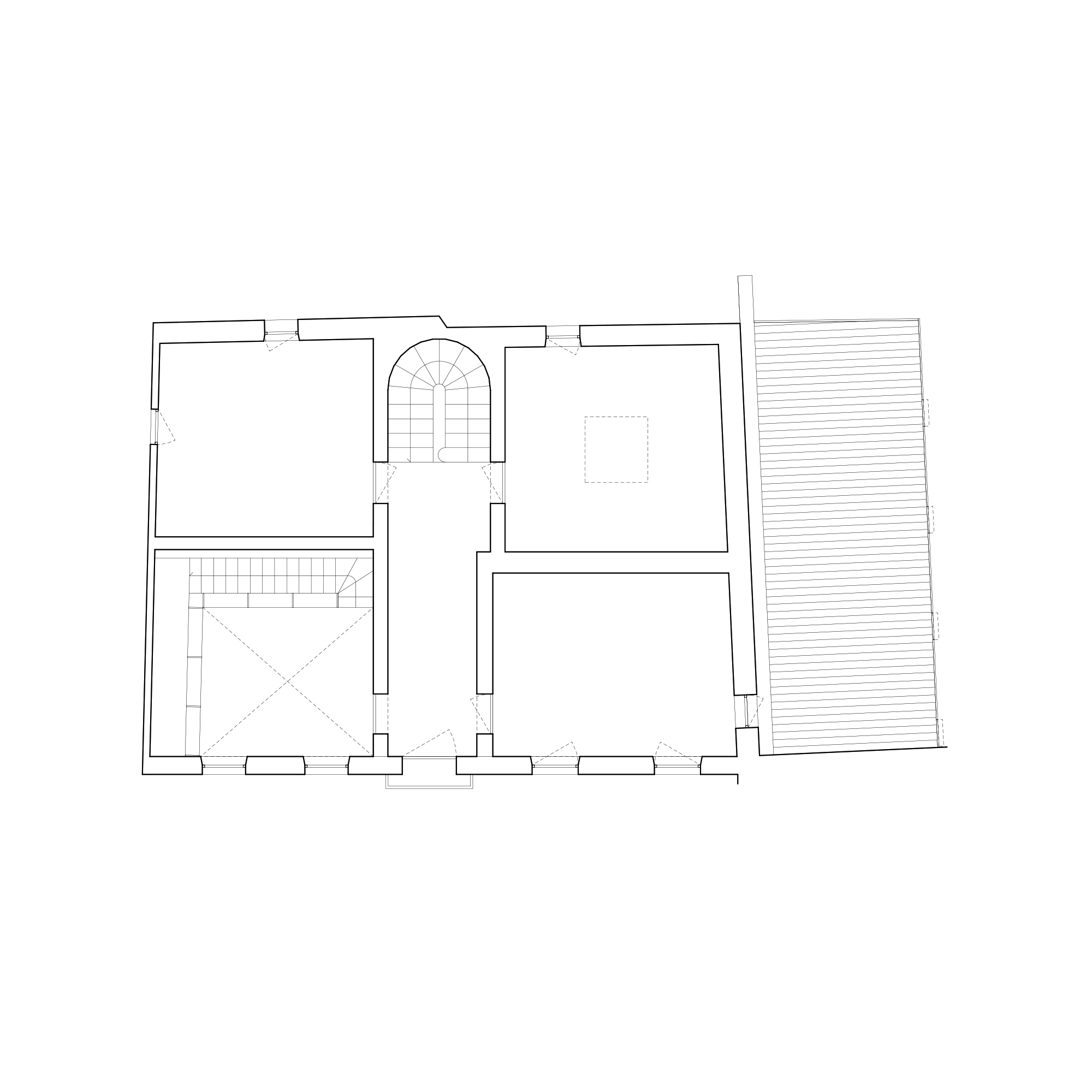
Une série d’interventions ciblées permettent d‘accueillir ces nouveaux programmes.
Quatre pièces attenantes sont regroupées pour créer la salle réservée aux associations.
Deux pièces superposées sont regroupées pour créer d’une petite bibliothèque en double hauteur.
L’ancienne grange s’ouvre largement sur le parc attenant par deux grandes baies coulissantes.
Un shed en toiture permet de ventiler naturellement et de faire entrer la lumière naturelle.






























