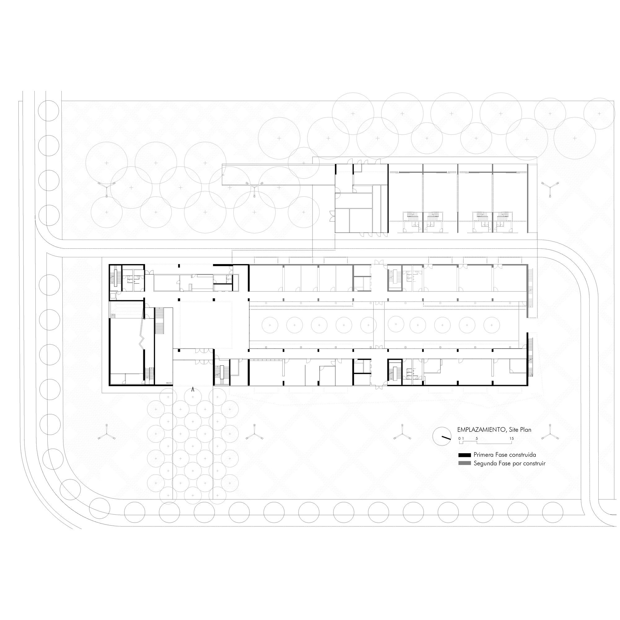
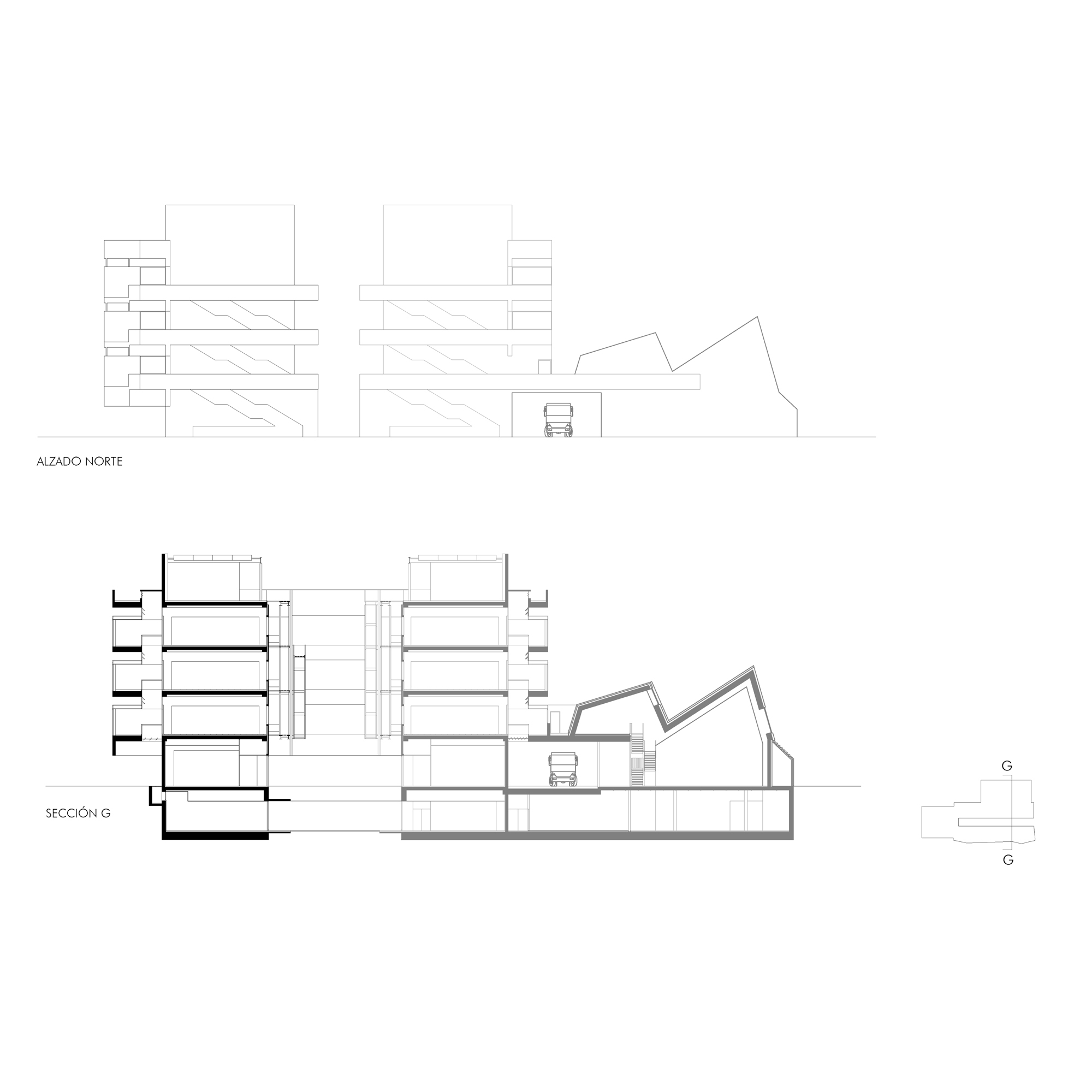
After ten years of hibernation – the project was drawn up between 2007 and 2009 – the University of Alicante has undertaken the construction of only a part of the Business Creation Centre, equivalent to half of the building. Therefore, a large part of the building remains to be built, in a second phase with no start date, which will allow its completion and correct understanding.
The Business Creation Centre is one of the first facilities to colonise the land, now vacant, of the University of Alicante Science Park, separated from the University Campus by the A7 motorway leading to Valencia. A green pedestrian corridor that crosses under the motorway will connect both university campuses.
On the other hand, the functional programme includes the presence of office-laboratory modules for scientific-technological companies, versatile and flexible spaces equipped with complex installations, with the possibility of being increased or replaced in the future. Therefore, the presence of these installations will be decisive in the formal and spatial organisation of the building.
The formal layout of the project is based on the joint consideration of both issues: a U-shaped building, where the connection between the two arms constitutes the main body that houses the common areas of the Centre, such as the lobby, the auditorium, the cafeteria-restaurant and the service rooms corresponding to the company laboratories. A slender piece, very closed but at the same time excavated in its volume, emerging from the zigzagging green corridor.


































2 Comments
Oops, he did it again…
Lo ha vuelto a hacer!