First Prize Winner of the Public Design Competition for the MNAC Refurbishment and Extension Project
The project for the refurbishment and extension of the National Museum of Contemporary Art (MNAC) in Lisbon aims to revitalize this cultural space in the historic Chiado district, an area of significant heritage value. The proposal integrates the historical buildings with a new volume that seeks to balance historical memory with contemporary architecture. This volume respects the historical value of the surroundings, creating visual and functional continuity with the city while incorporating contemporary design elements that establish it as a cultural and architectural landmark.
The structure of the new volume acts as a mediator between the historic buildings, connecting exhibition spaces and circulation areas and enhancing the visitor experience. The base of the building is clad in lioz stone, an iconic material in Lisbon, which lends it a respectful presence rooted in tradition. In the upper levels, rustic ceramic mosaic introduces a modern texture that enriches the building’s visual profile. This material approach reflects a harmony between past and present, allowing the building to be perceived as a natural extension of the Chiado district.
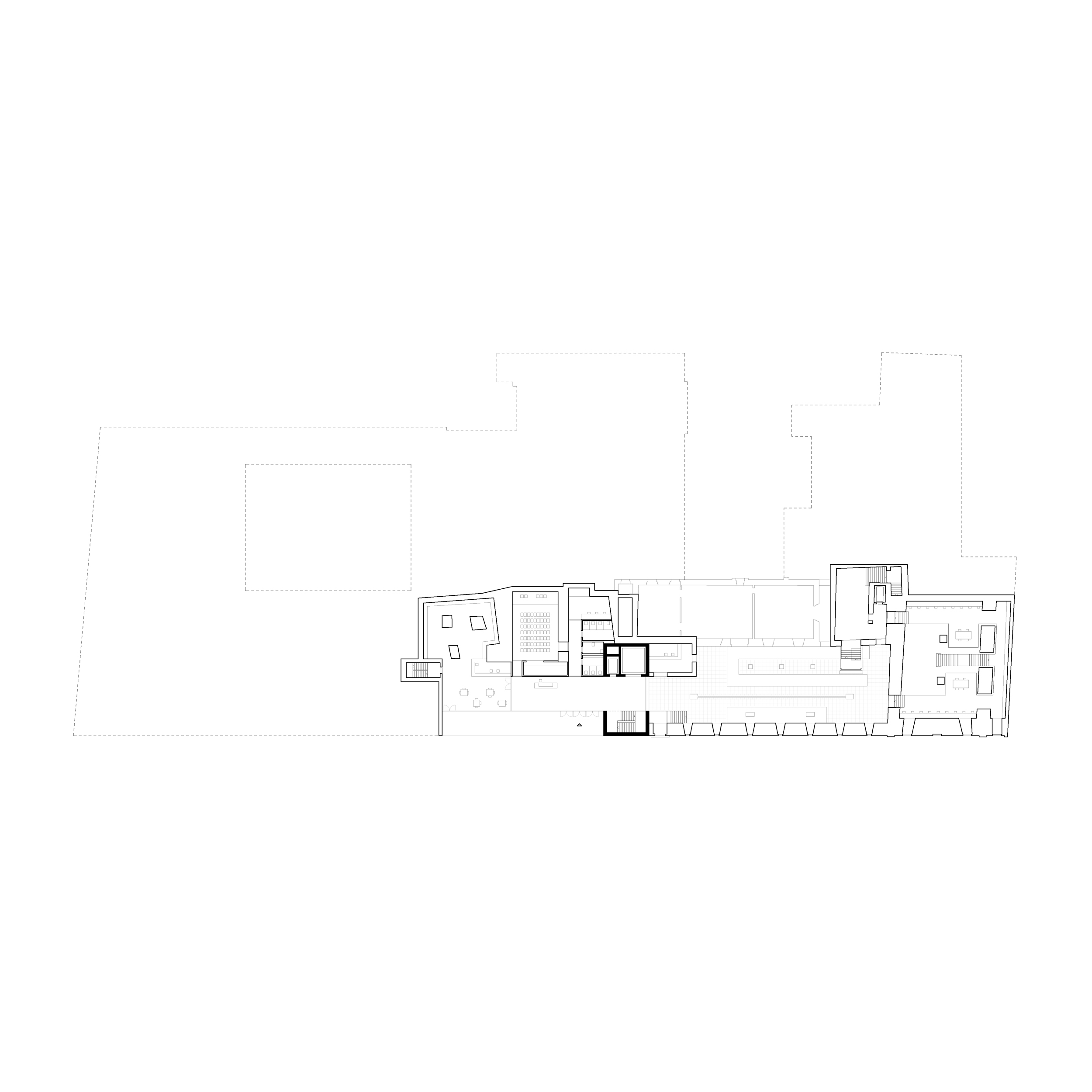
The design organizes the museum tour in a linear system, facilitating circulation and creating a fluid experience in each exhibition area. On the access level, the main lobby connects directly with the sculpture garden, an outdoor space that serves as a transition between the museum and urban life. This garden not only functions as a public area for the contemplation of open-air works but also reinforces MNAC’s role as an accessible cultural centre open to the community. The layout of this garden seeks to integrate the museum with the neighbourhood’s natural routes, reinforcing its connection with the surroundings.
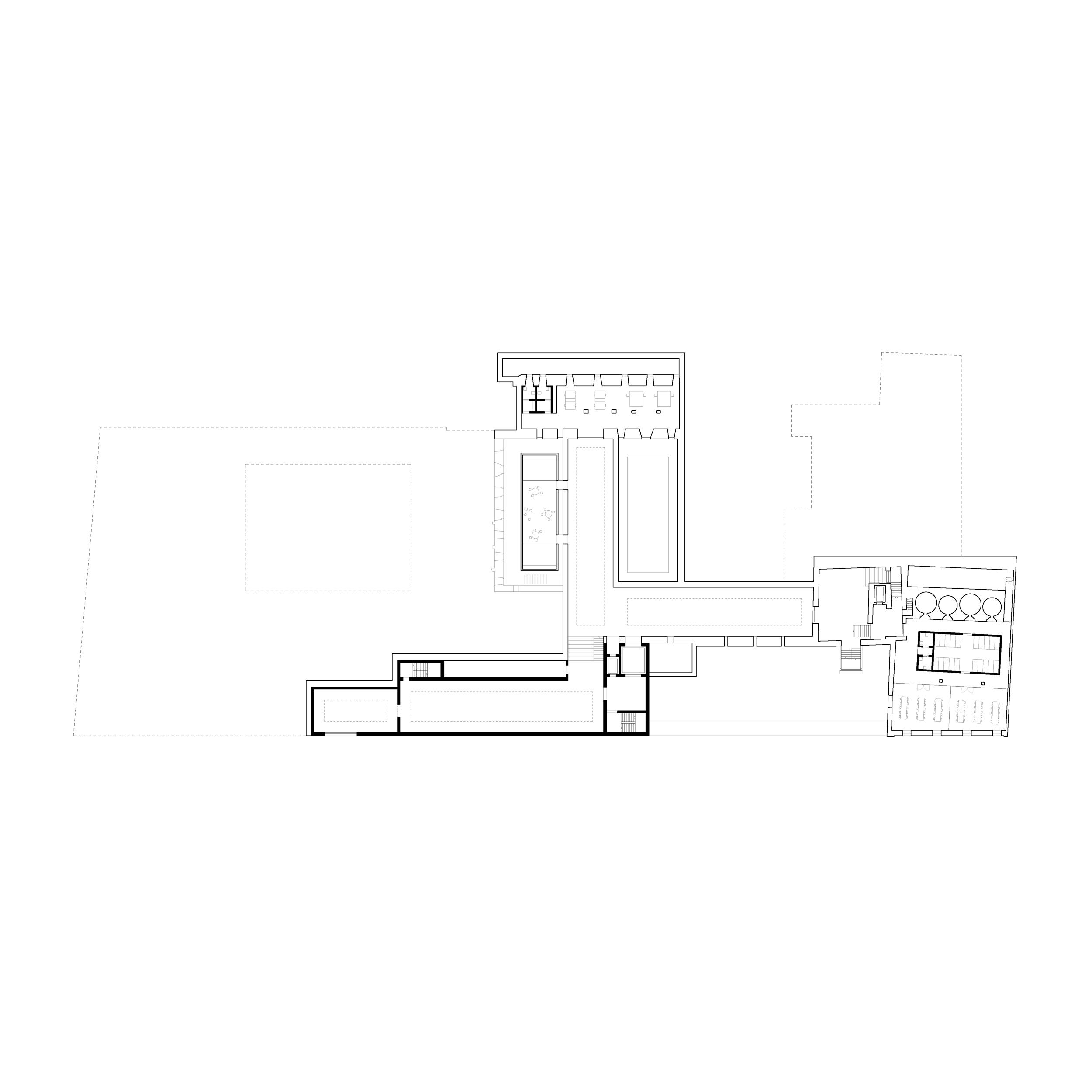
Functionally, the exhibition spaces are arranged to offer visitors a continuous, sequential visual narrative. The permanent exhibition resides on the lower level, while temporary exhibition rooms and the library are positioned on upper levels, establishing a spatial hierarchy that enriches the museographic experience. On the top level, the project includes a longitudinal terrace with panoramic views of Lisbon, providing a symbolic conclusion to the museum tour. This terrace also offers a place for reflection, reinforcing the relationship between the museum, the city, and the river.
To improve sustainability, the facade is designed to optimize natural light, reducing the need for artificial lighting in exhibition areas. Additionally, the building incorporates passive thermal control systems, leveraging the materials’ properties to regulate temperature, which helps reduce energy consumption.
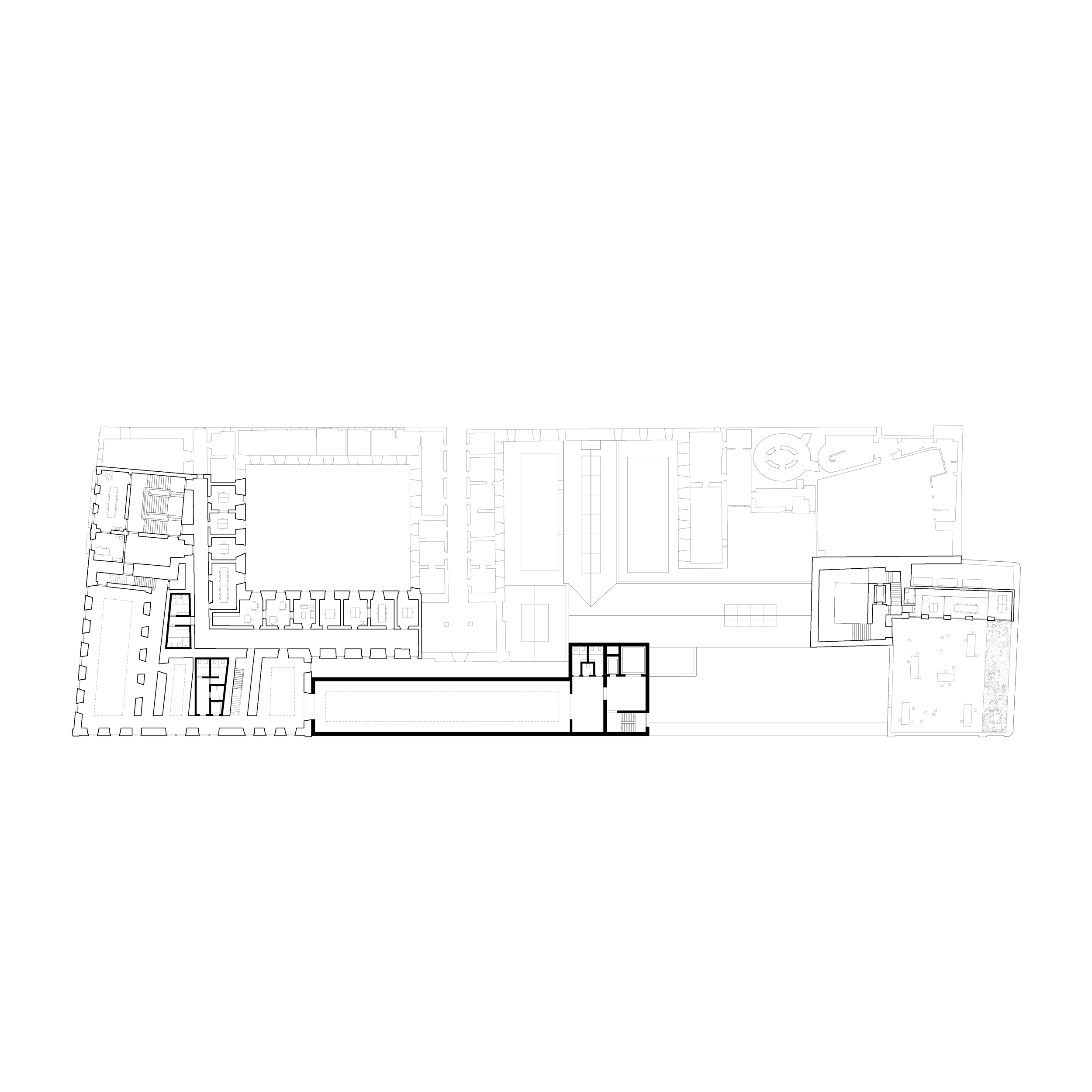
The underground floors accommodate technical and storage areas, ensuring efficient management of collections and operational services. This layout allows for a clear distinction between technical functions and public spaces, maintaining a practical distribution that facilitates staff operations without intruding on the visitor experience. On the ground level, the lobby includes a shop and café with direct access to the sculpture garden, integrating these amenities into the daily life of the neighbourhood and enabling them to function independently. Temporary exhibition rooms feature adjustable lighting and mobile elements, facilitating a flexible, versatile arrangement suited to various exhibition formats, encouraging an interactive and engaging experience.
MNAC is also committed to accessibility. All areas are adapted for people with reduced mobility, with ramps, elevators, and appropriate signage, ensuring an inclusive and accessible experience for all visitors. Additionally, the project incorporates a publicly visible restoration space where visitors can observe the conservation process, adding educational and transparent value to the visit.
The new MNAC design represents a commitment to sustainability and cultural integration in Chiado. This architectural approach allows the museum to remain faithful to its heritage legacy while adopting a vision of innovation and openness toward the future. With a structure that combines functionality, accessibility, and urban integration, MNAC becomes a space where contemporary art and architecture engage with the community and the urban context. This project ensures that MNAC will continue to evolve in harmony with the city, consolidating itself as a cultural landmark where art and architecture come together to enrich each visitor’s experience.
































