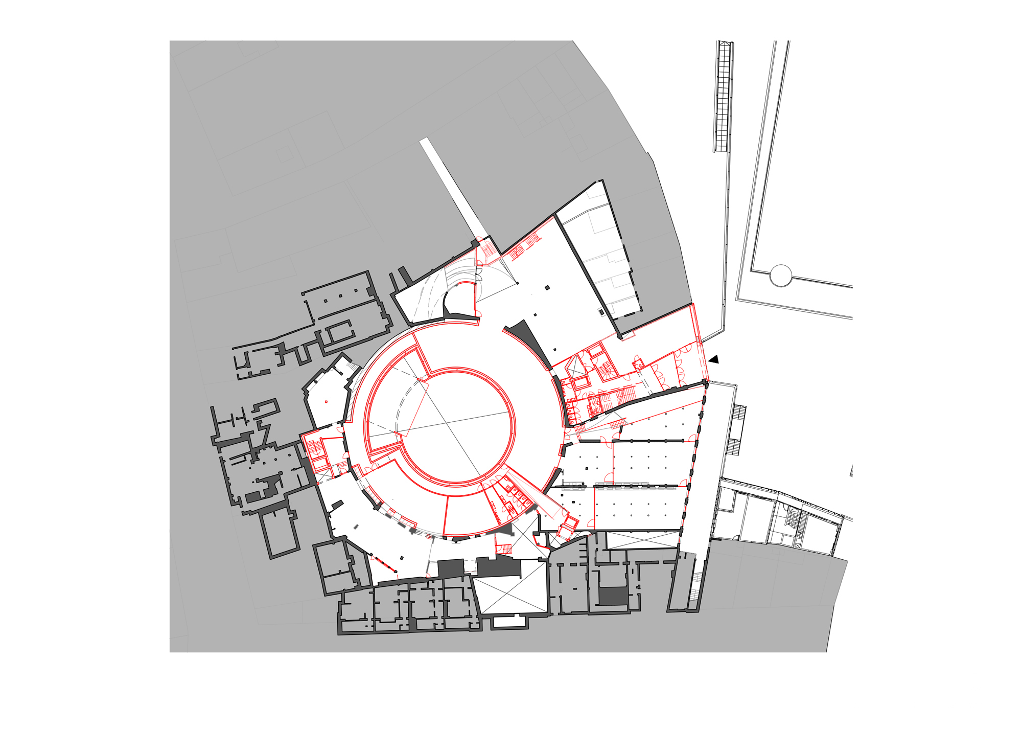
The official inauguration of the ERDF spaces marks the first step in the reopening of the old Wintercircus, later the Mahy garage and home to a unique collection of vintage motors. Built behind the street façades, this place has always been one of the best-kept secrets in Ghent. Until now, that is. Access, via 3 entrances, is soon to be given to the breathtaking space of the central square.
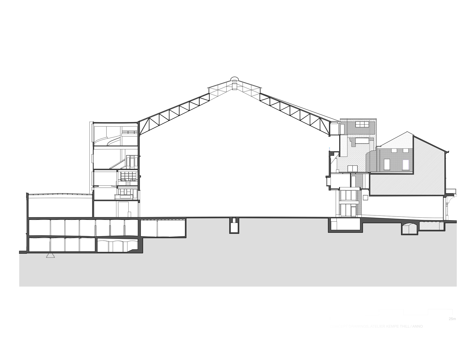
Architects BARO and SUMProject found that the Wintercircus project was all about probing the extent of the renovation works. That was because the unique character and authenticity of this building lay in its historical complexity and patina. There was a danger that it might be renovated ‘to death’. Through an in-depth ‘reading’ and study they sought to retain as much as possible of, or even reconstruct, the building’s visually distinctive and narrative elements. The restoration of the old equestrian stables, for example, was kept to a minimum, and the brick vaulting, iron beams and columns, and even the horses’ troughs were retained.
The new auditorium nestles in perfectly against one of the inclines. The volume of glass creates extra depth and vistas between the gradients and the center lane. The red shop floor, so typical of Mahy, set the theme for most of the floors above ground, which were finished in red polymer concrete. BARO-SUM also took its inspiration for the bench materials from the characterizing wall base and edging details, and the little elephant design on the profile is a playful nod to the circus past.









































