Located in the south of Chile, in a natural clearing on a long piece of land that ends in a lake. It is flanked by a row of trees on one side and a small stream on the other. The height of the trees and the dense low bushes disorientates anyone trying to look for any element of the distant context. Only the direction in which the river flows make it possible to locate the lake, behind a dense layer of vegetation.
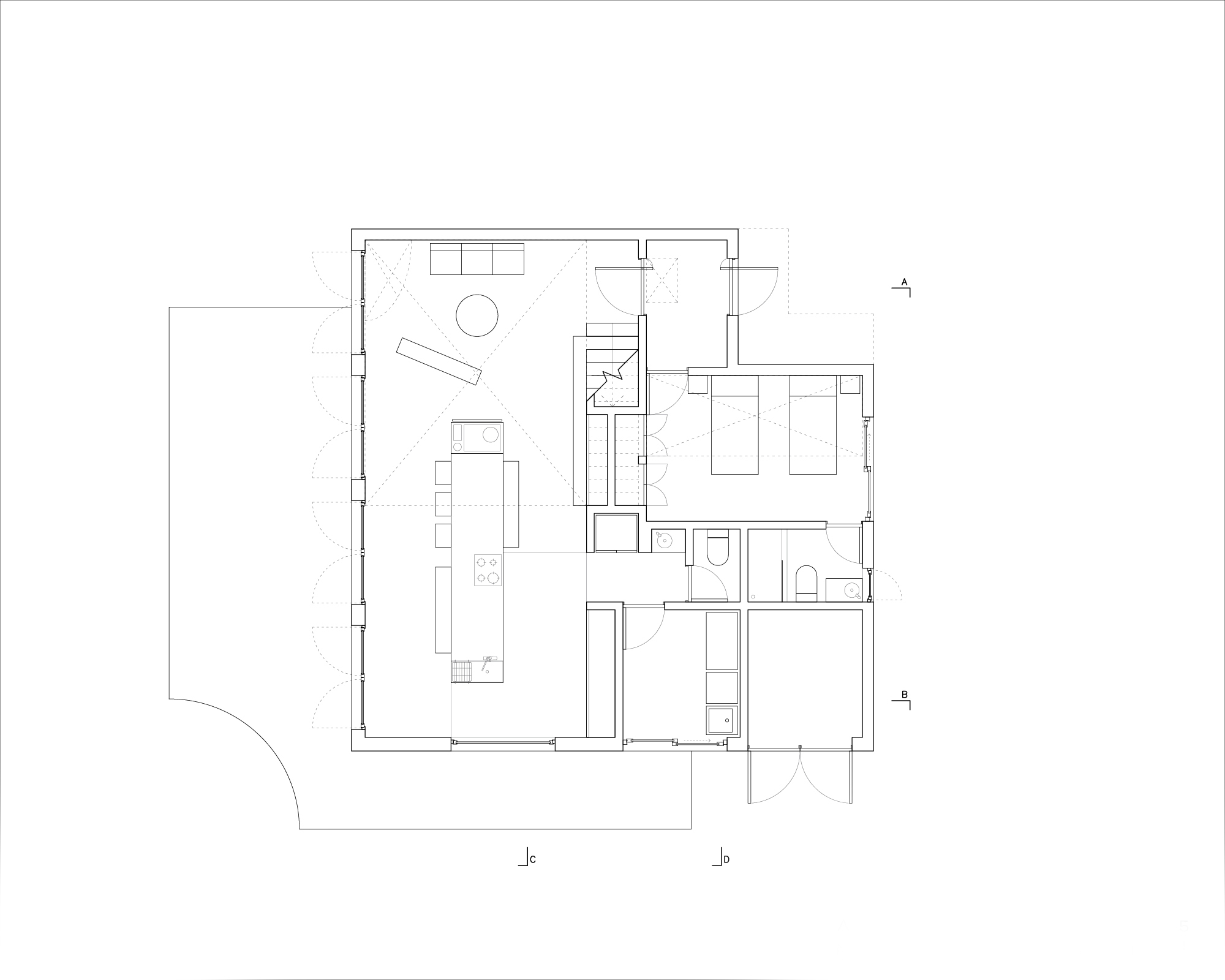
Humo house is an exercise on domestic dichotomies. Starting from a cube of 11m side with two of its faces split in half, the whole project revolves around the articulation of opposing pairs. The two larger facades open to distant views of the lake and to the site on ground floor; the two smaller ones are almost entirely blind, sheltering the entrance on the lower corner.
All the public areas share one half of the house on an open space of the full height; while intimates ones are distributed on three levels of the other half, just large enough to accommodate the owners and their friends visiting. Because the project celebrates the instance of sharing in the common areas, a long table made from a fallen larch trunk uses almost all the ground floor space, serving as dining table and kitchen unit. On one side of it the floor is lowered one step to give the necessary height for comfortable cooking while sharing the same surface of diners.
























































