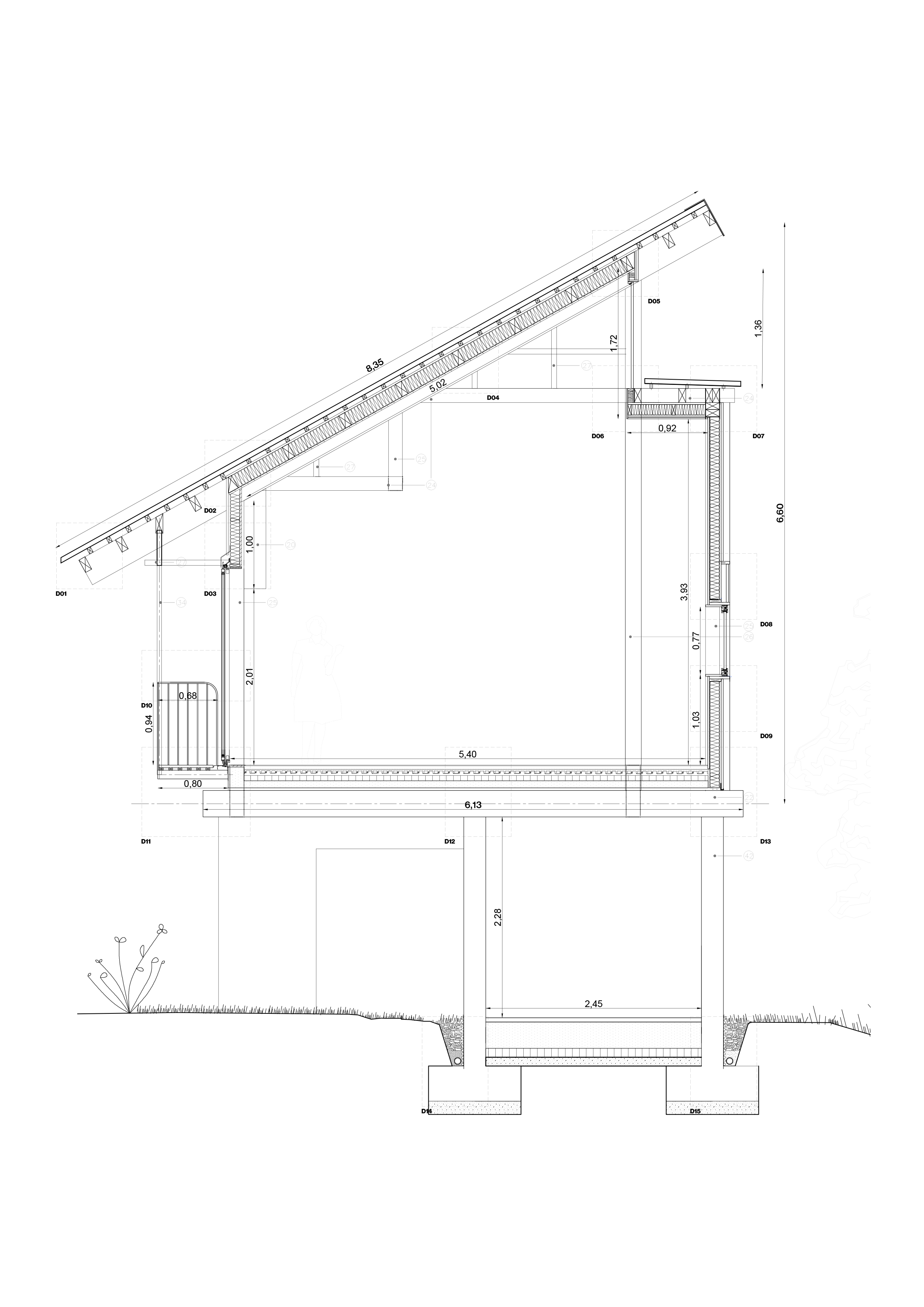
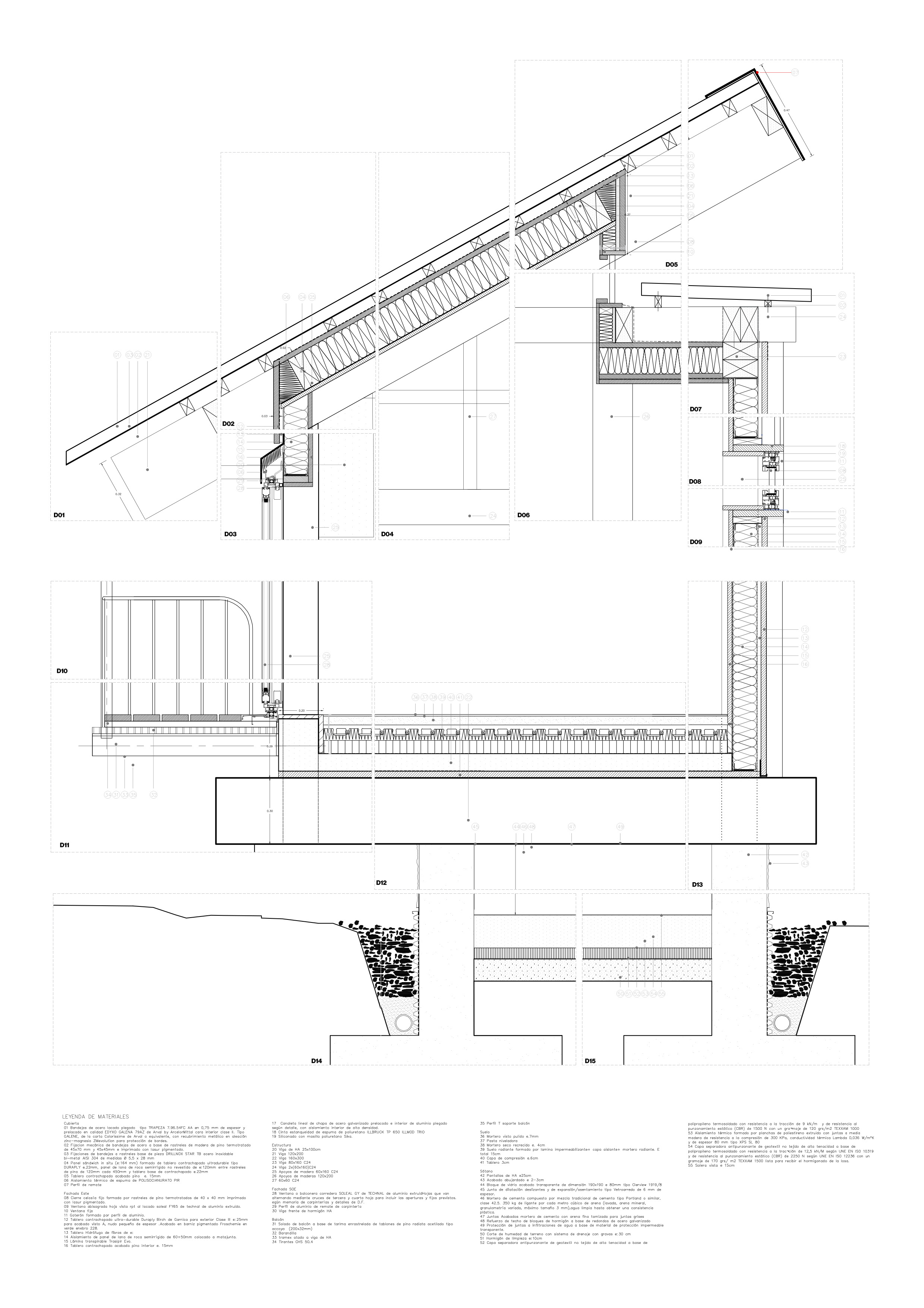
In a residential area of fenced plots whose greatest value is to be not yet occupied, this house is located, seeking its project responses in its topographic conditions. Narrow and long, neither excavated nor on rubble plinths, the house sits seeking to levitate, maintaining beneath it the pronounced natural slope of the land and meticulously placing its supports, seeking the rocky stratum.
From here there is little more to say. Although, supported by the fact that few will launch into reading this text, we will venture to
fly over the project. We believe that a large part of the architectural dispute of our days is in the fixed position in front of the construction, beyond formal capacities, in the choice and work with the materials. Without romanticizing, in the virtue of being, without mannerisms of the rigging or self-absorbed worlds of plasterboard. In being, with little and pride.

























