The site of our project is situated near the eastern edge of the city in quartiere Alessandrino, very close to an ancient roman aqueduct.
At the two ends of the street there are two usually busy roads, one at the bottom of the slope passing through the aqueduct and one at the other end of the road, while in between we found a more calm and residential situation.
After many attempts to arrange the two volumes, including one with a symmetric disposition, we chose to place one building parallel and closer to the street while the other is further behind and rotated in order to have one facade perpendicular to the street, creating tension inbetween and two different situations inside and outside the volumes.
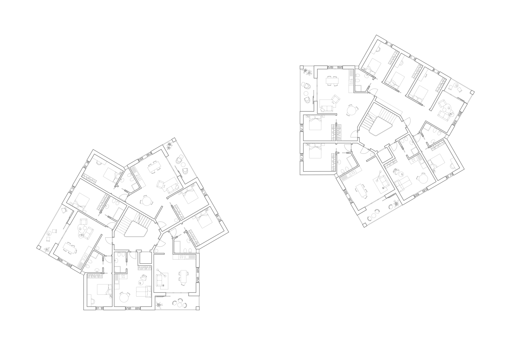
In the plan we started by arranging apartments around a central body of distribution. The result of their disposition decides the shape of the staircase in the center of the plan, which is then adjusted in order to have a more regular shape. Each apartment of the typological plan has different dimensions, two with two bedrooms of 80 and 85 m2, one with a room counting 55 m2 and the smaller one is a small studio of 34 m2, repeating on every floor. As for the materiality and composition of the facade, by looking at examples within the urban context we decided to use shutters for solar protection and two different warm coloured renders for the exterior of the buildings.





















