The house is located right on the corner of Abades Street in the Santa Cruz district, the former Jewish quarter of Seville. It is an 18th century house with two floors, to which a second floor was added in the first half of the last century. Its unique location on the street allows it to have two large façades (North and East) and a third (South) smaller one, to which the house will open for the first time. The proposal seeks to transform this single-family house, organized around a tiny central courtyard, into two apartments and the Plural art gallery. The project should integrate these uses, achieving total independence in the operation of both. The art gallery should be developed on the largest possible extension of the ground floor and the apartments should have independent access.
To this end, the project maintains the organization of the openings on the main façade unchanged, modifying dimensions and opening new ones on the East and South façades, providing the latter with a new access to the building: the access to the apartments and a second entrance to the art gallery. The new interior organization responds to the location of the small interior patio and the layout, orientation and character of the three façades. The main one, open to the long perspective of Abades Street; the East façade, which corresponds to the narrowing of the street, as a consequence of its double bend; and the South façade, previously very closed, which now opens to the main axis of the neighborhood.
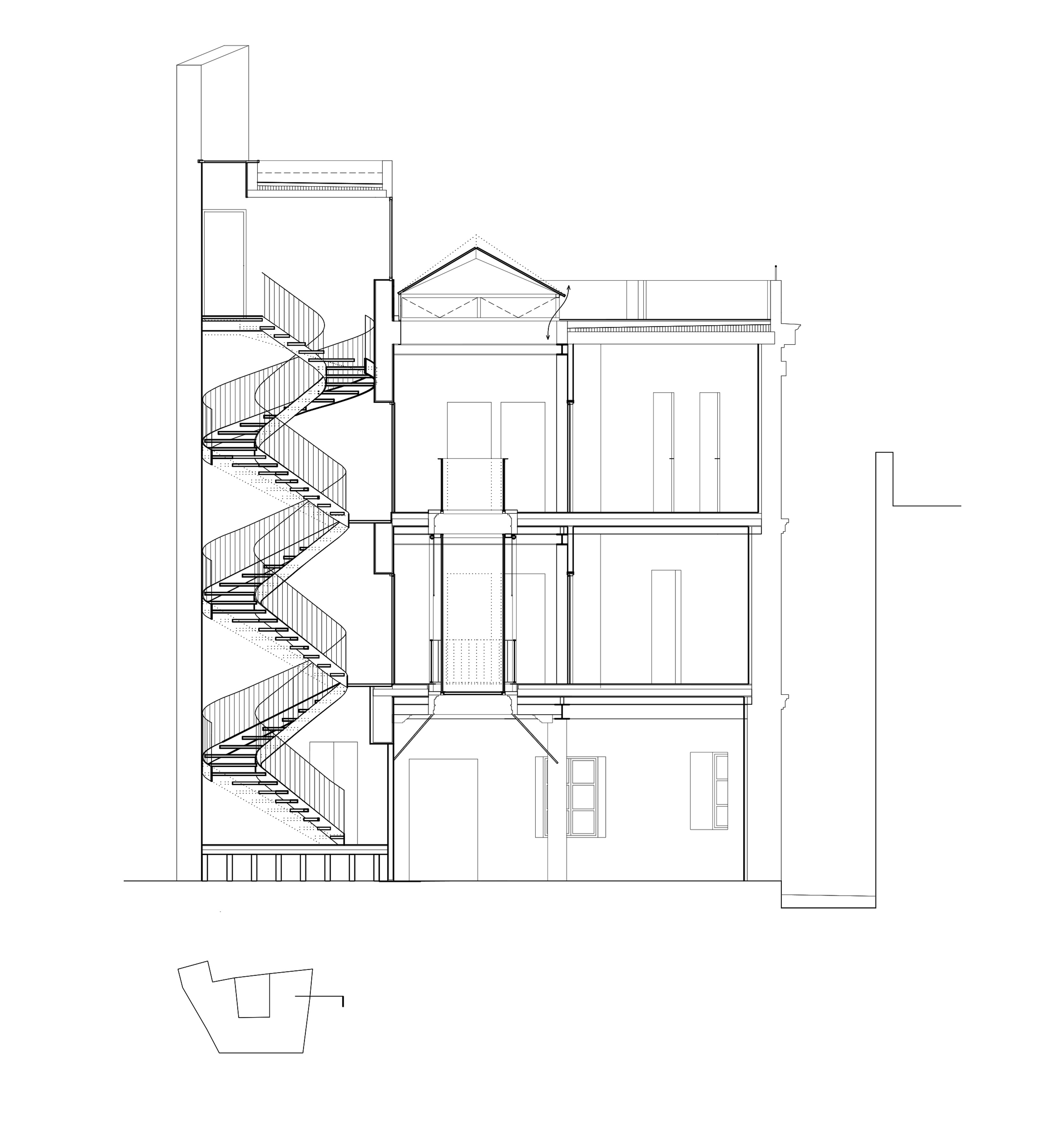
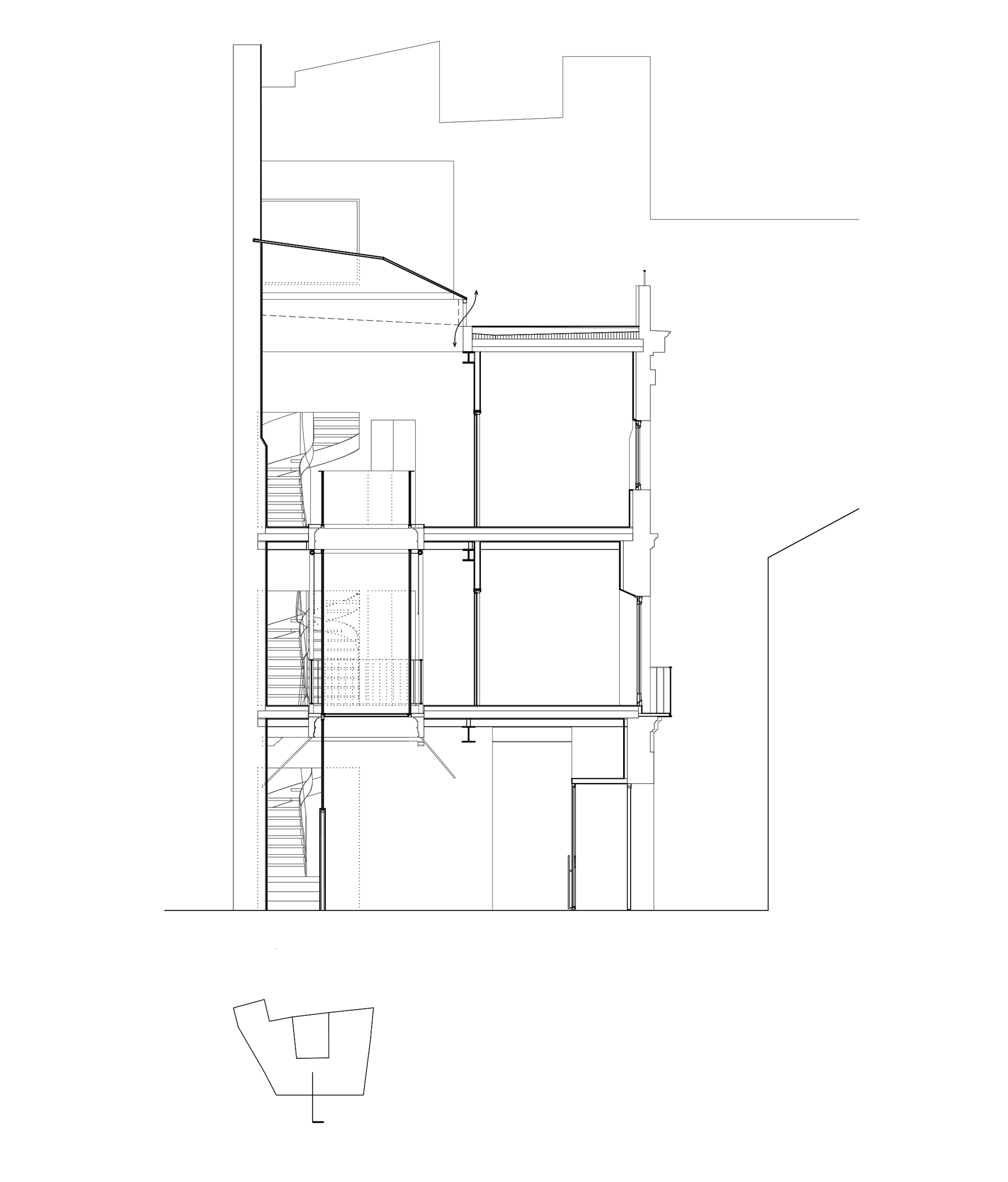
The vertical communication system—new staircase and elevator—is now located in the dark corner of the plot, between the dividing walls and the patio, so that the latter, now covered, becomes the vestibule space for the apartments. All the rooms will open directly onto the façades. The ground and first floors were built with a structure of wooden beams and joists, which have been maintained, supported by load-bearing walls, partially replaced on the ground floor by a slender metal structure in order to provide greater spaciousness to the art gallery. The second floor is built with a metal structure and the patio is covered with a glass roof, equipped with an opening device that guarantees the thermal regulation of the construction.





























