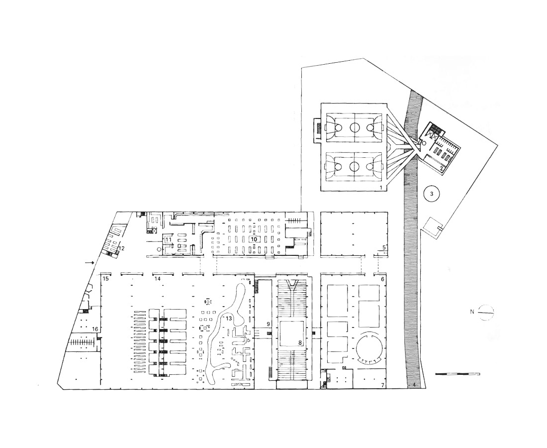
When Lina Bo Bardi visited the former metal barrel factory in the working-class district of Pompéia to build a sports and cultural centre, the space had already been spontaneously colonised by local people who spent their weekends among the warehouses of the industrial complex. The priority of the project was therefore to maintain and amplify this vitality without demolishing the existing buildings that had been designed by the Frenchman François Hennebique, one of the pioneers in the use of reinforced concrete.
Lina Bo Bardi’s determination to preserve the old factory reduced the space available for sports fields to a small corner of the plot, which also had a central corridor on which construction was not permitted due to an underground water gallery. The solution was radical. Two concrete towers house the stacked sports areas and the changing rooms respectively. Between them, eight prestressed concrete walkways span up to twenty-five metres above the non-buildable area. Completing the ensemble, a third cylindrical tower seventy metres high acts as a landmark visible from afar and invites citizens to be part of this “little joy in a sad city”.






































