As the client, a billboard company, took over an old metal workshop for its new headquarters, all the workflow and organisation had to be adapted. This project followed that process, and evolved with it. A ‘work in progress’ that comprised two phases, simultaneously and alternately developed: the revamp of the existing industrial warehouse and the construction of a new office space in a narrow vacant plot. As the process had to be integrated into the company’s daily activities, the entire intervention was slowly built and assembled inside the facilities. As such, slow tempo and constant prototyping were part of the design and building process and led to a very delicate construction, carefully undertaken by two experienced locksmiths.
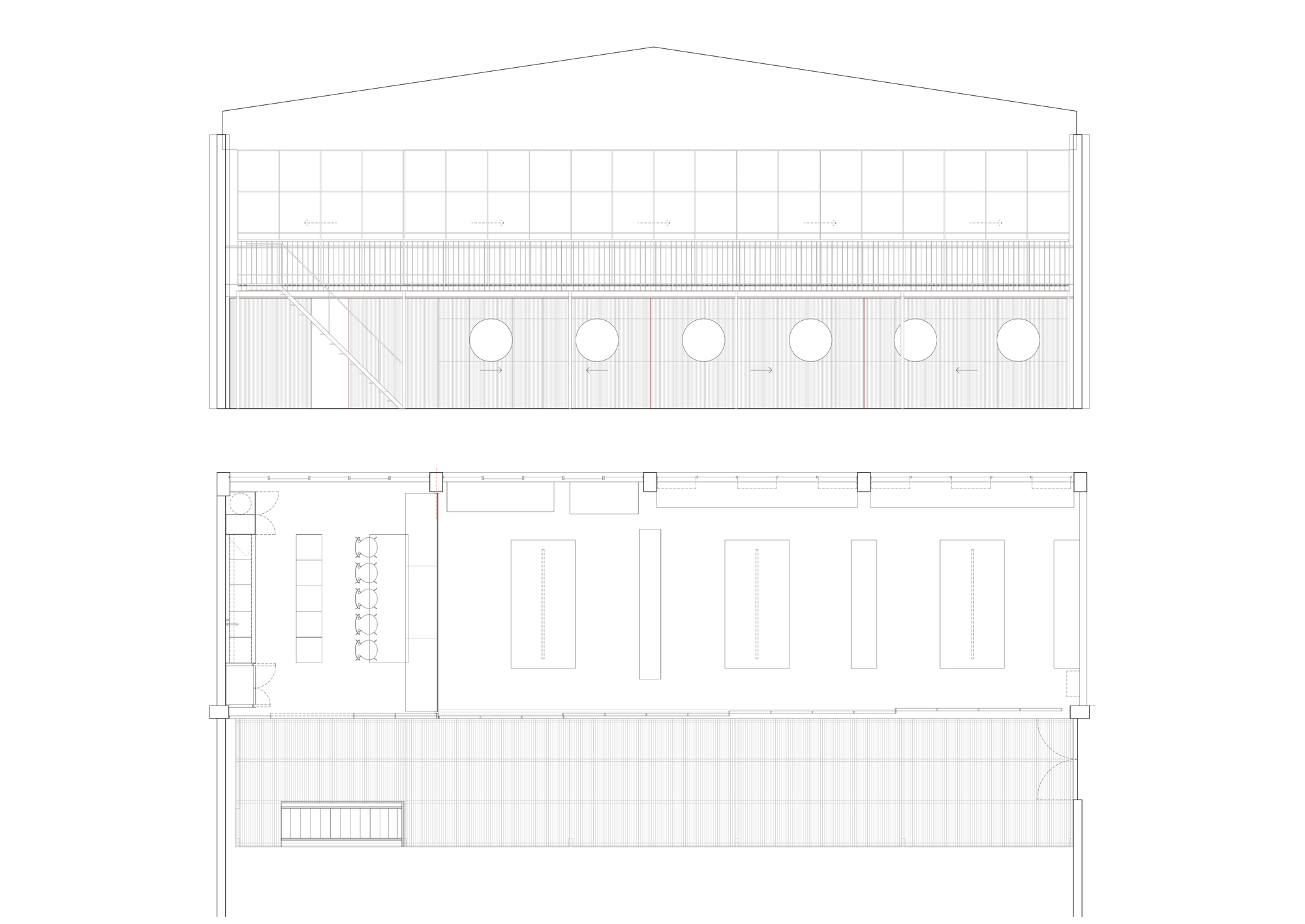
In the existing industrial warehouse, small adaptations were made to fit the building for its new use. In the area previously occupied by the factory offices, new changing rooms, screwing room, and laser cutting machine room were introduced on the ground floor, while a kitchen dining area and production room were added on the upper floor. A new metal gallery extends the existing area, and a retractable railing allows for loading and unloading with a forklift. Both this structure and the interior partitions, furniture, and the door system that creates a new interior façade were either produced on-site or reused
from existing parts.
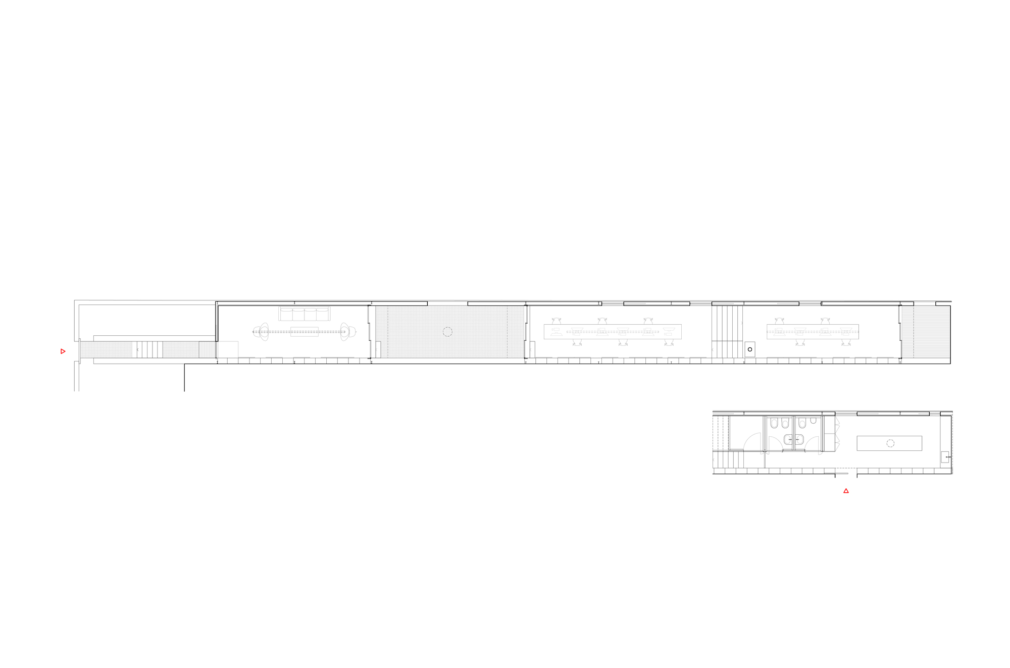
Regarding the new offices, the limitations of the available area led to a solution of an elongated building, adapted to the natural topography. Its total length, 3 x 50m, is interrupted by courtyards that introduce natural light and ventilation. These courtyards, along with the interior, form a single integrated space, functioning as outdoor interiors. Sliding windows were used to spatially connect the ensemble, and a continuous matte black finish was chosen for both to highlight the external light and the lushness of the vegetation.



























