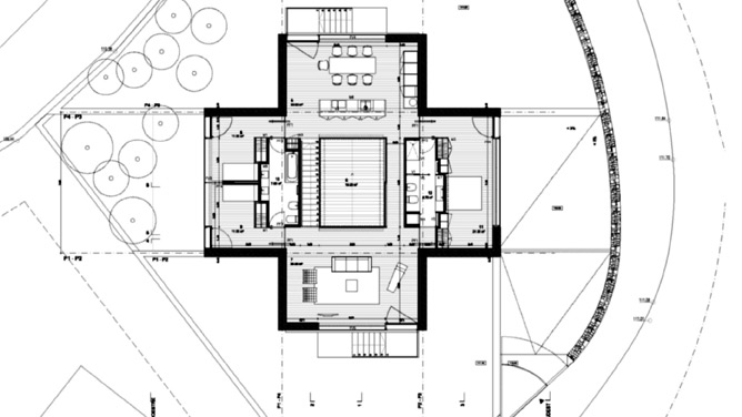
The house is situated on a corner plot with some good views over the distant landscape. In order to enjoy these views and avoid the neighboring buildings, the ideal configuration for the house was to create a compact form of cross which is placed at the center of gravity of the plot. The four wings are oriented in a way that ensures the selected views from inside the house. The whole volume is supported by four pillars and cantilevers out over the garden level at a hight of one meter. The pillars itself are based on the lower ground floor of 8x8m that contains access to housing, the porch, garage and laundry. On the top floor, the cross-shaped plan organizes the four wings around a central space, an exterior courtyard, that provides sunlight into the heart of the house. The four wings contain the different functions of the house with the living room area and the kitchen-dining area connected with each other through the transparency of the courtyard. Distributed on both sides of this main space there is the master bedroom with it’s own bathroom and the two children’s bedrooms also with a bathroom hidden by a concrete wall. The use of concrete in its natural colour and made with wood slats all over the house reveals visibly the powerfull construction that is needed to realise the idea in a coherent way.
Hidalgo Hartmann Casa Pocafarina
Source: Hidalgo HartmannLocation: Les Presses, Olot, Girona, SpainYear: 2011Originally posted: 14.02.2011
        
        Date:
            August 5, 2024
                Category:
            Archive
            



















5 Comments
Es un plaer poder llegir aquests comentaris sobre arquitectura.
Molt interessant aquest post!
He tingut la sort de ser alumna d'en Jordi Hidalgo a la universitat i sempre ens recomenaba mirar l'obra d'en Sverre Fehn… per aixo suposu que teniu tota la rao
Cert Alfonso !
No havia caigut en aquesta relació que ara veig claríssima. A veure si m'animo i penjo aquesta casa de Sverre Fehn. Demà si tinc temps escanejo les imatges del llibre.
La planta d’aquest projecte em recorda la de la vila a Norrkoping (Suecia) de l’arquitecte Sverre Fehn.
Totes dues tenen un programa molt similar i parteixen d’un esquema clar en forma de creu grega, però el plantejament de les obertures, la disposició dels serveis i l’entrada de la llum a la part central les fa radicalment diferentes.
La primera, aposta per obrir completament els extrems de la creu oferint una relació directa amb l’exterior. Disposa els serveis delimitant dos dels braços de la creu deixant els altres dos completament lliures i buida el centre amb un pati que introdueix la llum.
El resultat es llegeix desde l’exterior com un volum sòlid, suspés sobre el terreny hàbilment excavat.
La casa sueca tanca els extrems, que recullen les diferents estances , desmaterialtza les cantonades interiors de la creu per tal de produir la relació entre l’interior i l’exterior. Disposa els serveis al centre geomètric fent entrar la llum a través d’un llueranari.
El resultat no es llegeix des de l’exterior com un úníc volum sólid, sino com a quatre de dimensións menors que estableixen la seva relació al voltant del nucli.
Animo al vostres alumnes a fer un cop d’ull a aquest projecte, comparar-lo amb el dels arquitectes Hidalgo-Hartmann i veure que, a pesar de partir d’una geometría gairebé idèntica, la presa de decisions fonamentals en la concepció del projecte fa que l’espai resultant sigui absolutament diferent un de l’altre.