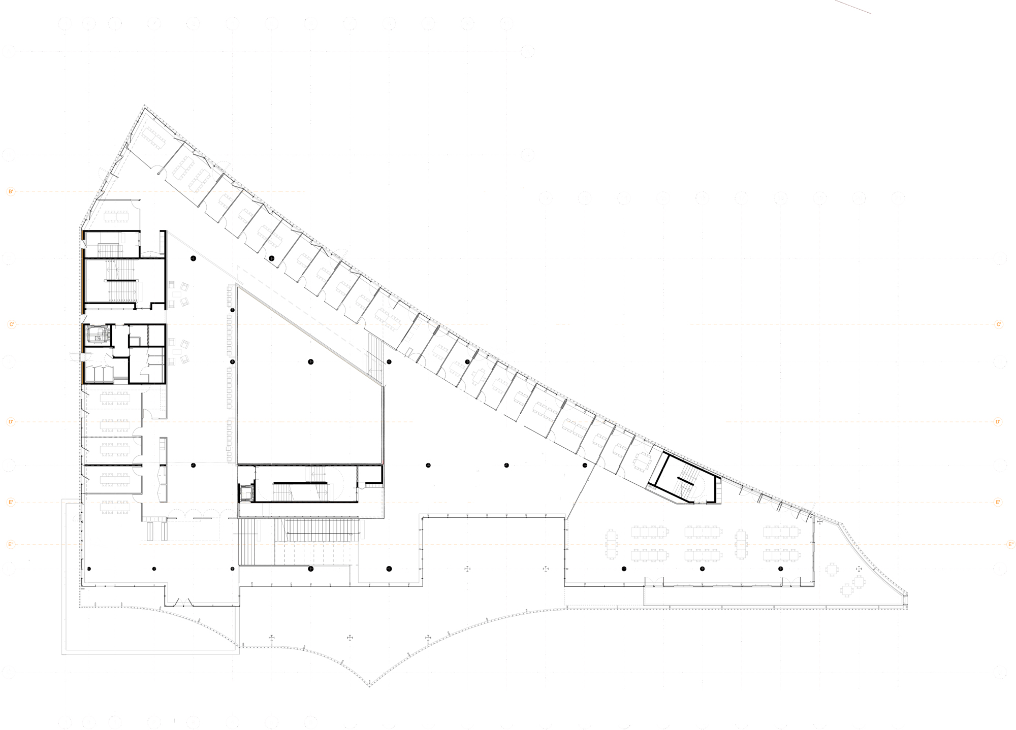
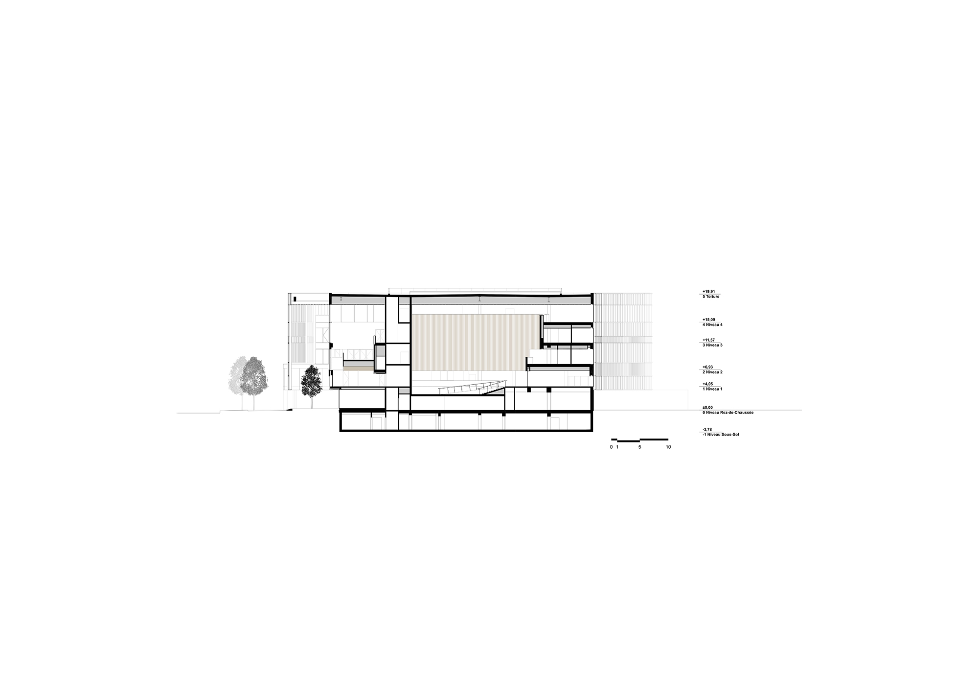
The “Lumen”, a learning center at the University of Paris Saclay, is based on a sober and expressive design due to its unifying program.The curved lines of the project soften the angular geometry of the site and accompany the arc traced by the aerial metro. The building is largely open to the outside and seeks lightness. The use of white metal columns, to filter the light, makes it possible to install an intermediate space between the public domain and the interior of the library. The steel structure is a tree structure protecting the interior by allowing a softened and changing light to filter through. The intermediate space serves as an extension of the park facing the building. The Lumen is formed of a single space rising in a spiral around an atrium. The space is fluid, it offers a slow drift among the collections and suggests the sharing of knowledge. The atmosphere of the building is bright, calm and serene, to convey the pleasure of reading and research. The building takes this flexibility into account, reducing the presence and size of the structures. The spaces are discovered in a succession of perspectives open from one place to another, where each function is easily identifiable. A belvedere terrace on the last level is the culmination of this interior journey.
MGM Morales de Gilles + Beaudouin Architectes Lumen de l’Université de Saclay
Architect: MGM Morales de GillesArchitect: Emmanuelle Beaudouin + Laurent BeaudouinPhotography: Schnepp RenouPhotography: Fernando GuerraLocation: Gife-Sur-Yvette, Île-de-France, FranceYear: 2023Awards: Premi FAD Internacional 2024
Date:
June 14, 2024




















































