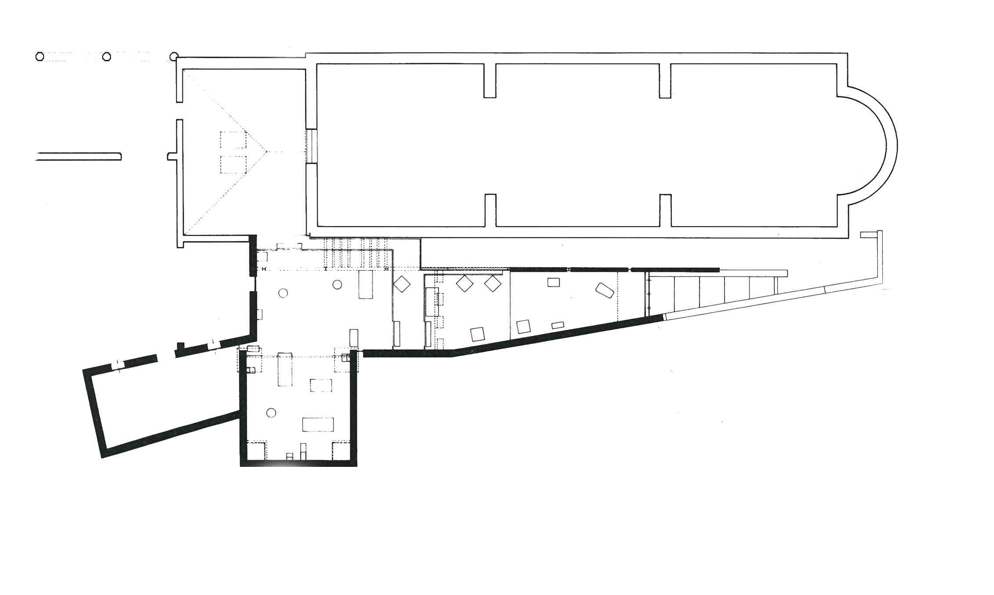
Con ocasión del bicentenario del nacimiento de Antonio Canova, la Superintendencia encarga a Scarpa la colocación de los moldes de yeso en una nueva construcción. El terreno, anexo al lado oeste de la basílica de Segusini, es de modestas proporciones, de forma vagamente trapezoidal y que va decreciendo en dirección al valle. La intuición es inmediata, extraordinaria: Scarpa recorre el itinerario neoclásico, regenerando el lenguaje aúlico con una vis genuina y profanadora.
Impone el blanco total, redistribuye cada estatua, dejando una huella en el espacio; la luz, que penetra por arriba, y la calibrada ironía del juego de las sombras hacen incluso elocuente la inercia gélida de la galería preexistente. Como verdadero artista-mago, manipula los rayos solares animando a una muchedumbre de «personajes de piedra», desconcertando e involucrando después emotivamente al espectador que «se da cuenta de que vive con aquellas criaturas en la luz vertical»


































