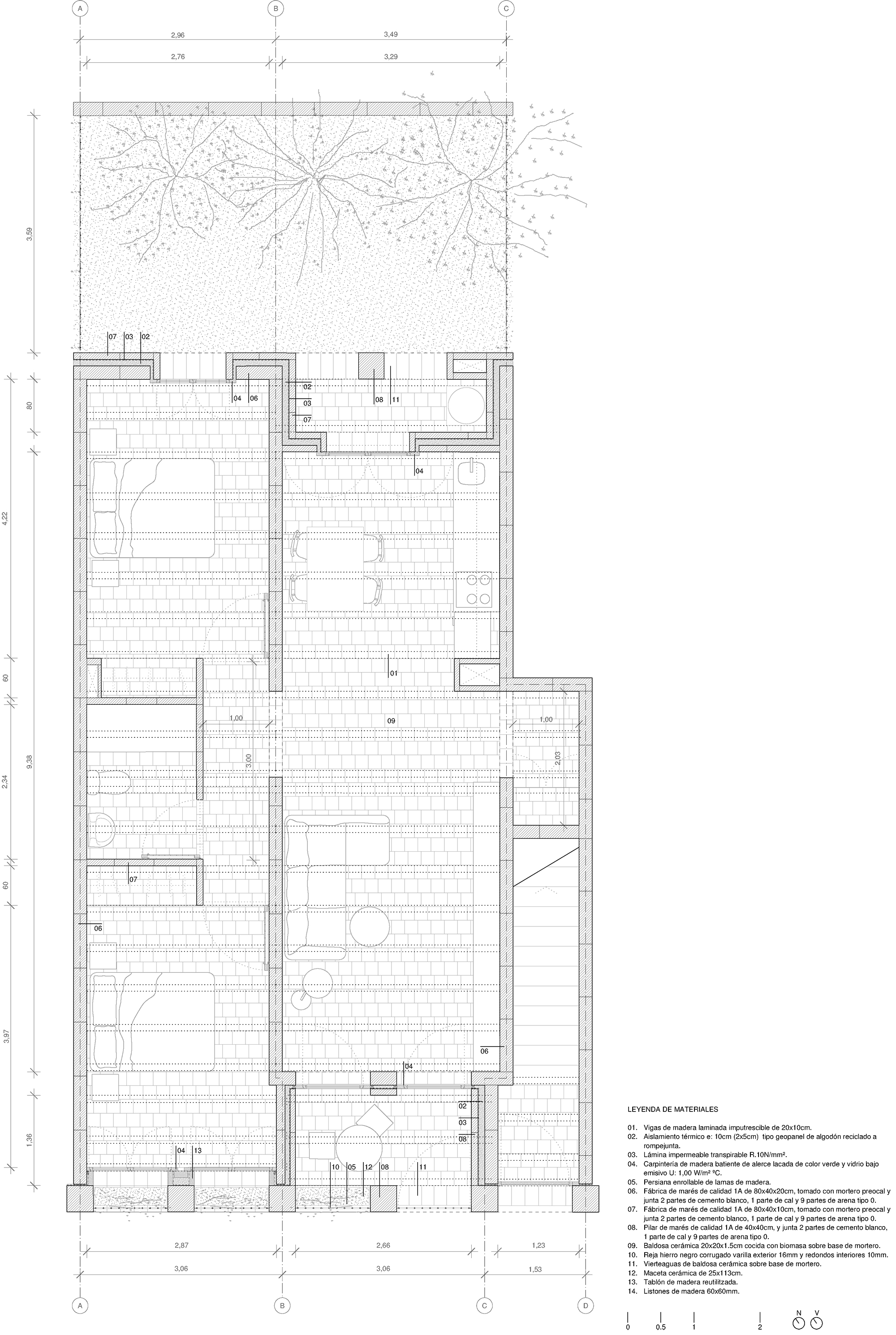
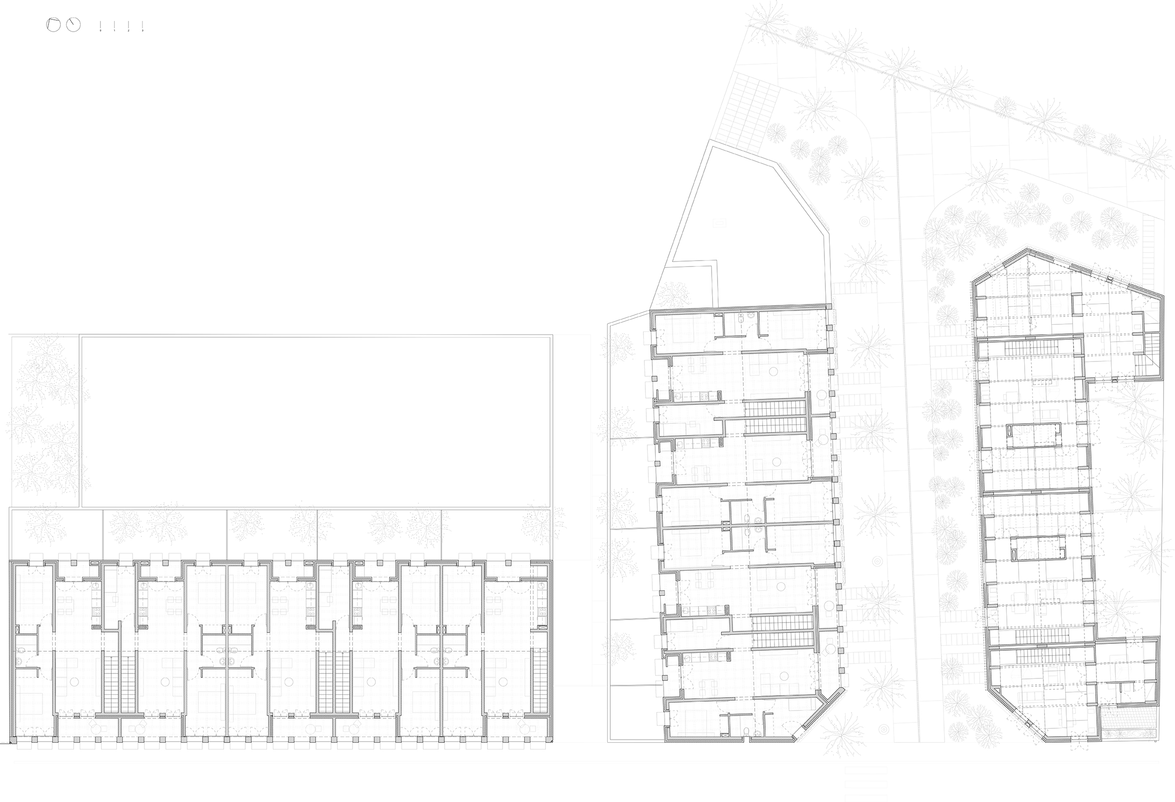
The building is divided into two volumes forming an L, one oriented E-W, and the other N-S. The typologies, with two and three bedrooms, are resolved with double orientation dwellings and the structure of parallel 20cm thick load-bearing walls of marés sandstone that provide inertia to passively cool in summer, as support for the sea breezes cross ventilation (Embat/Terral).
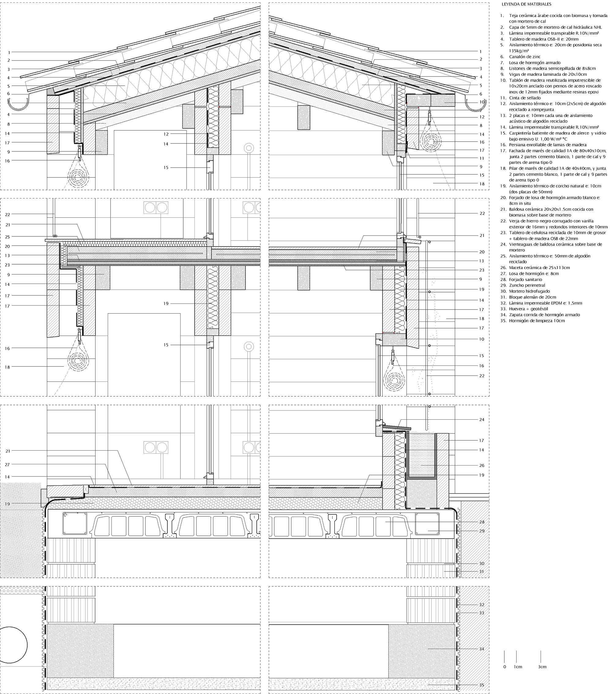
Unlike the building of phase 1, whose buildable depth is 8m, here the depth is 13.5m, and the floors are resolved by wooden beams supported on the walls between houses to free the facades from the structural function and provide the maximum illumination surface. The windows are protected behind a colonnade made up of 40x40cm stone pillars that form a loggia that houses roller blinds, fences and vines to protect from the sun and provide privacy to the porches and terraces.
The sloping roof solution is based on the Menorcan system, which derives from the Catalan imported in the 13th century, since the Majorcan loads the slabs on the façade walls.
The global solution for both buildings and public space aims to encourage residents to go out ‘a la fresca’ on summer nights, with chairs and ‘rockers’, and is an example for recovering the model of the Mediterranean city, dense, compact, Low-rise and equipped with public spaces that reduce the ‘heat island’ effect.






























