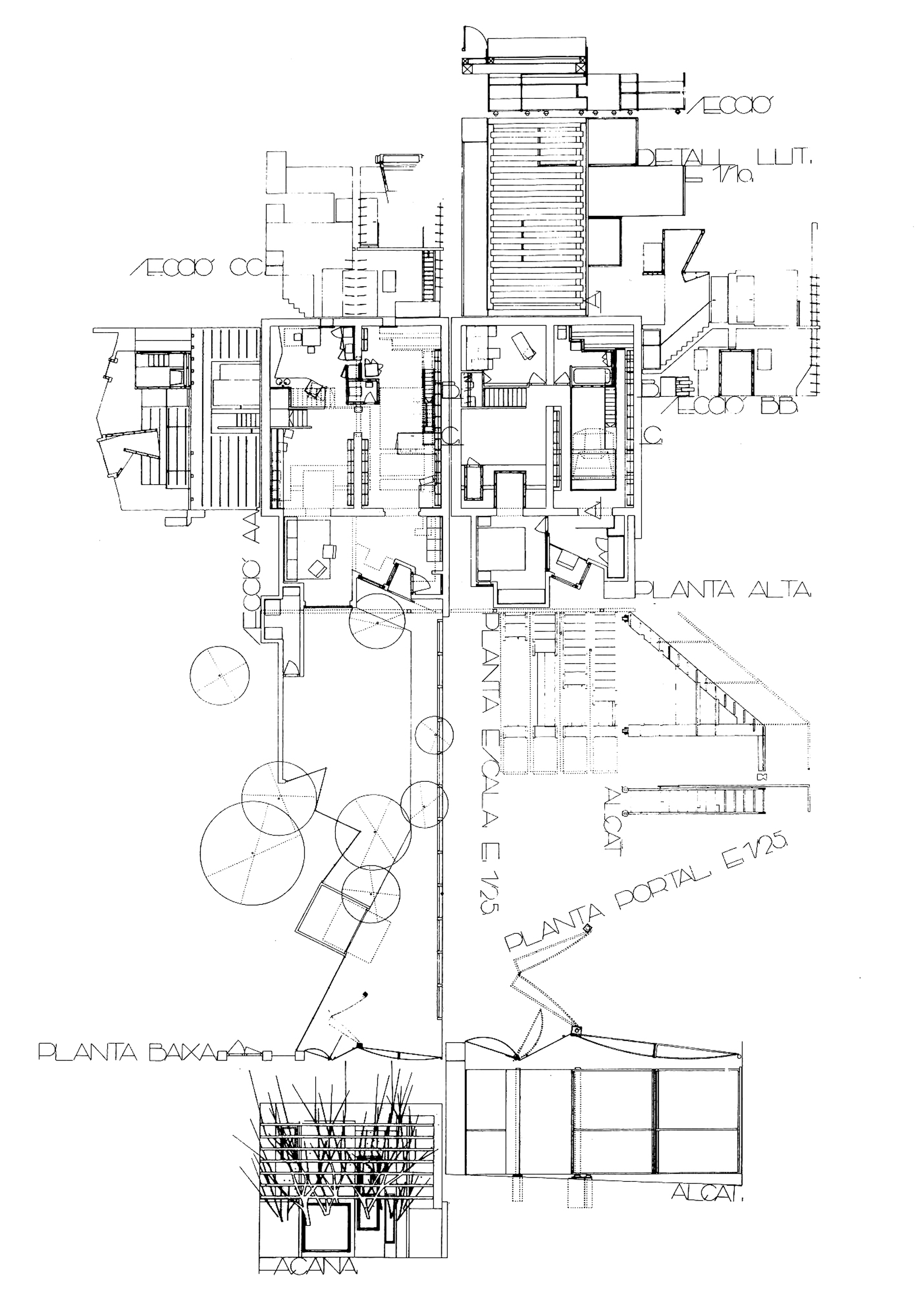
Este proyecto es el resultado de unir dos edificaciones preexistentes en el barrio barcelonés de la Clota. El objeto de la obra era la restauración y ampliación de las dos casas, ubicadas entre medianeras y de dos plantas cada una, para convertirlas en un única vivienda con un estudio biblioteca como pieza significativa. La intervención conservó la estructura general de uno de los inmuebles, incluso la escalera de acceso al piso superior, aunque se vació el entrevigado de algunas estancias. En esta zona se desarrolló el programa doméstico: en la planta baja, la sala de estar, el comedor y la cocina al fondo; y arriba, tres dormitorios.
La actuación en la otra vivienda fue más drástica: se vaciaron parcialmente el forjado y la cubierta del centro de la planta y se construyeron una pasarela y un lucernario. Este elemento, suspendido del techo, permite la entrada de abundante luz cenital que inunda el interior. La pintura blanca y un pavimento a base de recortes de distintas maderas refuerzan esta luminosidad. Para conservar el espíritu original de la edificación, se dejaron parcialmente vistos los techos, las paredes, las vigas y algunos fragmentos de distintas capas de pintura superpuestas a lo largo del tiempo.























