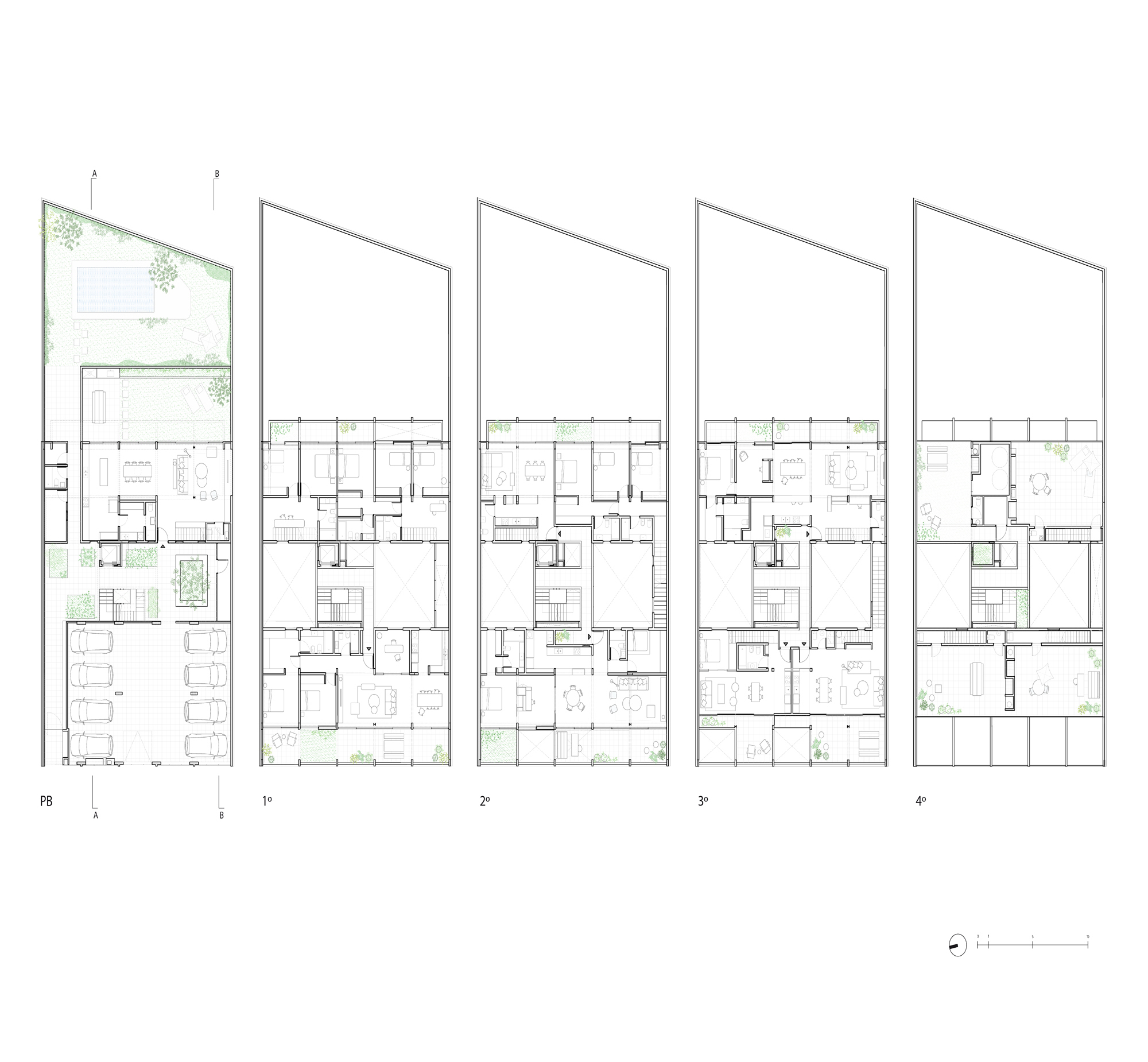
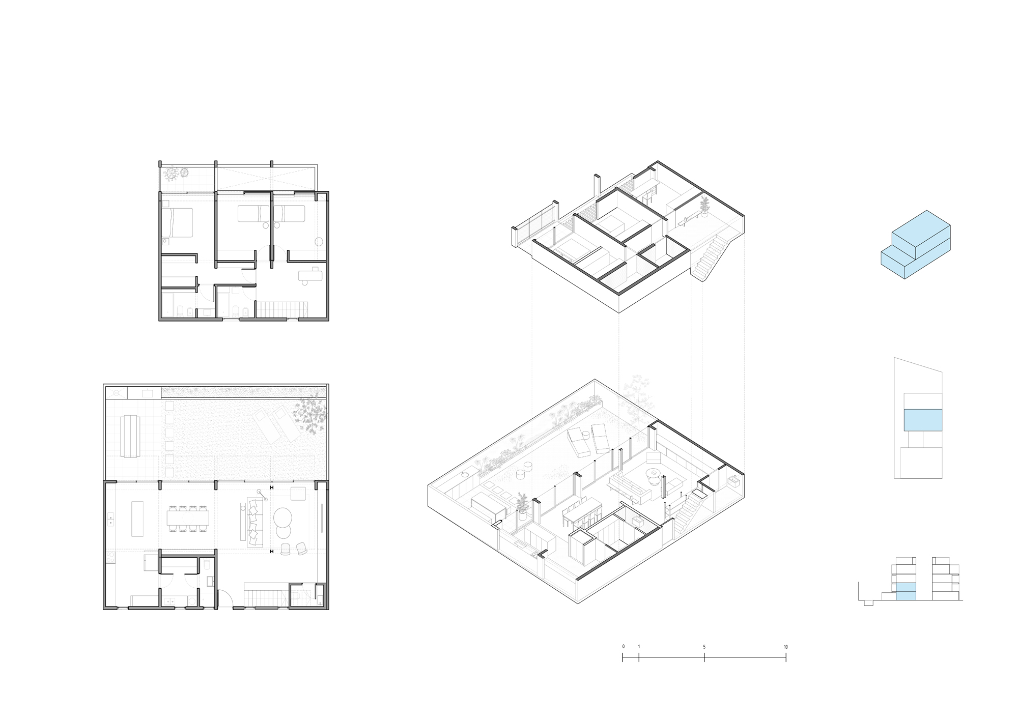
The project is located on an atypical block within the urban fabric of Colegiales on a double frontage plot. The consolidation of the municipal line reveals the five structural modules in the form of a reticulated concrete grid that runs through and shapes the entire project. Each of these squares exposed to the front respond to different treatments of skins, voids and flooring in relation to what happens in the interior space of the dwellings. These spaces transcend the idea of a balcony to act as exterior rooms. This not only generates an extension of the limits of the dwelling but also acts as a bellows between the everyday domestic life of the units and the urban speed. This façade thickness is also perforated to generate some openings that allow for a greater proportion of cubic metres of air and greater solar incidence in the spaces.
Each block, in its interior, is in turn divided into two longitudinal strips that organise the dwelling and are materialised with different finishes as appropriate. On the one hand, those bordering the internal courtyards contain the more specific spaces such as kitchens, bathrooms and storage areas. The strips that face the front and the spaces at the back are spaces with a greater degree of indeterminacy that allow for other uses such as living rooms, dining rooms, bedrooms and desks. Seven typologies are thus configured, based on the wishes and needs of their future inhabitants. Special attention was given to restore the existing garden and swimming pool, and new native species were planted to encourage greater biodiversity. On the other hand, an area of the rooftop has been set aside to create a shared green terrace space with a barbecue. The scale of the building allows an interesting appropriation of these spaces so that all those who live there have access to areas that their homes do not offer.






















































