Marco Zanuso proyecta y construye las Casas de vacaciones en Arzachena, Cerdeña, entre 1962 y 1964 en unas parcelas que lindan con el mar, a escasos 20 metros del agua.
En estos alojamientos de verano para dos familias milanesas en la costa, que ni siquiera tienen luz eléctrica, Nazuso adopta una tipología basada en el estilo de refugio de ovejas sardo, en el que el vallado marca las dimensiones del recinto y su planta la forma generadora.
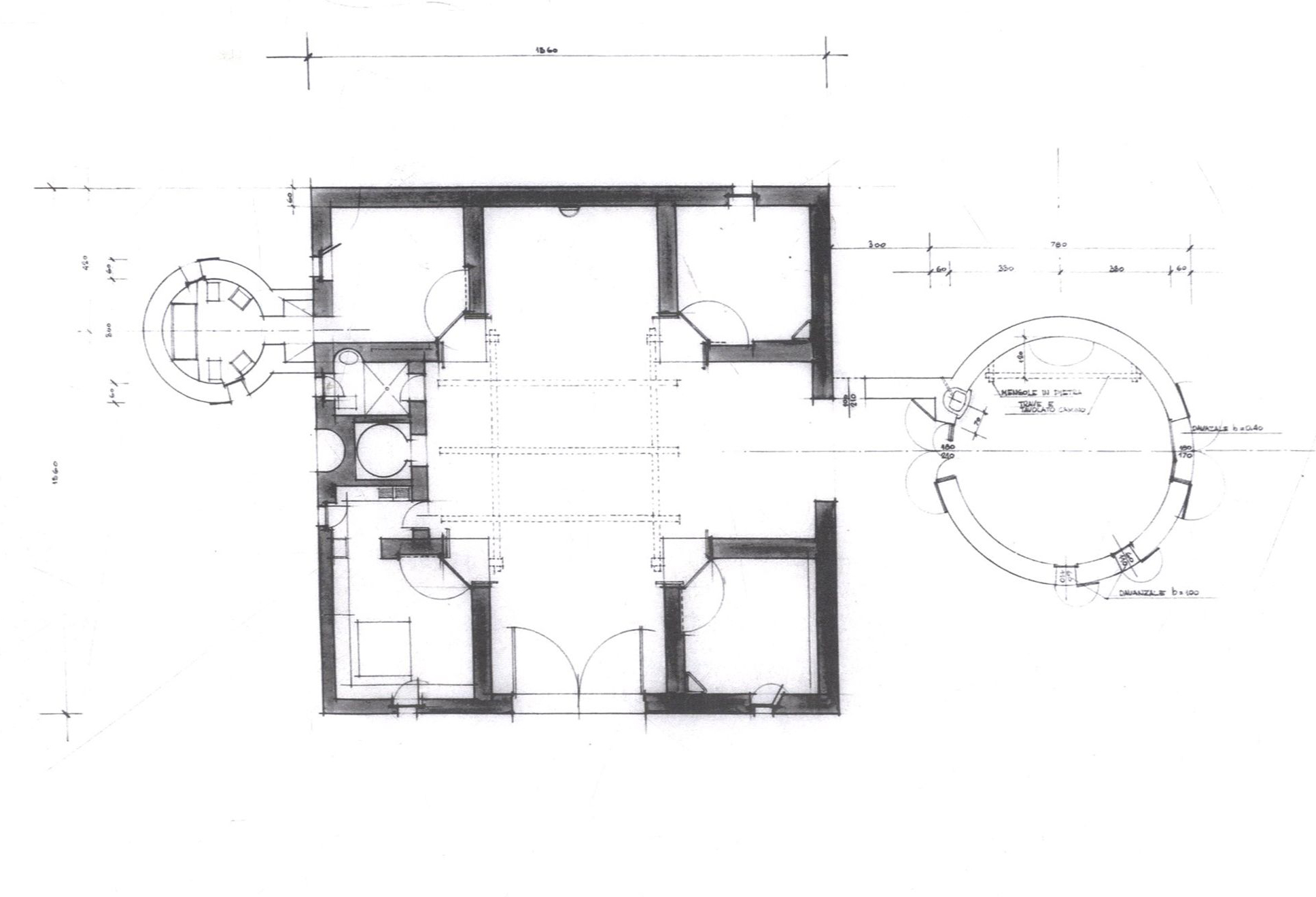
Vivir aquí en el espíritu del lugar significa, sobre todo, refugiarse durante unas pocas horas del día y el resto al aire libre o protegido del viento que late con insistencia. Tomando como base el refugio y la protección, se elaboran estas dos pequeñas fortalezas primigenias, nada más que dos recintos de 15 x 15 m de lado dotadas con una cubierta y construidas con en el único material omnipresente: el granito.
El granito de los muros, de tres tipos, gris claro, amarillo y rosa quemado, se extiende en las casas en la única forma posible de construcción de tipo tradicional, con bloques erráticos unidos por mortero de cal y cemento a doble cara vista, con bloques en tamaños que varían entre 25 y 40 cm sobre los que se extienden las losas y aleros de hormigón armado.
Dentro del recinto, la planta se elabora en una cuadrícula de 9 cuadrados ideales, de los cuales 4 están ocupados por completo (tres dormitorios más un área de cocina-comedor) y 5 por espacios vacíos en una configuración de cruz griega. ‘lleno’ debido a la presencia permanente de una mesa al aire libre y otra parcialmente ocupada por servicios (baño y chimenea).
La luz, la sombra, la ventilación se alternan con el interior del recinto en un elemental y antropológicamente atento juego entre abierto y cerrado.




















10 Comments
Gracias por un hermoso artículo sobre un edificio magnífico. ¿Sabes quién fue el fotógrafo de las fotos originales en blanco y negro y dónde se publicó por primera vez? Me gustaría encontrar el artículo para algunas investigaciones con las que estoy ocupado. ¡Gracias!
Descomunal, este proyecto y también el de Aris Konstantinidis que aparece en esta sección de clásicos. Apasionantes
Una pena que no se puedan descargar las imágenes. Gracias Sep por la información de la casa en Lotus. Esta semana me la escaneo.
Ahí tienes los enlaces únicos para que te descargues las imágenes:
https://hicarquitectura.com/wp-content/uploads/2013/04/006-640×475.jpg
https://hicarquitectura.com/wp-content/uploads/2013/04/007-640×484.jpg
https://hicarquitectura.com/wp-content/uploads/2013/04/008-640×439.jpg
https://hicarquitectura.com/wp-content/uploads/2013/04/009.jpg
https://hicarquitectura.com/wp-content/uploads/2013/04/010-640×439.jpg
https://hicarquitectura.com/wp-content/uploads/2013/04/0111-640×440.jpg
https://hicarquitectura.com/wp-content/uploads/2013/04/002-640×477.jpg
https://hicarquitectura.com/wp-content/uploads/2013/04/005-640×640.jpg
No entiendo tanto recelo al botón derecho, máxime con unas imágenes que provienen del escaneado de algún libro y sobre las cuales no creo que HIC pueda reclamar autorías.
T85, veras en Lotus, que la casa tiene unas ampliaciones. Descubrí la casa, hace años en este numero 119.
Os habeis fijado en el detalle de las puertas de las habitaciones? El encaje en la piedra de la puerta batiente, el acceso por la esquina, los porticones…
Tropecé con este proyecto revisando un libro de Marco Zanuso y me pareció espléndido y muy acorde con algunos de los planteamientos de la exposición VOGADORS en la Bienal de Venecia.
Todo gira alrededor de un vacío, que es el protagonista de todo el proyecto.
Me interesa también la utilización de la geometría como eje de todo el trabajo de diseño.
Un trabajo simple y a la vez emocionante.
Jordi, tambien hay mas informacion en Lotus 119 (pag. 90-105), para la gente que quiera indagar mas en este magnifico proyecto, lleno de impresionantes detalles de arquitectura.
Emocionante!
Una casa para redibujarla a mano alzada sobre papel sulfurizado mateado, donde ir redescubriendo con el cerebro cada uno de los lugares que contiene este contenedor hermetico de piedra granitica de 15 x 15 metros, con sus puertas y accesos tan bien elegidos.