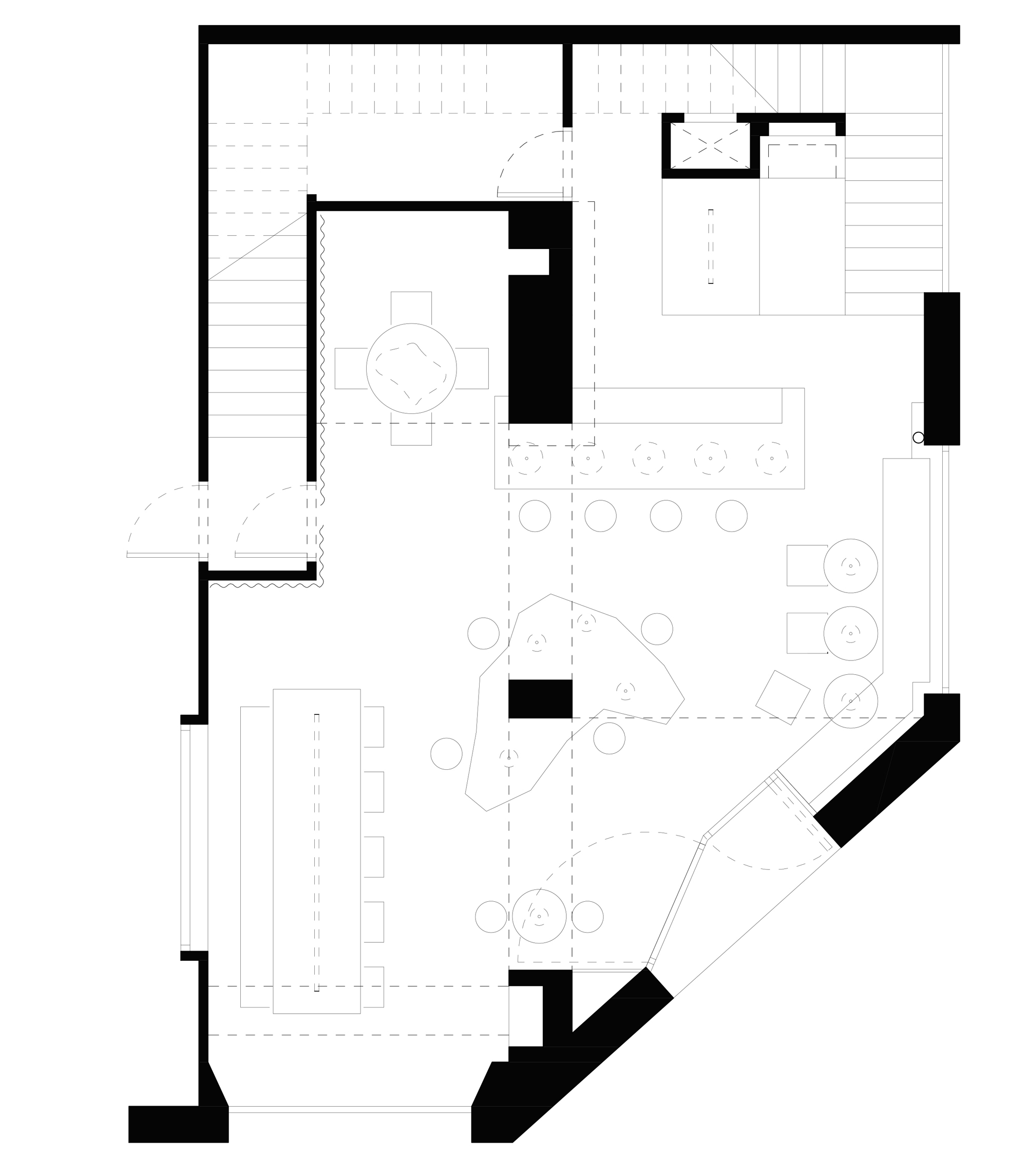
El Tiberi Bar envolta als seus visitants en una atmosfera etèria i lluminosa, submergint-te en una vivència espacial de núvol vaporós. El cotó projectat al sostre, els paviments de fusta pintada blanca amb expressió de la veta, les parets originals despullades de revestiment ensenyant les filades de maó i les cortines vellutades plisades juguen són la clau per a aconseguir aquesta sensació de lleugeresa visual a través de la combinació de materials flonjos, suaus i texturats de colors clars contrastats amb foscos.
h3o Tiberi Bar
Source: h3oPhotography: José HeviaPhotography: Eduard Sanchez RibotPhotography: Sara SalmerónConcept Design: Tiberi ClubLocation: Barcelona, SpainYear: 2023
Date:
February 21, 2024
Category:
Interior Design, Things


















