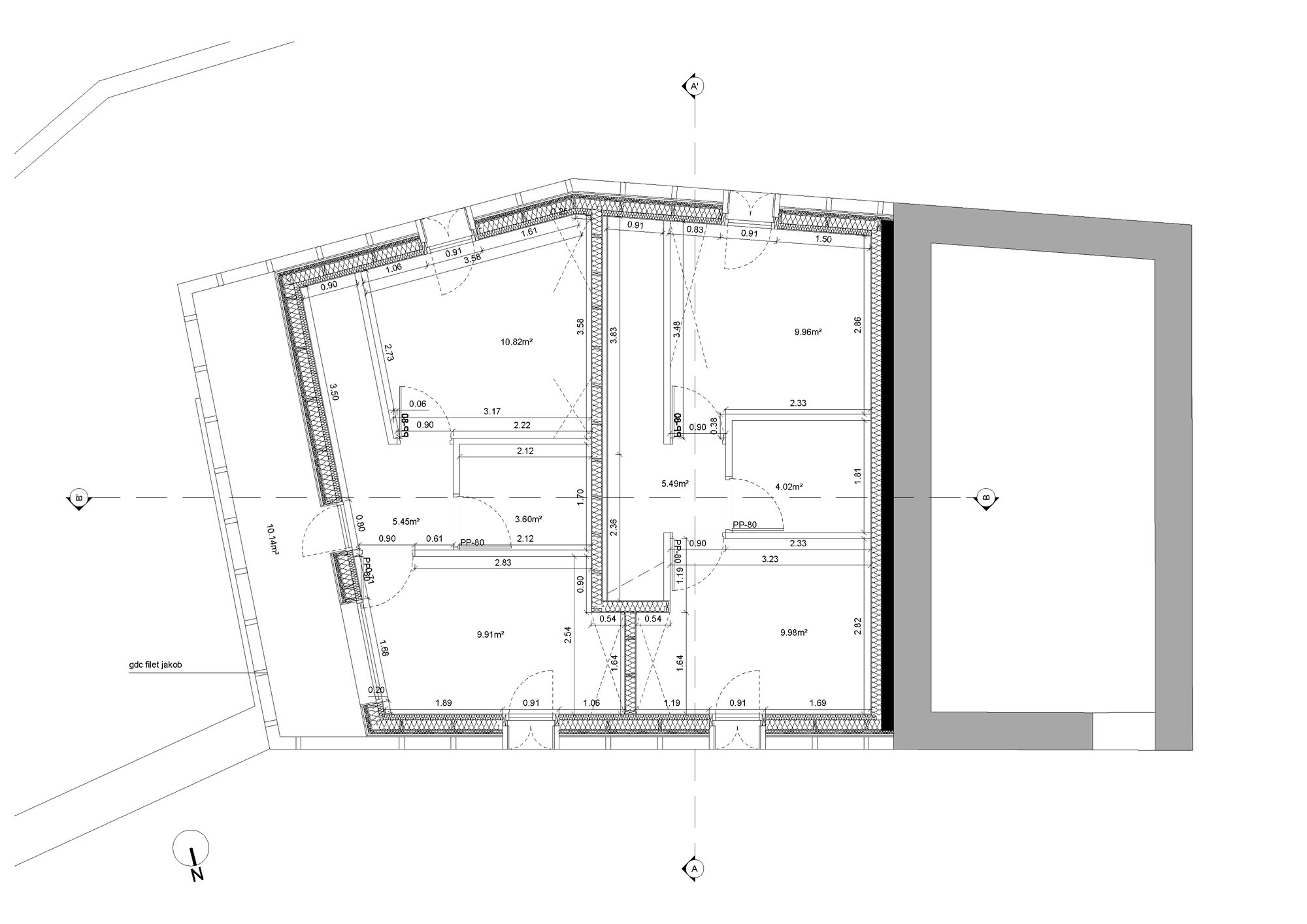
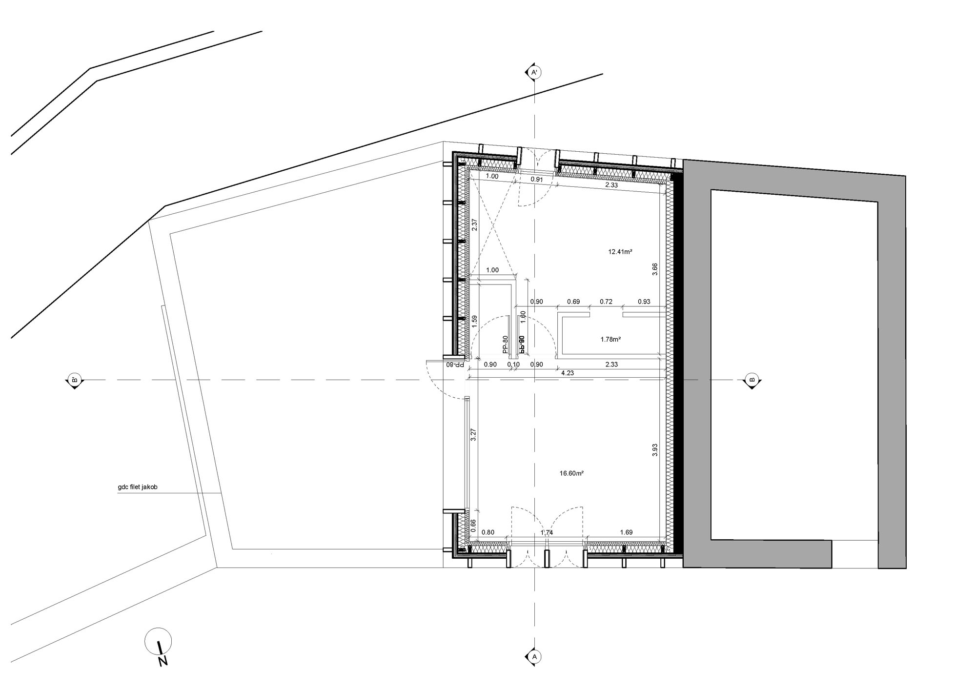
The project at hand is the rebuilding and reorganisation of a ruin in the small village of Cristinacce, Corsica, to create three city-owned apartments.
The project follows three axis:
Firstly, there is a social aspect to it as not-only it is city-owned, but the typologies are different to respond to the diversity of situations within Corsican villages.
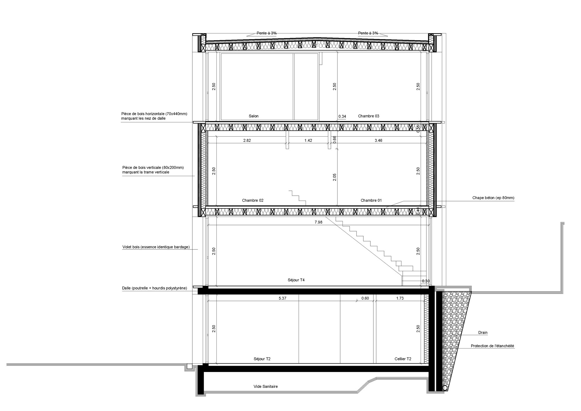
Secondly, you find an environmental angle as it is a now pressing matter for the whole island. This building is dimmed “low-carbon”, which makes it the first of its kind in Corsica.
Finally, the architectural aspect of the project of course, which lies in the form of a contemporary construction that fits the needs of modern life but in the midst of an old, traditional fabric, ever present in our small villages.
There is an act of resistance to the approach of building three social dwellings in a small village as it aims also at fighting against the depopulation inland. Offering high quality dwellings for lower a population with lower income is even greater.
The project is characterised by a structure and a surface mainly wooden-made, thus really setting the building in our times. There was also the purpose of further integrating the modern volumes and shape, considering the material unity and sobriety of the façades. Furthermore, the architecture of the building allows us to create wide openings, necessary to meet the environmental standards as well as framing the views on the mountains afar.


























1 Comment
ORMA WORK / you forget the ©… the photographer is a friend of mine : JULIEN KERDRAON