22@Barcelona project transforms two hundred hectares of industrial land of Poblenou into an innovative district offering modern spaces for the strategic concentration of intensive knowledge-based activities.
In an antique sugar factory the project is comprised of non-conventional buildings aimed at a special client, both dynamic and progressive. There has been a clear focus on obtaining a finished product both high-quality and unique in nature.
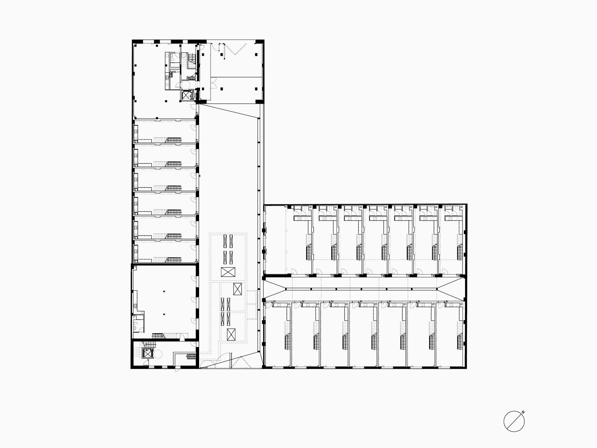
The project took hold in the building elements of the original industrial space. The warehouses were “sliced” vertically following the rhythm of the roof trusses, converting each segment in two- and three-storey lofts. The existing buildings of various levels were reassigned large, open-space single-level units.



















